Bénéficiez des services de nos partenaires locaux soigneusement sélectionnés
pour vous accompagner dans votre parcours d'achat immobilier

Nancy centre -quartier gare : au calme : appartement traversant et lumineux en très bon état de 3 pièces -61.35 m2 avec parkin

— Nancy 54000 —
149 700 €
61 m²
3 pièces

Nos partenaires locaux
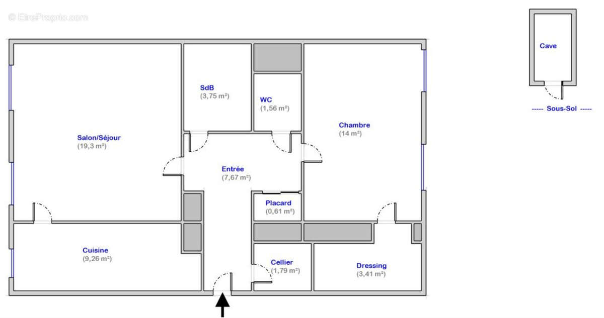
NANCY Centre -Quartier Gare : Au calme : Appartement traversant et lumineux en très bon état de 3 pièces -61.35 m2 ICI ET NULLE PART AILLEURS : Encore une exclusivité LAFORET Poincaré ! NANCY A Deux pas de la Gare ! Dans la très recherchée RESIDENCE DU GRAND VERGER rue Raymond Poincaré ,cet appartement en très bon état est lumineux et traversant : il est situé au 3ième et dernier étage et offre une vue dégagée . Il dispose d'un bel espace jour avec parquet, d'une grande chambre lumineuse avec parquet également et d' une pièce dressing équipée, d'une cuisine indépendante équipée ainsi que d'une salle de bains équipée, d'un cellier aménagé, d'un WC séparé et de nombreux placards. Il est à noter que le dressing et le cellier sont séparés d'une simple cloison et pourraient se transformer en une deuxième chambre au besoin. Les murs de la copropriété sont en pierre de taille . Les fenêtres en oscillo-battantes PVC ont été changées en 2020 : elles sont en double vitrages avec une lame d'argon de 16 mm à isolation renforcée et équipées de volets roulants en PVC. Le chauffage individuel est électrique avec programmateur pièce par pièce et un ballon de 150 litres. Le DPE est en E et B est passe facilement en C au besoin avec des travaux entre 2200 et 3400 euros. Il n'y a pas d'amiante dans l'appartement. Que demander de plus ? Un parking privatif numéroté avec un portail télécommandé vous permettra de vous garer facilement La résidence DU GRAND VERGER est très agréable avec ses espaces verts entretenus, elle est sécurisée et bénéficie des services d'un gardien. Une cave saine privative vient compléter ce lot. Pour de plus amples renseignements, merci de contacter sans tarder votre agence LAFORET POINCARE au [Coordonnées masquées]
Voir plus

Référence: 1469
Bien en copropriété. Charges de copropriété : 1412 €.
Honoraires à la charge du vendeur.
Barème des honoraires
DPE
A
B
C
D
E
F
G
GES
A
B
C
D
E
F
G

Prêt immobilier

Vous souhaitez connaître votre capacité d’emprunt et trouver le meilleur crédit immobilier ?
Réaliser une simulation gratuite

Appartement à NANCY
Appartement à NANCY
Appartement à NANCY
Appartement à NANCY
Appartement à NANCY
Appartement à NANCY
Appartement à NANCY
Appartement à NANCY
Appartement à NANCY
Appartement à NANCY
Appartement à NANCY
Appartement à NANCY
Appartement à NANCY
Ce site est protégé par reCAPTCHA la Politique de confidentialité et les Conditions d’utilisation de Google s’appliquent.
Obtenir un prêt immobilier au meilleur taux ?

En poursuivant votre navigation sans modifier vos paramètres, vous acceptez l'utilisation de cookies susceptibles de réaliser des statistiques de visite. Cliquez ici pour plus d'informations