Bénéficiez des services de nos partenaires locaux soigneusement sélectionnés
pour vous accompagner dans votre parcours d'achat immobilier

Mas avec piscine et garage proche du centre ville d'arles

— Arles 13200 —
885 000 €
174 m² / 2 000 m²
7 pièces
parkingbalcon/terrassejardinpiscine

Nos partenaires locaux
Je suis un mas provençal authentique, niché dans un écrin de verdure à Arles, au cœur d’un environnement naturel préservé. J’allie charme, confort et généreux volumes, offrant un cadre de vie paisible à seulement quelques minutes du centre historique d’Arles. Ici, vous profiterez de la sérénité de la campagne sans renoncer aux commodités de la ville.

Édifié sur un terrain paysager d’environ 2000 m2, je me dresse au milieu d’un jardin arboré, agrémenté d’une grande terrasse et d’une piscine traditionnelle sans vis-à-vis — un véritable havre de paix, propice à la détente et à la convivialité, à l’abri des regards.

Au rez-de-chaussée, une entrée spacieuse mène à un salon baigné de lumière d’environ 30 m2 et à une cuisine familiale de 21 m2, idéale pour partager de bons moments.
Un vaste bureau avec salle d’eau et WC complète ce niveau, il peut aisément être transformé en suite parentale ou en studio indépendant, selon vos envies.

S’ajoutent une buanderie/chaufferie, une dépendance attenante d’environ 40 m2, un garage et un WC séparé, pour plus de confort au quotidien.

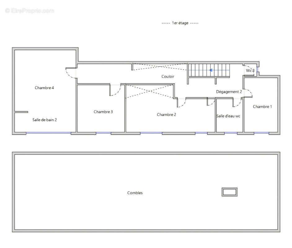
À l’étage, vous découvrirez quatre grandes chambres, dont une suite principale avec salle de bain privative, ainsi qu’une salle d’eau et un WC indépendant.

Grâce à mon excellente isolation et à mon chauffage par pompe à chaleur, j’affiche une performance énergétique classée B, un avantage rare pour une demeure de caractère, garantissant confort et économies d’énergie tout au long de l’année.

Authentique, accueillant et plein de charme, je suis le mas provençal idéal pour une famille ou pour toute personne en quête d’un lieu de vie unique à Arles, où se conjuguent harmonieusement tradition et modernité.

Je n’attends plus que vous pour une visite…

Mon prix inclut les honoraires de l’agence Martinez & Martinez Immobilier.
Voir plus

Barème des honoraires
DPE
A
B
C
D
E
F
G
GES
A
B
C
D
E
F
G

Prêt immobilier

Vous souhaitez connaître votre capacité d’emprunt et trouver le meilleur crédit immobilier ?
Réaliser une simulation gratuite

Maison à ARLES
Maison à ARLES
Maison à ARLES
Maison à ARLES
Maison à ARLES
Maison à ARLES
Maison à ARLES
Maison à ARLES
Maison à ARLES
Maison à ARLES
Maison à ARLES
Maison à ARLES
Maison à ARLES
Maison à ARLES
Maison à ARLES
Maison à ARLES
Ce site est protégé par reCAPTCHA la Politique de confidentialité et les Conditions d’utilisation de Google s’appliquent.
Obtenir un prêt immobilier au meilleur taux ?

En poursuivant votre navigation sans modifier vos paramètres, vous acceptez l'utilisation de cookies susceptibles de réaliser des statistiques de visite. Cliquez ici pour plus d'informations