Pas de commerce à Bollezeele pour le moment. Découvrez dès maintenant les commerces dans le département Nord.

Villa contemporaine avec vue

— Rabastens-De-Bigorre 65140 —
279 000 €
146 m² / 5 000 m²
4 pièces
parkingjardin

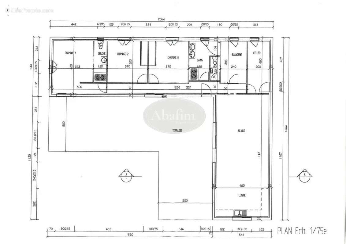
A 15 minutes de Rabastens de Bigorre, aux portes du Gers, cette villa contemporaine de 2018 avec une vue sur les Pyrénées, vous propose un spacieux séjour, une buanderie, un cellier, une suite parentale, deux chambres, une salle de bains, ainsi qu'un triple garages, l'ensemble sur une parcelle de 5000m² au calme.

Cette villa contemporaine , vous offres de belles prestations, vous aurez à loisir d'aménager votre espace extérieur à votre goût.

Vous entrez sur un couloir desservant la partie nuit et la partie jour. Vous avez une cuisine équipée ouverte sur un spacieux séjour (53m²) accès à l’extérieur par des belles baies vitrées (possibilité de mettre une cheminée). Vous disposez d'un cellier, une porte de service donne sur le jardin et le garage. Vous avez une buanderie, un wc, une salle de bains avec douche italienne, deux chambres (14m²) avec placards, une suite parentale (19m²), une salle d'eau avec douche italienne (5m²) et wc (Le jardin est accessible depuis la chambre).

Un grand garage de 70m² se positionne en contre-bas de la villa, vous avez deux portes standards et une grande ouverture idéal pour un van ou un camping-car compact ou pour un artisan.

Le toit est en tuile, la construction est traditionnelle de 2018 sur la RT de 2012. Le chauffage est électrique, avec clim réversible et la production d´eau chaude est assurée par un thermodynamique. Les menuiseries sont en double-vitrage. L´assainissement est réalisé par une fosse toutes eaux conforme.

Elle est se situe dans un environnement calme en position dominante, avec une vue sur les Pyrénées.

Vous serez à 15 minutes de Rabastens de Bigorre, 25 minutes de Vic en Bigorre, Marciac et son jazz, 30 minutes de Tarbes de la gare, de Mirande, 30 minutes l'autoroute, 1h de Pau, de la gare (TGV), 1h30 de Toulouse de l'aéroport,de l'Espagne, 1h40 de la côte basque.
Voir plus

Référence: AF26791
Barème des honoraires
DPE
A
B
C
D
E
F
G
GES
A
B
C
D
E
F
G

Prêt immobilier

Vous souhaitez connaître votre capacité d’emprunt et trouver le meilleur crédit immobilier ?
Réaliser une simulation gratuite

Maison à RABASTENS-DE-BIGORRE
Maison à RABASTENS-DE-BIGORRE
Maison à RABASTENS-DE-BIGORRE
Maison à RABASTENS-DE-BIGORRE
Maison à RABASTENS-DE-BIGORRE
Maison à RABASTENS-DE-BIGORRE
Maison à RABASTENS-DE-BIGORRE
Maison à RABASTENS-DE-BIGORRE
Maison à RABASTENS-DE-BIGORRE
Maison à RABASTENS-DE-BIGORRE
Maison à RABASTENS-DE-BIGORRE
Maison à RABASTENS-DE-BIGORRE
Maison à RABASTENS-DE-BIGORRE
Maison à RABASTENS-DE-BIGORRE
Maison à RABASTENS-DE-BIGORRE
Maison à RABASTENS-DE-BIGORRE
Ce site est protégé par reCAPTCHA la Politique de confidentialité et les Conditions d’utilisation de Google s’appliquent.
Obtenir un prêt immobilier au meilleur taux ?

En poursuivant votre navigation sans modifier vos paramètres, vous acceptez l'utilisation de cookies susceptibles de réaliser des statistiques de visite. Cliquez ici pour plus d'informations