Bénéficiez des services de nos partenaires locaux soigneusement sélectionnés
pour vous accompagner dans votre parcours d'achat immobilier

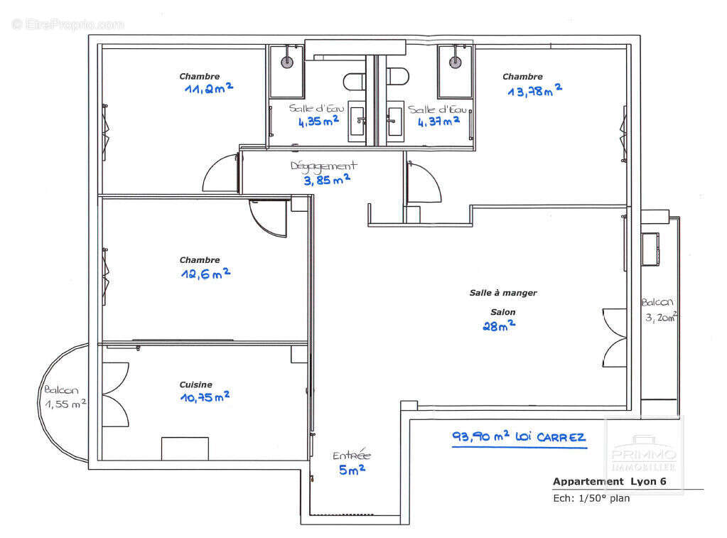
Lyon 6, triangle d'or, 94m², 2 balcons

— Lyon-6e 69006 —
695 000 €
94 m²
4 pièces
balcon/terrasseascenseur

Nos partenaires locaux
Superbe, à proximité du Parc de la Tête d'or au calme prox commerces. Un appartement entièrement rénové par un architecte avec des prestations haut de gamme, exposé Sud/Nord, d'une superficie de 94m² , situé au 3ème étage avec ascenseur. Composé d'une entrée ouverte sur le séjour de 28m² donnant sur un premier balcon, d'une cuisine entièrement équipée donnant accès à un second balcon, de trois chambres, deux salles d'eau avec toilettes. Une cave et un grenier complètent ce bien. Possibilité d'acquérir un garage en supplément, situé dans la cour. (+50 000 euros) -Tous les murs ont été isolés intérieurs comme extérieurs, -Chauffage collectif au gaz avec compteurs de calories, -Climatisation dans toutes les pièces, Les informations sur les risques auxquels ce bien est exposé sont disponibles sur le site Géorisques : www.georisques.gouv.fr (3.09 % honoraires TTC à la charge de l'acquéreur.)
Voir plus

Référence: 1873
Honoraires d'agence de 3.09% à la charge de l'acquéreur
Barème des honoraires
DPE
A
B
C
D
E
F
G
GES
A
B
C
D
E
F
G

Prêt immobilier

Vous souhaitez connaître votre capacité d’emprunt et trouver le meilleur crédit immobilier ?
Réaliser une simulation gratuite

Appartement à LYON-6E
Appartement à LYON-6E
Appartement à LYON-6E
Appartement à LYON-6E
Appartement à LYON-6E
Appartement à LYON-6E
Appartement à LYON-6E
Appartement à LYON-6E
Appartement à LYON-6E
Appartement à LYON-6E
Appartement à LYON-6E
Ce site est protégé par reCAPTCHA la Politique de confidentialité et les Conditions d’utilisation de Google s’appliquent.
Obtenir un prêt immobilier au meilleur taux ?

En poursuivant votre navigation sans modifier vos paramètres, vous acceptez l'utilisation de cookies susceptibles de réaliser des statistiques de visite. Cliquez ici pour plus d'informations