Bénéficiez des services de nos partenaires locaux soigneusement sélectionnés
pour vous accompagner dans votre parcours d'achat immobilier

Nice madeleine - 3 pièces, balcons et cave

— Nice 06000 —
220 500 €
55 m²
3 pièces
balcon/terrasseascenseur

Nos partenaires locaux
NICE Madeleine - Avenue de la Bornala

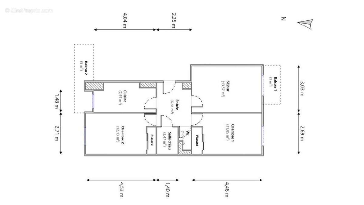
Venez découvrir cet agréable 3 pièces de 55m² en étage élevé d'une copropriété bien entretenue, situé à proximité immédiate des commerces, des écoles, des transports en commun et de la mer (20min à pieds).
L'appartement se situe au 4ème étage (sur 7) avec ascenseur et se compose d'un hall d'entrée desservant en étoile : un séjour de 14m² (orienté S/O) donnant sur un balcon de 3m², une cuisine indépendante aménagée et équipée donnant sur un 2nd balcon de 5m², 2 chambres avec placards intégrés, une salle de douches et des WC indépendants.
Un appartement avec de beaux atouts : étage élevé, pas de vis-à-vis, double vitrage, nombreux rangements, 2 balcons, traversant, exposition Sud/Ouest, immeuble bien entretenu, local à vélos.
A visiter sans tarder !

«Les informations sur les risques auxquels ce bien est exposé sont disponibles sur le site Géorisques : georisques.gouv.fr»
Voir plus

Référence: 85969242
Barème des honoraires
DPE
A
B
C
D
E
F
G
GES
A
B
C
D
E
F
G

Prêt immobilier

Vous souhaitez connaître votre capacité d’emprunt et trouver le meilleur crédit immobilier ?
Réaliser une simulation gratuite

Appartement à NICE
Appartement à NICE
Appartement à NICE
Appartement à NICE
Appartement à NICE
Appartement à NICE
Appartement à NICE
Appartement à NICE
Appartement à NICE
Appartement à NICE
Ce site est protégé par reCAPTCHA la Politique de confidentialité et les Conditions d’utilisation de Google s’appliquent.
Obtenir un prêt immobilier au meilleur taux ?

En poursuivant votre navigation sans modifier vos paramètres, vous acceptez l'utilisation de cookies susceptibles de réaliser des statistiques de visite. Cliquez ici pour plus d'informations