Maison 4 pièces 137m2 avec garage 60m2

— Signes 83870 —
325 000 €
137 m² / 114 m²
4 pièces
parkingjardin

MIRALLES IMMO vous propose à la vente en exclusivité dans le village de Signes, toutes commodités à proximité, cette maison de ville offrant beaucoup de potentiel avec 137m2 habitables + 60m2 d'annexe en rez-de-chaussée.
Elevée de deux étages sur rez-de-chaussée, elle a déjà fait l'objet d'une rénovation avec des matériaux de qualité : travertin, double vitrage PVC, volets roulants électriques...
Vous serez séduit par ses grands volumes et son ensoleillement. Le rez-de-chaussée est occupé par un vaste garage et chaufferie attenante, sur 60m2 au total, pouvant potentiellement être converti en espace professionnel, commercial, avec une belle visibilité sur le principal axe travesant le village (actuellement fermé par un volet roulant).
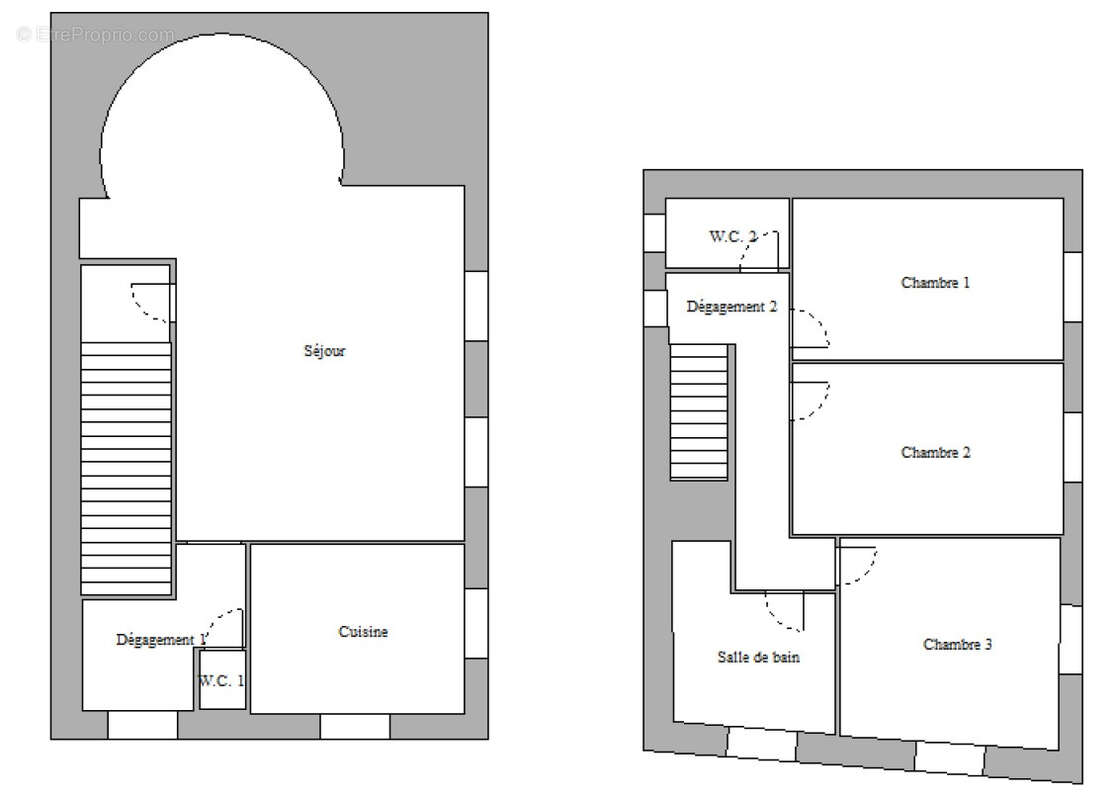
Au premier étage, un majestueux séjour avec arche en pierres et sa cuisine ouverte, bénéficie d'une jolie vue sur les collines et d'une exposition sud. Cet espace de vie développe plus de 60m2.
Au deuxième étage, trois grandes chambres avec poutres apparentes, belle exposition et vue dégagée également, une grande salle de bain au goût du jour. Un wc à chaque niveau.
Le + : le petit terrain sur lequel est implanté la maison permettra l'aménagement d'un parking ou d'une petite zone de détente.
Ce bien offre un beau potentiel pour une famille désirant s'établir à proximité de toutes les commodités du village, ou pour un projet combinant habitation et professionnel grâce à la belle surface annexe à aménager.
Voir plus

Référence: 1582
Honoraires à la charge du vendeur.
DPE
A
B
C
D
E
F
G
GES
A
B
C
D
E
F
G

Prêt immobilier

Vous souhaitez connaître votre capacité d’emprunt et trouver le meilleur crédit immobilier ?
Réaliser une simulation gratuite

Maison à SIGNES
Maison à SIGNES
Maison à SIGNES
Maison à SIGNES
Maison à SIGNES
Maison à SIGNES
Maison à SIGNES
Maison à SIGNES
Maison à SIGNES
Maison à SIGNES
Maison à SIGNES
Ce site est protégé par reCAPTCHA la Politique de confidentialité et les Conditions d’utilisation de Google s’appliquent.
Obtenir un prêt immobilier au meilleur taux ?

En poursuivant votre navigation sans modifier vos paramètres, vous acceptez l'utilisation de cookies susceptibles de réaliser des statistiques de visite. Cliquez ici pour plus d'informations