Maison de bourg

— Sorigny 37250 —
199 900 €
86 m²
4 pièces

COUP DE CŒUR – EXCLUSIVITÉ – SORIGNY – MAISON/APPARTEMENT 86 m² – 3 CHAMBRES – PIÈCE DE VIE 38 m² – SANS TRAVAUX – FAMILLE / INVESTISSEURS – 18 MIN DE TOURS

Le confort d'un appartement… avec l'indépendance d'une maison !

Située au cœur du bourg de Sorigny, cette maison ancienne de 1900, rénovée avec goût en 2018, offre le confort d'un appartement sans les contraintes, mais avec tous les avantages d'une maison : pas de voisin au-dessus, aucune charge de copropriété, et zéro entretien extérieur.
Tout se fait à pied : commerces, écoles, services… une vie simple et fonctionnelle au centre-ville.

La maison – 86 m² habitables

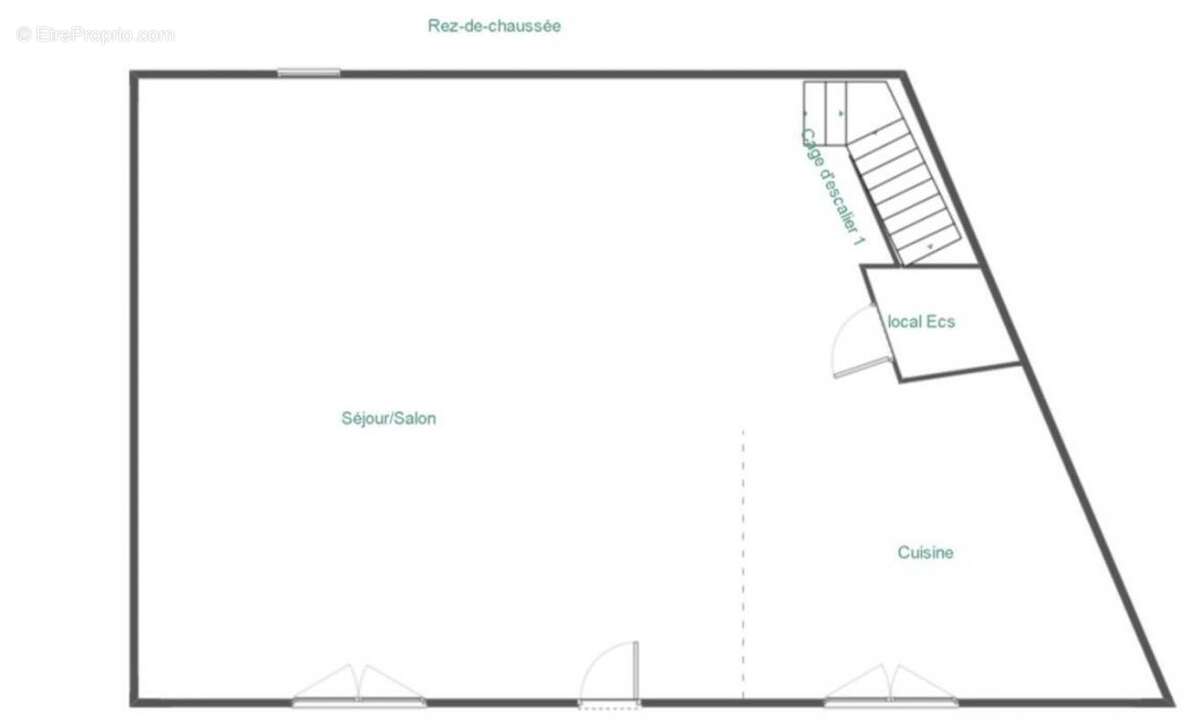
Rez-de-chaussée
•Grande pièce de vie de 38 m², lumineuse et conviviale
•Cuisine ouverte aménagée et équipée avec îlot central

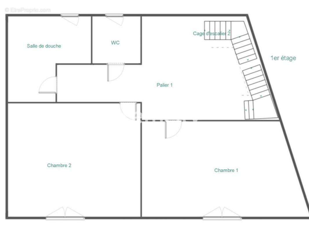
1er étage
•2 chambres de 11 m²
•Salle d'eau de 5 m² avec espace buanderie
•WC indépendant

2e étage
•Chambre mansardée de 14 m² (34 m² au sol)
•PRISES TV & INTERNET dans toutes les pièces

Ses atouts
•Maison entièrement rénovée en 2018 – clé en main
•DPE D – bonne performance énergétique
•En plein centre-bourg : tout à pied
•Accès autoroute à 1 km – Tours à 18 min – Chambray-les-Tours à 10 min
•Vie pratique sans entretien extérieur – indépendance totale

Investissement / Locatif
•Maison actuellement louée (bail jusqu'en sept. 2026, départ possible avant)
•Taxe foncière : 520 €
•Rendement net ≈ 5 %

Besoin d'un accompagnement ?

Nous vous mettons gratuitement en relation avec nos partenaires pour votre simulation de financement ou étude de projet.

Photos et infos supplémentaires sur demande – contactez-moi vite pour une visite !
Les informations sur les risques auxquels ce bien est exposé sont disponibles sur le site Georisque : georisques. gouv. fr
Virginie Bergerard - EI - est Agent Commercial mandataire en immobilier, immatriculé au Registre Spécial des Agents Commerciaux du Tribunal de Commerce de Tours sous le n°903091361.
Siège social du mandant : effiCity, 48 avenue de Villiers - 75017 PARIS - Société par Actions Simplifiée, société au capital de 132 373,05 euros, immatriculée au RCS Paris 497 617 746 et titulaire de la Carte professionnelle CPI 75[Coordonnées masquées]02 025 - CCI Paris IDF - Caisse de Garantie : GALIAN Assurances 89 rue de la Boétie 75008 Paris
Voir plus

Référence: 198361
Honoraires à la charge du vendeur.
Barème des honoraires
DPE
A
B
C
D
E
F
G
GES
A
B
C
D
E
F
G

Prêt immobilier

Vous souhaitez connaître votre capacité d’emprunt et trouver le meilleur crédit immobilier ?
Réaliser une simulation gratuite

Maison à SORIGNY
Maison à SORIGNY
Maison à SORIGNY
Maison à SORIGNY
Maison à SORIGNY
Maison à SORIGNY
Maison à SORIGNY
Maison à SORIGNY
Maison à SORIGNY
Maison à SORIGNY
Ce site est protégé par reCAPTCHA la Politique de confidentialité et les Conditions d’utilisation de Google s’appliquent.
Obtenir un prêt immobilier au meilleur taux ?

En poursuivant votre navigation sans modifier vos paramètres, vous acceptez l'utilisation de cookies susceptibles de réaliser des statistiques de visite. Cliquez ici pour plus d'informations