Bénéficiez des services de nos partenaires locaux soigneusement sélectionnés
pour vous accompagner dans votre parcours d'achat immobilier

Terrain 2150m² à peymeinade

— Peymeinade 06530 —
299 000 €
2 150 m²
jardin

Nos partenaires locaux
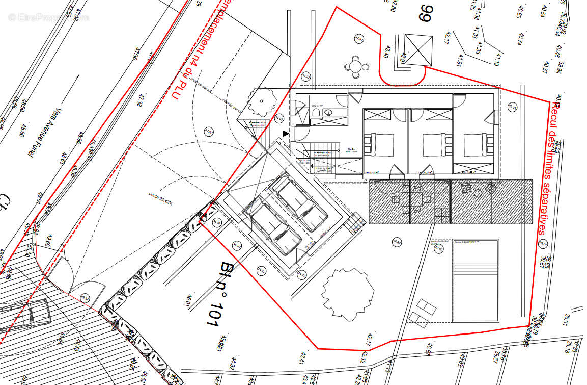
PEYMEINADE - Votre agence ERA JT2 immobilier vous propose à la vente un terrain constructible d'une superficie de 2150 m², situé en zone urbaine de densité moyenne (zone UC). Le terrain est viabilisé (eau, électricité, télécoms) et bénéficie d'un permis de construire accordé pour une maison d'habitation d'environ 168 m² habitables, répartis sur deux niveaux.
Le projet prévoit la construction d'une maison comprenant :
4 chambres, 2 salles de bain (une dans la suite parentale, une à l'étage), un garage double, une piscine, le tout sur un terrain en pente, aménagé avec des restanques.

Vous apprécierez le secteur calme et résidentiel, proche des commodités, offrant un bon équilibre entre cadre naturel et vie de quartier.
Contactez-nous dès maintenant pour une visite !
Voir plus

Référence: 5882

Prêt immobilier

Vous souhaitez connaître votre capacité d’emprunt et trouver le meilleur crédit immobilier ?
Réaliser une simulation gratuite

Terrain à PEYMEINADE
Terrain à PEYMEINADE
Terrain à PEYMEINADE
Terrain à PEYMEINADE
Terrain à PEYMEINADE
Terrain à PEYMEINADE
Terrain à PEYMEINADE
Ce site est protégé par reCAPTCHA la Politique de confidentialité et les Conditions d’utilisation de Google s’appliquent.
Obtenir un prêt immobilier au meilleur taux ?

En poursuivant votre navigation sans modifier vos paramètres, vous acceptez l'utilisation de cookies susceptibles de réaliser des statistiques de visite. Cliquez ici pour plus d'informations