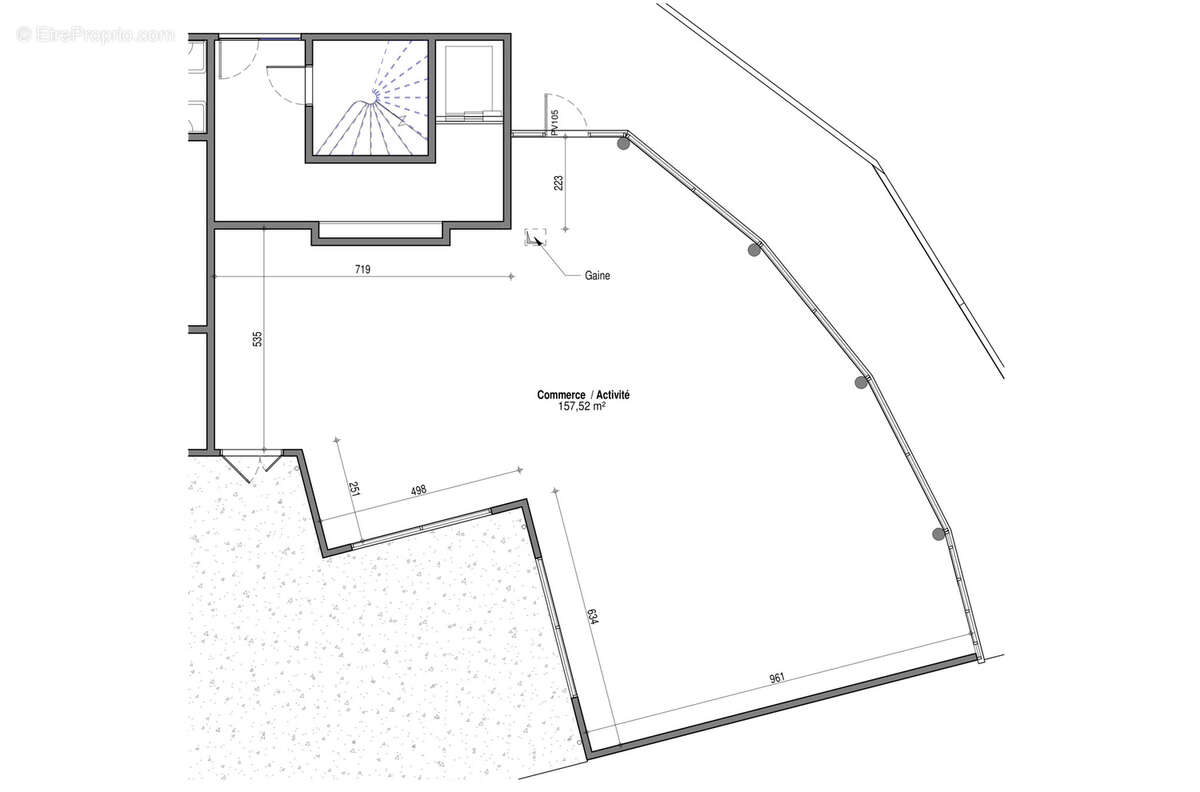
Local commercial de 157 m2, toute activité, centre-ville de brignais

— Brignais 69530 —
570 200 €
158 m²


Local commercial Brignais centre-ville


Nous vous proposons un local commercial de 157,52 m2, idéalement situé en plein centre-ville de Brignais, au sein d’une résidence neuve de 35 logements.


Le bien sera livré en coque brute, avec vitrine posée, vitrage de type Stadip Protect 44.2 (hauteur minimum 2,60 m), bandeau réservé de 70 cm pour la pose ultérieure des enseignes avec un accès extérieur indépendant et réseaux et fluides en attente (eau, assainissement, VMC, électricité, téléphonie, fibre optique fourreaux aiguillés et étiquetés).


Toutes activités autorisées?: gaine d’extraction fumées grasses et chaudes prévue pour une activité de restauration (chemisage à la charge du preneur). Possibilité de parkings en sus.


Le local bénéficie d’un emplacement privilégié, à proximité immédiate des commerces et de la gare SNCF, garantissant une excellente accessibilité et visibilité.


TVA récupérable si assujetti.
Voir plus

Référence: 1445.3.LFC
Honoraires à la charge du vendeur.
Barème des honoraires

Prêt immobilier

Vous souhaitez connaître votre capacité d’emprunt et trouver le meilleur crédit immobilier ?
Réaliser une simulation gratuite

Commerce à BRIGNAIS
Commerce à BRIGNAIS
Ce site est protégé par reCAPTCHA la Politique de confidentialité et les Conditions d’utilisation de Google s’appliquent.
Obtenir un prêt immobilier au meilleur taux ?

En poursuivant votre navigation sans modifier vos paramètres, vous acceptez l'utilisation de cookies susceptibles de réaliser des statistiques de visite. Cliquez ici pour plus d'informations