Bénéficiez des services de nos partenaires locaux soigneusement sélectionnés
pour vous accompagner dans votre parcours d'achat immobilier

Charmant appartement à vendre à roscoff - proche de la mer !

— Roscoff 29680 —
157 000 €
41 m²
1 pièce
balcon/terrasse

Nos partenaires locaux
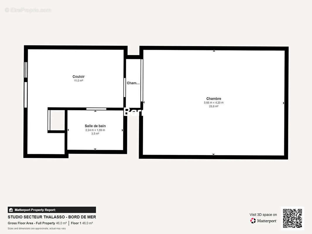
**** VISITE VIRTUELLE **** Quartier Thalasso -plusieurs appartements disponibles T1 et T2 Découvrez ce magnifique Studio de 41.05 m² situé à Roscoff, à seulement 100 mètres de la mer ! Idéalement exposé plein sud, cet appartement au rez-de-chaussée vous offre un cadre de vie agréable et lumineux. Avec une cuisine aménagée et équipée, un séjour confortable, et une salle d'eau moderne, vous vous sentirez chez vous dès votre arrivée. Le bien, construit en 1998, est en bon état général et dispose de fenêtres en PVC double vitrage, garantissant une bonne isolation. Vous apprécierez également le chauffage électrique par radiateurs et l'eau chaude produite par un ballon électrique. A l'extérieur, vous bénéficierez d'une terrasse et d'un jardinet pour profiter des journées ensoleillées. Le stationnement est facile grâce à un espace extérieur dédié. Situé à proximité de plusieurs écoles, dont l'École primaire privée Ange Gardien et l'École Maternelle Les Moguerou, cet appartement est parfait pour les jeunes couples ou les personnes souhaitant s'installer dans un quartier dynamique. Vous trouverez également des restaurants, des boulangeries et des parcs à proximité, rendant votre quotidien encore plus agréable. Ne manquez pas cette opportunité unique d'acquérir un bien dans une des villes les plus prisées de la côte bretonne. Contactez l'Agence Barraine IMMO Saint Pol pour organiser une visite ! (6.44 % honoraires TTC à la charge de l'acquéreur.) Copropriété de 24 lots - dont 10 lots habitation.(Pas de procédure en cours).
Voir plus

Référence: MX00358
Bien en copropriété. Nombre de lots : 24.
Honoraires d'agence de 6.44% à la charge de l'acquéreur
Barème des honoraires
DPE
A
B
C
D
E
F
G
GES
A
B
C
D
E
F
G

Prêt immobilier

Vous souhaitez connaître votre capacité d’emprunt et trouver le meilleur crédit immobilier ?
Réaliser une simulation gratuite

Appartement à ROSCOFF
Appartement à ROSCOFF
Appartement à ROSCOFF
Appartement à ROSCOFF
Appartement à ROSCOFF
Appartement à ROSCOFF
Appartement à ROSCOFF
Appartement à ROSCOFF
Appartement à ROSCOFF
Appartement à ROSCOFF
Appartement à ROSCOFF
Appartement à ROSCOFF
Appartement à ROSCOFF
Appartement à ROSCOFF
Appartement à ROSCOFF
Appartement à ROSCOFF
Appartement à ROSCOFF
Appartement à ROSCOFF
Appartement à ROSCOFF
Appartement à ROSCOFF
Ce site est protégé par reCAPTCHA la Politique de confidentialité et les Conditions d’utilisation de Google s’appliquent.
Obtenir un prêt immobilier au meilleur taux ?

En poursuivant votre navigation sans modifier vos paramètres, vous acceptez l'utilisation de cookies susceptibles de réaliser des statistiques de visite. Cliquez ici pour plus d'informations