Bénéficiez des services de nos partenaires locaux soigneusement sélectionnés
pour vous accompagner dans votre parcours d'achat immobilier

Stella-plage centre t4 en duplex avec garage et cave

— Cucq 62780 —
270 000 €
78 m²
4 pièces
parking

Nos partenaires locaux
À VENDRE Superbe Duplex T4 en plein cœur de Stella-Plage
Découvrez ce magnifique appartement en duplex au style industriel, idéalement situé en plein centre de Stella-Plage, à proximité immédiate des commerces, de la plage et de toutes commodités.
Ce bien rare se compose de :


3 belles chambres lumineuses


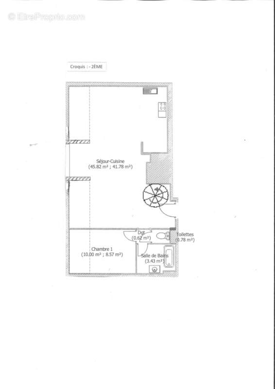
Un vaste séjour de plus de 40m2 avec du cachet industriel avec poutres apparentes et belle hauteur sous plafond


Une cuisine moderne ouverte moderne et équipée en partie


2 salle de bains (en bas baignoire en haut douche) contemporaine et 2 wc séparés


L’appartement offre une surface Loi Carrez de 78,51 m2, complétée par 33,42 m2 hors Carrez, soit un espace total généreux d’environ 112 m2 au sol.
En annexes :


Un garage privatif


Une cave individuelle


Ce duplex allie charme, confort et emplacement privilégié, parfait pour une résidence principale, secondaire ou un investissement locatif de qualité.
Résidence sans ascenseur et bien sans balcon.
Stella-Plage Le Touquet-Paris-Plage
BIEN RARE SUR LE SECTEUR
Nous contacter au [Coordonnées masquées] pour plus de renseignement et visites.
Les risques naturels et technologiques sont visibles sur le site www.gouv.georisques.fr
Voir plus

Référence: 671MB
Bien en copropriété. Nombre de lots : 13. Charges de copropriété : 1100 €.
Barème des honoraires
DPE
A
B
C
D
E
F
G
GES
A
B
C
D
E
F
G
Appartement à CUCQ
Appartement à CUCQ
Appartement à CUCQ
Appartement à CUCQ
Appartement à CUCQ
Appartement à CUCQ
Appartement à CUCQ
Appartement à CUCQ
Appartement à CUCQ
Appartement à CUCQ
Appartement à CUCQ
Appartement à CUCQ
Appartement à CUCQ
Appartement à CUCQ
Appartement à CUCQ
Appartement à CUCQ
Appartement à CUCQ
Appartement à CUCQ
Appartement à CUCQ
Géorisques

Les informations sur les risques auxquels ce bien est exposé sont disponibles sur le site Géorisques : www.georisques.gouv.fr

Ce site est protégé par hCaptcha Politique de confidentialité et Conditions d’utilisation s’appliquent.

En poursuivant votre navigation sans modifier vos paramètres, vous acceptez l'utilisation de cookies susceptibles de réaliser des statistiques de visite. Cliquez ici pour plus d'informations