Bénéficiez des services de nos partenaires locaux soigneusement sélectionnés
pour vous accompagner dans votre parcours d'achat immobilier

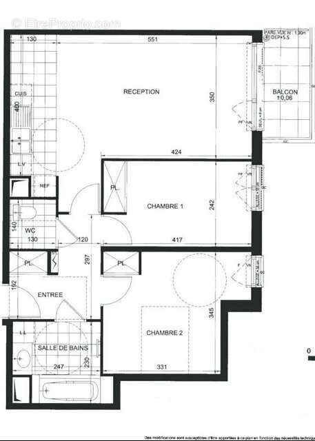
Appartement 62m² à maisons-alfort

— Maisons-Alfort 94700 —
414 900 €
62 m²
3 pièces
parking

Nos partenaires locaux
maisons alfort charentonneau place rene coty ecole raspail
dans immeuble recent standing, agréable 3 pièces de 62 m2 exposition ouest et situé au calme au pied des écoles, du marché et des commerces de la place rene coty, 10/12 minutes à pied du métro stade ligne 8
entrée avec rangements, beau sejour avec cuisine ouverte equipee, 2 jolies chambres avec placards et dressing, salle de bains avec baignoir et espace buanderie , wc séparés. parking en sous sol en sus
faibles charges. performance energetique excellente
prix : 414.900 euros frais d agence inclus
Voir plus

Référence: A4989619
DPE
A
B
C
D
E
F
G
GES
A
B
C
D
E
F
G
Appartement à MAISONS-ALFORT
Appartement à MAISONS-ALFORT
Appartement à MAISONS-ALFORT
Appartement à MAISONS-ALFORT
Appartement à MAISONS-ALFORT
Appartement à MAISONS-ALFORT
Géorisques

Les informations sur les risques auxquels ce bien est exposé sont disponibles sur le site Géorisques : www.georisques.gouv.fr

Ce site est protégé par hCaptcha Politique de confidentialité et Conditions d’utilisation s’appliquent.

En poursuivant votre navigation sans modifier vos paramètres, vous acceptez l'utilisation de cookies susceptibles de réaliser des statistiques de visite. Cliquez ici pour plus d'informations