Bénéficiez des services de nos partenaires locaux soigneusement sélectionnés
pour vous accompagner dans votre parcours d'achat immobilier

Maison de village unique avec terrasses

— Montreal 11290 —
330 000 €
184 m²
6 pièces
balcon/terrasse

Nos partenaires locaux
En exclusivité :
Située dans le charmant et historique village de Montréal, au cœur du terroir de la Malepère, cette authentique maison de village est en parfait état et allie avec élégance le caractère de l'ancien au confort moderne. Aucun travaux n'est à prévoir, la maison est immédiatement habitable et offre une atmosphère chaleureuse dès l'entrée, grâce aux matériaux naturels, aux poutres apparentes et à la décoration soignée. Les pièces de vie, lumineuses et spacieuses, profitent de belles ouvertures qui créent une véritable continuité entre l'intérieur et l'extérieur.

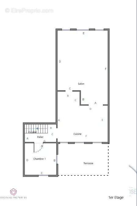
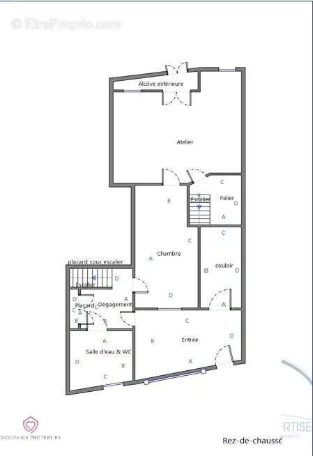
Deux terrasses sans vis-à-vis permettent de savourer pleinement le calme du village, que ce soit pour un moment de détente au soleil ou un repas en plein air. Au rez-de-chaussée, un espace non aménagé doté de sa propre entrée offre de multiples possibilités : une chambre ou un bureau, un espace professionnel, une petite boutique ou même un futur gîte ou chambre d'hôtes, selon vos envies. C'est un véritable atout pour ceux qui recherchent un bien modulable.

La maison se compose, au rez-de-chaussée, d'une chambre, d'une vaste entrée, d'une salle de bain, d'un espace polyvalent et d'un accès à une cave à vin en pierre, impressionnante et totalement authentique. À l'étage, on retrouve une chambre, une cuisine équipée, un séjour, un hall et une première terrasse. Le second étage comprend un WC, une salle de bain avec douche et baignoire, une troisième chambre ainsi qu'une jolie tropézienne.

Parfaitement entretenue, dotée de finitions de qualité et d'un charme indéniable, la maison allie confort, caractère et potentiel locatif dans un village très recherché du Sud de la France. Ses terrasses, ses volumes, son authenticité et son état impeccable en font une propriété rare, idéale comme résidence principale, secondaire ou projet touristique.

Un véritable coup de cœur assuré. Pour tout renseignements contactez votre interlocuteur privilégié Honoraires à la charge du vendeur - Montant estimé des dépenses annuelles d'énergie pour un usage standard, établi à partir des prix de l'énergie de l'année 2021 : 3440€ ~ 4660€ - Les informations sur les risques auxquels ce bien est exposé sont disponibles sur le site Géorisques : www.georisques.gouv.fr%
Voir plus

Référence: NV027
Honoraires à la charge du vendeur.
DPE
A
B
C
D
E
F
G
GES
A
B
C
D
E
F
G
Maison à MONTREAL
Maison à MONTREAL
Maison à MONTREAL
Maison à MONTREAL
Maison à MONTREAL
Maison à MONTREAL
Maison à MONTREAL
Maison à MONTREAL
Maison à MONTREAL
Maison à MONTREAL
Maison à MONTREAL
Maison à MONTREAL
Maison à MONTREAL
Maison à MONTREAL
Maison à MONTREAL
Maison à MONTREAL
Maison à MONTREAL
Maison à MONTREAL
Maison à MONTREAL
Maison à MONTREAL
Maison à MONTREAL
Maison à MONTREAL
Maison à MONTREAL
Maison à MONTREAL
Maison à MONTREAL
Maison à MONTREAL
Maison à MONTREAL
Maison à MONTREAL
Maison à MONTREAL
Maison à MONTREAL
Maison à MONTREAL
Maison à MONTREAL
Maison à MONTREAL
Géorisques

Les informations sur les risques auxquels ce bien est exposé sont disponibles sur le site Géorisques : www.georisques.gouv.fr

Ce site est protégé par hCaptcha Politique de confidentialité et Conditions d’utilisation s’appliquent.

En poursuivant votre navigation sans modifier vos paramètres, vous acceptez l'utilisation de cookies susceptibles de réaliser des statistiques de visite. Cliquez ici pour plus d'informations