Bénéficiez des services de nos partenaires locaux soigneusement sélectionnés
pour vous accompagner dans votre parcours d'achat immobilier

3%.COM - en EXCLUSIVITÉ - A HOENHEIM (Rue des Rouges Gorges)

— Hoenheim 67800 —
458 000 €
114 m² / 360 m²
5 pièces
parking

Nos partenaires locaux
3%.COM - en EXCLUSIVITÉ - A HOENHEIM (Rue des Rouges Gorges), dans un quartier résidentiel, très belle maison de 133 m2 au sol / 114 m2 habitables, dans un excellent état, sur un beau terrain d'environ 3,60 ares.

-- RARE à la vente, située au calme, SANS TRAVAUX

-- Vous recherchez une maison parfaitement entretenue, dans un environnement calme, proche de toutes commodités ? N'hésitez plus et venez découvrir ce bien.

-- Maison fonctionnelle et lumineuse avec beau jardin - idéale pour une famille !

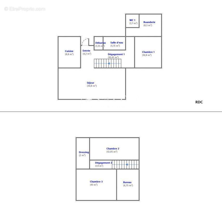
-- Au rez-de-chaussée :
1 entrée / dégagement.
1 cellier.
1 salon / séjour d'environ 31 m2 avec accès à la terrasse.
1 chambre de 11 m2.
1 cuisine entièrement équipée.
1 salle d'eau (double vasque, douche).
1 espace buanderie avec de nombreux rangements.
1 toilette séparé.
1 accès au garage équipé d'une porte motorisée.

-- Au premier niveau :
1 dégagement.
2 chambres (~14 m2 et 15 m2 au sol) équipées de placards de rangement.
1 pièce bureau (10 m2 au sol / 7 m2 habitables) accessible depuis la chambre parentale.

-- Autres informations :
- Climatisation réversible à l'étage dans les chambres.
- Nombreux rangements.
- Jardin entièrement clôturé et sans vis-à-vis.
- Terrasse équipée d'une pergola avec volets électriques.
- Chauffage électrique + PAC air / air.
- Ballon électrique pour l'eau chaude.
- Fenêtres PVC double vitrage, volets PVC.
- Isolation intérieure.
- Le bien est soumis à la copropriété (75 lots), avec des charges limitées à l'entretien des espaces verts, environ 27 EUR/trimestre, soit 108 EUR/an.
- Taxe foncière : 1 351 EUR.
DPE : D

Principales distances :
Schilt. Parc Euro Entrep : 12 min, 6 km.
Strasbourg centre : 16 min, 10 km.
Saverne : 39 min, 49 km.
Haguenau : 28 min, 30 km.

Contactez Célia au [Coordonnées masquées].
Du lundi au samedi de 9h00 à 19h00.
Agent Commercial en Immobilier, inscrit au RSAC Strasbourg No 809 126 998.

Agence Immobilière ROTH IMMOBILIER Sarl, franchisé 3%.COM, RCS 803 863 638.
Agence et vitrines à Hochfelden, siège à Gimbrett-Kochersberg.
Réseau national à honoraires réduits : 3 % TTC.
Les informations sur les risques auxquels ce bien est exposé sont disponibles sur le site Géorisques : www.georisques.gouv.fr - Annonce rédigée et publiée par un Agent Mandataire -
Voir plus

Référence: 264_V3480062245
Bien en copropriété. Nombre de lots : 75. Charges de copropriété : 9 €.
Honoraires d'agence de 2.92% à la charge de l'acquéreur
DPE
A
B
C
D
E
F
G
GES
A
B
C
D
E
F
G
Maison à HOENHEIM
Maison à HOENHEIM
Maison à HOENHEIM
Maison à HOENHEIM
Maison à HOENHEIM
Maison à HOENHEIM
Maison à HOENHEIM
Maison à HOENHEIM
Maison à HOENHEIM
Maison à HOENHEIM
Maison à HOENHEIM
Maison à HOENHEIM
Maison à HOENHEIM
Maison à HOENHEIM
Maison à HOENHEIM
Maison à HOENHEIM
Maison à HOENHEIM
Maison à HOENHEIM
Maison à HOENHEIM
Maison à HOENHEIM
Maison à HOENHEIM
Maison à HOENHEIM
Maison à HOENHEIM
Maison à HOENHEIM
Maison à HOENHEIM
Géorisques

Les informations sur les risques auxquels ce bien est exposé sont disponibles sur le site Géorisques : www.georisques.gouv.fr

Ce site est protégé par hCaptcha Politique de confidentialité et Conditions d’utilisation s’appliquent.

En poursuivant votre navigation sans modifier vos paramètres, vous acceptez l'utilisation de cookies susceptibles de réaliser des statistiques de visite. Cliquez ici pour plus d'informations