Bénéficiez des services de nos partenaires locaux soigneusement sélectionnés
pour vous accompagner dans votre parcours d'achat immobilier

Avignon, saint ruf, maison familiale avec 4 chambres, cour & garage

— Avignon 84000 —
247 000 €
96 m² / 180 m²
5 pièces
parkingjardin

Nos partenaires locaux
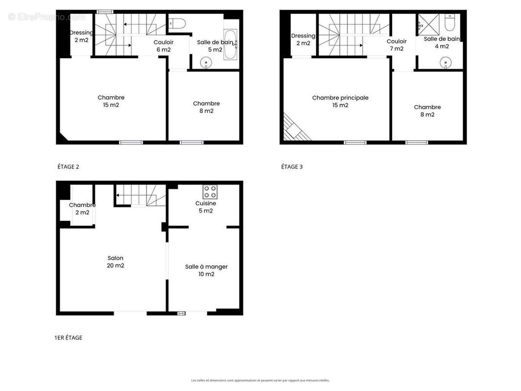
Avignon Boulevard Saint-Ruf Charmante maison de ville avec cour et garage Au coeur d'un quartier vivant et recherché d'Avignon, cette maison de ville séduit par son authenticité et son atmosphère chaleureuse. Au rez-de-chaussée, une cuisine ouverte sur le séjour salon crée un espace convivial, propice aux moments partagés en famille ou entre amis. Déployée sur deux étages bien agencés, la maison offre quatre chambres, dont deux très spacieuses, ainsi que deux salles d'eau ? un confort idéal pour accueillir toute la famille. A l'extérieur, une belle terrasse et une cour promettent de douces soirées d'été. Vous profiterez également d'un garage, d'une buanderie et d'un cabanon, des atouts rares en centre-ville. Après quelques travaux de rafraîchissement, cette maison révélera tout son potentiel et deviendra un véritable cocon de vie. Située à deux pas des commerces, des écoles et du tramway, elle allie charme, confort et praticité au quotidien. Un bien idéal pour une famille ou pour un investisseur à la recherche d'un lieu bien situé et facile à louer. Isabelle Oriez (EI) Agent Commercial - Numéro RSAC : - .
Voir plus

Référence: 6214
Honoraires à la charge du vendeur.
Barème des honoraires
DPE
A
B
C
D
E
F
G
GES
A
B
C
D
E
F
G

Prêt immobilier

Vous souhaitez connaître votre capacité d’emprunt et trouver le meilleur crédit immobilier ?
Réaliser une simulation gratuite

Maison à AVIGNON
Maison à AVIGNON
Maison à AVIGNON
Maison à AVIGNON
Maison à AVIGNON
Maison à AVIGNON
Maison à AVIGNON
Maison à AVIGNON
Maison à AVIGNON
Maison à AVIGNON
Maison à AVIGNON
Maison à AVIGNON
Maison à AVIGNON
Ce site est protégé par reCAPTCHA la Politique de confidentialité et les Conditions d’utilisation de Google s’appliquent.
Obtenir un prêt immobilier au meilleur taux ?

En poursuivant votre navigation sans modifier vos paramètres, vous acceptez l'utilisation de cookies susceptibles de réaliser des statistiques de visite. Cliquez ici pour plus d'informations