PUTEAUX Front de Seine, 5 pièces, 140m²

— Puteaux 92800 —
960 000 €
140 m²
5 pièces
parkingbalcon/terrasseascenseur

l Olivier BLAREL l Conseiller immobilier - Capifrance l

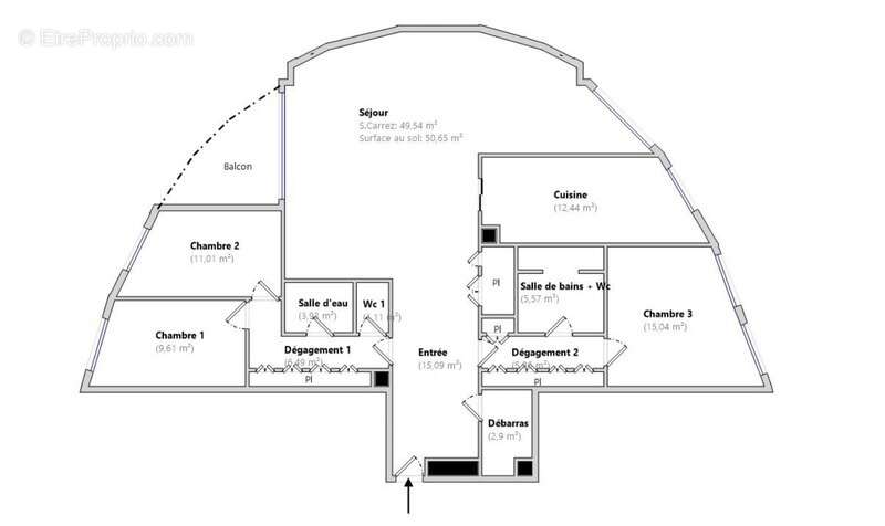
Puteaux Front de Seine – Résidence « Le France » – appartement 139 m²

Dans la prestigieuse résidence Le France, laissez-vous séduire par cet appartement familial de 140 m², niché au 6ᵉ étage, bénéficiant d'une double exposition Est-Ouest qui baigne les espaces de lumière tout au long de la journée.

Le séjour aux volumes généreux, prolongé par une loggia, offre un panorama spectaculaire et dégagé sur Paris, la Tour Eiffel et la Fondation Louis Vuitton — un véritable tableau vivant au fil des heures.

La cuisine indépendante, à la fois conviviale et fonctionnelle, pourra aisément s'ouvrir sur la pièce de vie pour créer un espace encore plus contemporain et fluide.

L'espace nuit, parfaitement équilibré, comprend trois chambres, deux salles de bains et deux WC, garantissant confort et intimité à chacun. De nombreux rangements intégrés viennent parfaire l'organisation de cet appartement pensé pour la vie de famille.

Vous profiterez d'une copropriété de grand standing, avec capitainerie 24h/24, triple ascenseur et accès entièrement sécurisé.

Une cave et un emplacement de parking complètent ce bien.

À proximité immédiate de l'Île de Puteaux (parc, piscine, tennis…), des commerces, écoles et transports (métro ligne 1, tram T2, gare de Puteaux), cet appartement réunit emplacement recherché, volumes rares et vues d'exception sur les plus beaux horizons parisiens.

Un bien d'exception pour amateurs de lumière, d'espace et de panoramas uniques.

Et s'il s'agissait de votre futur "chez vous" ?
Pour plus d'informations ou pour organiser une visite, contactez moi.

Nombre de lots de la copropriété : 620, Montant moyen annuel de la quote-part de charges (budget prévisionnel) : 8445€ soit 703€ par mois. Les honoraires sont à la charge du vendeur.
Les informations sur les risques auxquels ce bien est exposé sont disponibles sur le site Géorisques : www. georisques. gouv. fr.

Réseau Immobilier CAPIFRANCE - Votre agent commercial (RSAC N°849 586 789 - Greffe de NANTERRE) Olivier BLAREL Entrepreneur Individuel [Coordonnées masquées] - Réf.928057
Voir plus

Référence: 340935690729
Bien en copropriété. Nombre de lots : 620. Charges de copropriété : 703 €.
Honoraires à la charge du vendeur.
DPE
A
B
C
D
E
F
G
GES
A
B
C
D
E
F
G
Appartement à PUTEAUX
Appartement à PUTEAUX
Appartement à PUTEAUX
Appartement à PUTEAUX
Appartement à PUTEAUX
Appartement à PUTEAUX
Appartement à PUTEAUX
Appartement à PUTEAUX
Appartement à PUTEAUX
Appartement à PUTEAUX
Appartement à PUTEAUX
Appartement à PUTEAUX
Appartement à PUTEAUX
Appartement à PUTEAUX
Appartement à PUTEAUX
Appartement à PUTEAUX
Appartement à PUTEAUX
Appartement à PUTEAUX
Géorisques

Les informations sur les risques auxquels ce bien est exposé sont disponibles sur le site Géorisques : www.georisques.gouv.fr

Ce site est protégé par hCaptcha Politique de confidentialité et Conditions d’utilisation s’appliquent.

En poursuivant votre navigation sans modifier vos paramètres, vous acceptez l'utilisation de cookies susceptibles de réaliser des statistiques de visite. Cliquez ici pour plus d'informations