Bénéficiez des services de nos partenaires locaux soigneusement sélectionnés
pour vous accompagner dans votre parcours d'achat immobilier

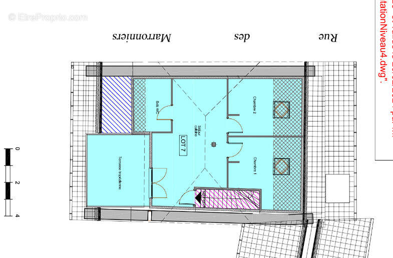
Surface brute de 51 m2

— Pouilley-Les-Vignes 25115 —
135 000 €
51 m²
3 pièces
balcon/terrasse

Nos partenaires locaux
À Pouilley-les-Vignes, au sein d’une copropriété neuve, découvrez ce T3 d’environ 51 m2 en surface brute au R+2 LOT 7. Le bien est vendu avec le plancher entièrement refait à neuf.
Le plan proposé prévoit deux chambres, une salle de bains/WC, ainsi qu’un espace cuisine/séjour donnant accès à une vaste terrasse tropézienne exposée plein sud de 14 m2, idéale pour profiter des beaux jours en toute tranquillité. Une cave privative est incluse avec le logement.
Il est possible d'acquerir le bien NEUF eu prix de 208 000 €;
Deux places de parking extérieures sont inclus avec l'appartement.
Situé dans une résidence récente, le bien bénéficie de toutes les garanties liées à une construction neuve : garantie décennale, assurance dommage ouvrage, et charges de copropriété limitées à environ 30 € par mois. La fibre optique est installée, et un local poubelle commun est à disposition des copropriétaires.
Pour plus d'information, Contactez Jérôme Lièvremont au [Coordonnées masquées] - Annonce rédigée et publiée par un Agent Mandataire -
Voir plus

Référence: 2604
Bien en copropriété. Nombre de lots : 8.
Barème des honoraires

Prêt immobilier

Vous souhaitez connaître votre capacité d’emprunt et trouver le meilleur crédit immobilier ?
Réaliser une simulation gratuite

Appartement à POUILLEY-LES-VIGNES
Appartement à POUILLEY-LES-VIGNES
Appartement à POUILLEY-LES-VIGNES
Ce site est protégé par reCAPTCHA la Politique de confidentialité et les Conditions d’utilisation de Google s’appliquent.
Obtenir un prêt immobilier au meilleur taux ?

En poursuivant votre navigation sans modifier vos paramètres, vous acceptez l'utilisation de cookies susceptibles de réaliser des statistiques de visite. Cliquez ici pour plus d'informations