Bénéficiez des services de nos partenaires locaux soigneusement sélectionnés
pour vous accompagner dans votre parcours d'achat immobilier

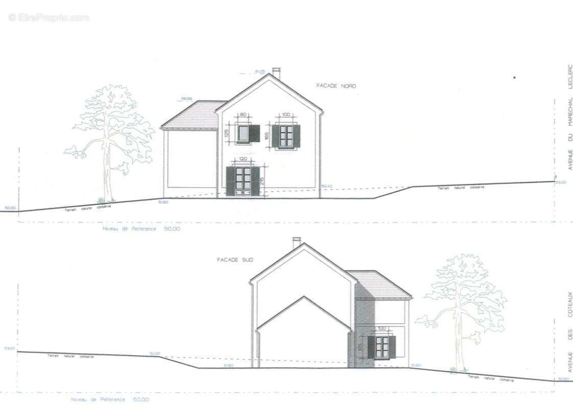
Vend permis de contruire accepte avec terrain

— Boisemont 95000 —
621 000 €
1 087 m²

Nos partenaires locaux
Au cœur de la plus belle avenue de la commune de Boisemont, terrain à bâtir arboré ( arbres mémorables à conserver) de 1087 m² avec permis de construire accepté.
Le cadre est verdoyant et l'environnement est sublime.

Le permis accepté est vendu pour être bâti en exclusivité par le constructeur LDT situé à Puiseux-Pontoise ( VILLAPOLIS).
La maison en R+1 répond à toutes les normes architecturales du Parc Régional du Vexin : Tuiles 68 au m², enduit gratté, fenêtres avec petits bois plus hautes que larges en bois sauf les baies vitrées en aluminium, gouttières et descentes en zinc Chauffage par pompe à chaleur. Plancher chauffant et rafraichissant au RDC et radiateurs basse température à l'étage.
Garage accolé.
237 m² habitables à aménager au grès de vos envies. En effet, les plans intérieurs ne sont pas définis dans le permis. Il est par contre impossible de modifier une ouverture. Vide sanitaire de 2m20 sur le permis pouvant être aménagé en sous-sol avec accès intérieur.
Le prix présenté comprend la maison aux normes RE2020, le terrain, les frais de notaire, l'abattage de certains arbres, l'enlèvement des terres, le chemin d'accès, le puisard ainsi que les frais de viabilités publiques et privés.
Voir plus

Référence: 220916-170500_D2319467D

Prêt immobilier

Vous souhaitez connaître votre capacité d’emprunt et trouver le meilleur crédit immobilier ?
Réaliser une simulation gratuite

Terrain à BOISEMONT
Terrain à BOISEMONT
Terrain à BOISEMONT
Terrain à BOISEMONT
Terrain à BOISEMONT
Terrain à BOISEMONT
Terrain à BOISEMONT
Terrain à BOISEMONT
Terrain à BOISEMONT
Terrain à BOISEMONT
Ce site est protégé par reCAPTCHA la Politique de confidentialité et les Conditions d’utilisation de Google s’appliquent.
Obtenir un prêt immobilier au meilleur taux ?

En poursuivant votre navigation sans modifier vos paramètres, vous acceptez l'utilisation de cookies susceptibles de réaliser des statistiques de visite. Cliquez ici pour plus d'informations