Exclusivite duplex 4 chambres rare au cœur de nice, quartier port

— Nice 06300 —
885 000 €
162 m²
5 pièces
balcon/terrasse

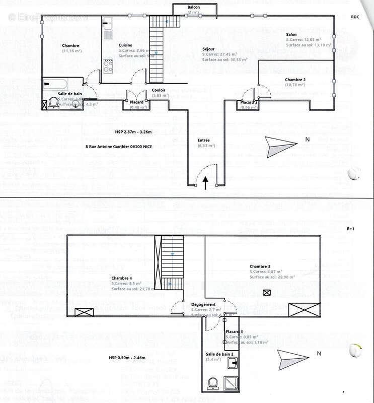
Idéalement situé à deux pas du Vieux Port de Nice et de la ligne 2 du tram et du futur Palais des Congrès dans un immeuble Niçois ancien récemment rénové, ce magnifique duplex de 107 m2 Loi Carrez (161 m2 au sol) vous séduira par ses volumes, son charme authentique et ses prestations contemporaines.
Occupant les deux derniers étages accès avec ascenseur, cet appartement unique allie cachet de l’ancien et confort moderne. Dès l’entrée, le séjour-salle à manger de près de 43 m2 impressionne par ses volumes généreux, son escalier central, baigné de lumière naturelle (exposition ouest et nord. À ce niveau, vous trouverez également deux chambres dont une exposée sud avec une jolie vue sur la colline du chateau, une salle de bains avec WC, ainsi qu’un balcon .
À l’étage, deux chambres mansardées climatisées, récemment rénovées avec velux neufs (février 2025), offrent de très beaux volumes en surface au sol, optimisés par de nombreux rangements sur mesure. Une salle d’eau avec WC, entièrement rénovée, complète cet espace nuit à l’ambiance chaleureuse, rappelant l’atmosphère d’une maison en plein centre-ville ( niveau concentre la quasi totalité de la surface hors carrez) .
Prestations complémentaires :


Climatisation dans toutes les pièces


Chauffage individuel au gaz (confort optimal en hiver)


Charges mensuelles faibles (env. 250 €)


Taxe foncière env. 1700 €


Petite copropriété bien entretenue


Ce bien rare combine qualité de vie, accessibilité et mobilité. Il est également situé dans une copropriété en très bon état d'entretien.
Coup de cœur assuré pour ce bien atypique, idéal pour une famille, un pied-à-terre haut de gamme ou une résidence principale à deux pas de toutes les commodités, dans l’un des quartiers les plus dynamiques et recherchés de Nice.

Ideally located just steps from the Vieux Port of Nice, Line 2 of the tramway, and the upcoming Convention Center, this magnificent duplex of 107 m2 (Carrez law) and 161 m2 of total floor space will charm you with its generous volumes, authentic character, and modern amenities.
Situated on the top two floors of a recently renovated traditional Niçois building with elevator access, this unique apartment beautifully combines old-world charm with contemporary comfort. Upon entering, the spacious 43 m2 living and dining room impresses with its large open space, central staircase, and abundant natural light thanks to its west and north-facing exposure. On this level, you’ll also find two bedrooms, one of which offers a lovely open view of the Château Hill, a bathroom with toilet, and a balcony.
Upstairs, two air-conditioned attic bedrooms, recently renovated with brand-new skylights (installed in February 2025), offer excellent floor space, thoughtfully optimized with custom-built storage. A fully renovated shower room with toilet completes this warm and inviting night space, evoking the feeling of a townhouse right in the city center. (This upper level represents nearly all of the non-Carrez floor area.)
Additional features include:


Air conditioning in all rooms


Individual gas heating (ideal comfort during winter)


Low monthly service charges (approx. €250)


Property tax approx. €1,700


Well-maintained small co-ownership


This rare property offers an exceptional combination of quality of life, accessibility, and urban mobility. Set within a building in excellent overall condition, this is a turnkey opportunity.
A true 'coup de cœur' for those seeking an atypical and spacious home, ideal for a family, a luxury second residence, or a main home in one of Nice’s most vibrant and sought-after neighborhoods—just minutes from all amenities.
Voir plus

Bien en copropriété. Nombre de lots : 20. Charges de copropriété : 3009 €.
Barème des honoraires
DPE
A
B
C
D
E
F
G
GES
A
B
C
D
E
F
G

Prêt immobilier

Vous souhaitez connaître votre capacité d’emprunt et trouver le meilleur crédit immobilier ?
Réaliser une simulation gratuite

Appartement à NICE
Appartement à NICE
Appartement à NICE
Appartement à NICE
Appartement à NICE
Appartement à NICE
Appartement à NICE
Appartement à NICE
Appartement à NICE
Appartement à NICE
Appartement à NICE
Appartement à NICE
Appartement à NICE
Appartement à NICE
Appartement à NICE
Appartement à NICE
Appartement à NICE
Appartement à NICE
Appartement à NICE
Appartement à NICE
Appartement à NICE
Appartement à NICE
Appartement à NICE
Appartement à NICE
Appartement à NICE
Appartement à NICE
Appartement à NICE
Appartement à NICE
Ce site est protégé par reCAPTCHA la Politique de confidentialité et les Conditions d’utilisation de Google s’appliquent.
Obtenir un prêt immobilier au meilleur taux ?

En poursuivant votre navigation sans modifier vos paramètres, vous acceptez l'utilisation de cookies susceptibles de réaliser des statistiques de visite. Cliquez ici pour plus d'informations