Bénéficiez des services de nos partenaires locaux soigneusement sélectionnés
pour vous accompagner dans votre parcours d'achat immobilier

Avon appartement f4 entièrement rénové et aménagé, traversant, lumineux - 3 chambres - parking et cave

— Avon 77210 —
178 000 €
62 m²
4 pièces
parking

Nos partenaires locaux
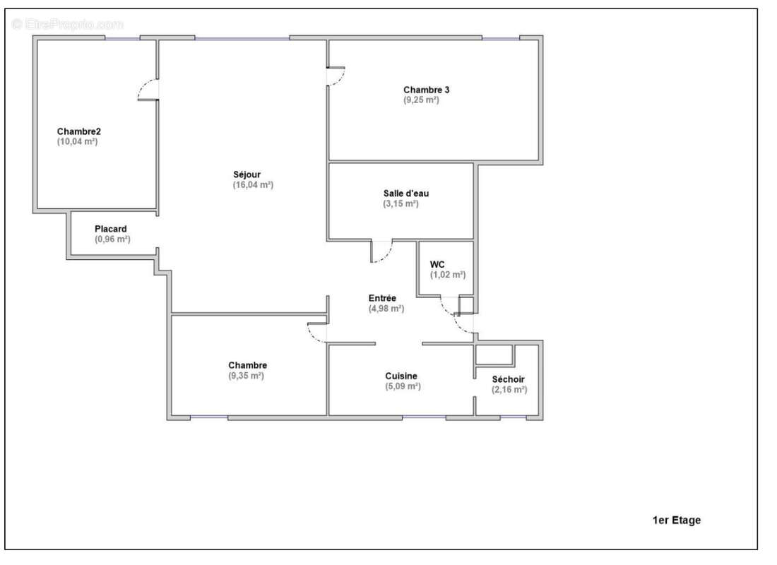
Appartement 4 pièces de 62 m² Résidence sécurisée - 9 min à pied de la gare Avon / Fontainebleau Découvrez ce F4 lumineux situé dans une résidence calme et sécurisée, idéalement placée à proximité immédiate de la gare, des commerces et des écoles. Une adresse recherchée pour un quotidien pratique et agréable. Agencement L'appartement se compose d'une entrée fonctionnelle, un séjour avec vue dégagée sur le parc arboré de la résidence, une cuisine indépendante + cellier. Trois chambres, toutes orientées sur le parc du Val du Moulin. Une salle de douche moderne et des WC séparé Atouts complémentaires Cave et usage d'une place de parking privative extérieure. Double vitrage Chauffage collectif au gaz Résidence entretenue et sécurisée Informations pratiques DPE : D Taxe foncière : 1 048 euros Charges : 190 euros/mois (eau froide, entretien des parties communes, etc.) Bien soumis au statut de copropriété Cet appartement était précédemment loué en colocation, ce qui en fait un investissement idéal, mais il conviendra tout autant à une famille souhaitant un cadre de vie calme et verdoyant, à proximité de la gare. Copropriété de 372 lots - dont 160 lots habitation. (Pas de procédure en cours). Charges annuelles : 2280 euros.
Voir plus

Référence: 130
Bien en copropriété. Nombre de lots : 372. Charges de copropriété : 2280 €.
Honoraires à la charge du vendeur.
Barème des honoraires
DPE
A
B
C
D
E
F
G
GES
A
B
C
D
E
F
G

Prêt immobilier

Vous souhaitez connaître votre capacité d’emprunt et trouver le meilleur crédit immobilier ?
Réaliser une simulation gratuite

Appartement à AVON
Appartement à AVON
Appartement à AVON
Appartement à AVON
Appartement à AVON
Appartement à AVON
Appartement à AVON
Appartement à AVON
Appartement à AVON
Appartement à AVON
Appartement à AVON
Appartement à AVON
Appartement à AVON
Appartement à AVON
Appartement à AVON
Appartement à AVON
Appartement à AVON
Appartement à AVON
Ce site est protégé par reCAPTCHA la Politique de confidentialité et les Conditions d’utilisation de Google s’appliquent.
Obtenir un prêt immobilier au meilleur taux ?

En poursuivant votre navigation sans modifier vos paramètres, vous acceptez l'utilisation de cookies susceptibles de réaliser des statistiques de visite. Cliquez ici pour plus d'informations