Bénéficiez des services de nos partenaires locaux soigneusement sélectionnés
pour vous accompagner dans votre parcours d'achat immobilier

Le puy-sainte-réparade - maison de village neuve avec 3 chambres et jardin privatif

— Le Puy-Sainte-Reparade 13610 —
515 000 €
90 m² / 400 m²
4 pièces
jardin

Nos partenaires locaux
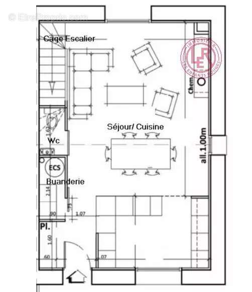
Ancienne grange agricole en pierre du début du XXᵉ siècle, entièrement rénovée avec des prestations haut de gamme et transformée en deux maisons mitoyennes d’environ 90 m² chacune (87 m² loi Carrez).
Chaque maison comprend :
Rez-de-chaussée : grande pièce à vivre traversante et lumineuse avec trois fenêtres dont deux portes-fenêtres donnant sur les jardins avant et arrière. Cuisine ouverte équipée (électroménager Bosch et SMEG, plan de travail en marbre), coin repas, salon avec cheminée ouverte.
Étage : trois chambres (dont une suite parentale), deux salles de bain, deux WC indépendants, buanderie et nombreux rangements intégrés. Bel escalier en pierre et fer forgé, climatisation réversible.
Les extérieurs offrent :
Jardin privatif d’environ 400 m² (nord et sud) avec arrosage automatique, Deux places de stationnement par maison, Cabanon pour vélos et outils.
Bien en copropriété légère (portail électrique et voie d’accès partagés).
Situées à Le Puy-Sainte-Réparade, charmant village provençal à 18 km d’Aix-en-Provence et 40 min de l’aéroport Aix/Marseille, entre le Luberon et la Côte d’Azur.
Le village offre tous commerces et services à pied (pharmacies, boulangeries, boucheries, fromagerie, marché, restaurants, etc.) et abrite le Château La Coste, domaine viticole et artistique renommé avec restaurants, hôtels et œuvres d’art contemporaines.

Les informations sur les risques auxquels ce bien est exposé sont disponibles sur le site Géorisques : www.georisques.gouv.fr

Agent commercial immatriculé au Registre spécial des agents commerciaux du greffe du tribunal de commerce de Paris sous le numéro 798 425 583 00019.9.
Voir plus

Référence: 86430732
DPE
A
B
C
D
E
F
G
GES
A
B
C
D
E
F
G

Prêt immobilier

Vous souhaitez connaître votre capacité d’emprunt et trouver le meilleur crédit immobilier ?
Réaliser une simulation gratuite

Appartement à LE PUY-SAINTE-REPARADE
Appartement à LE PUY-SAINTE-REPARADE
Appartement à LE PUY-SAINTE-REPARADE
Appartement à LE PUY-SAINTE-REPARADE
Appartement à LE PUY-SAINTE-REPARADE
Appartement à LE PUY-SAINTE-REPARADE
Appartement à LE PUY-SAINTE-REPARADE
Appartement à LE PUY-SAINTE-REPARADE
Appartement à LE PUY-SAINTE-REPARADE
Appartement à LE PUY-SAINTE-REPARADE
Appartement à LE PUY-SAINTE-REPARADE
Ce site est protégé par reCAPTCHA la Politique de confidentialité et les Conditions d’utilisation de Google s’appliquent.
Obtenir un prêt immobilier au meilleur taux ?

En poursuivant votre navigation sans modifier vos paramètres, vous acceptez l'utilisation de cookies susceptibles de réaliser des statistiques de visite. Cliquez ici pour plus d'informations