Bénéficiez des services de nos partenaires locaux soigneusement sélectionnés
pour vous accompagner dans votre parcours d'achat immobilier

Maison familiale en plein centre d'issy les moulineaux

— Issy-Les-Moulineaux 92130 —
1 390 000 €
165 m²
8 pièces
parking

Nos partenaires locaux
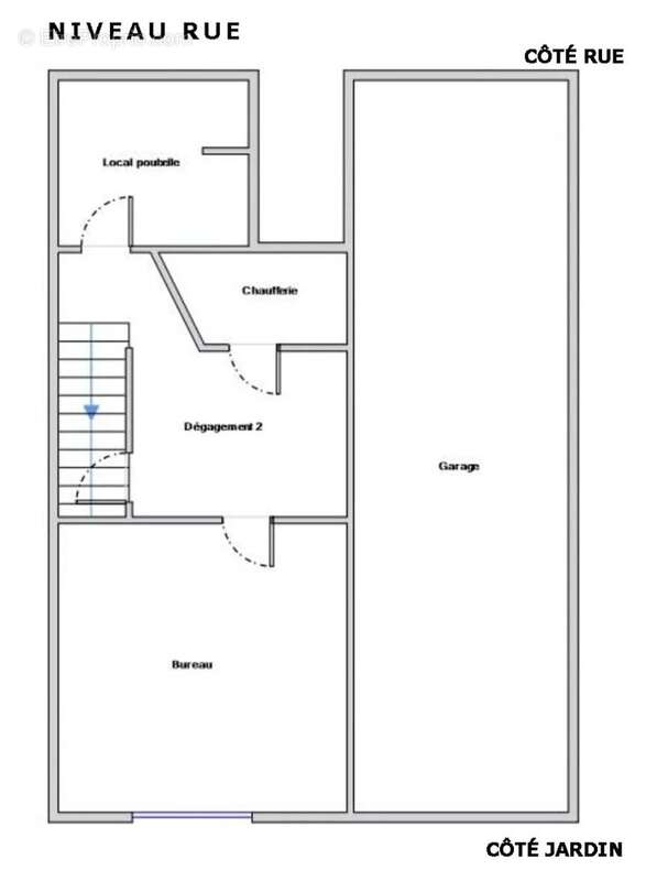
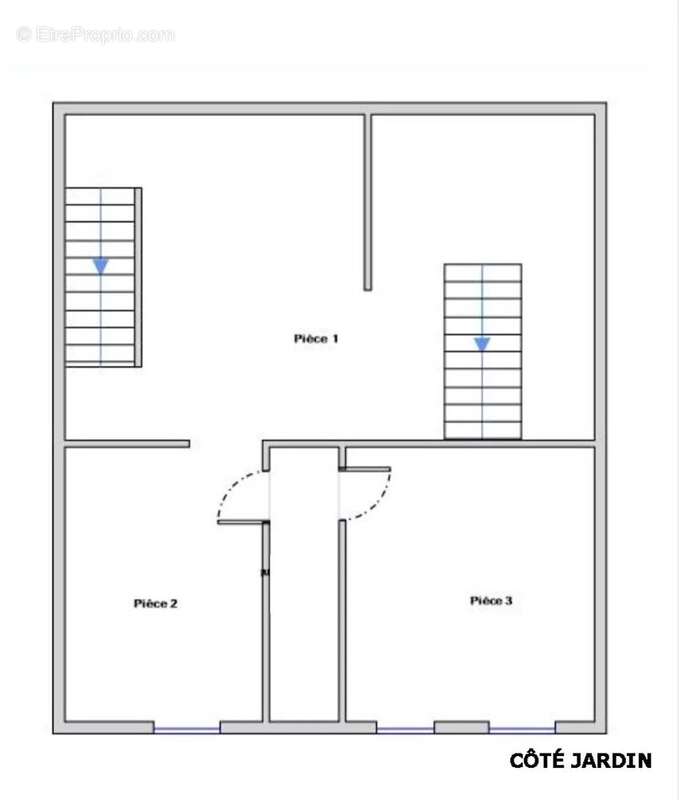
A 4mn à pied du métro Mairie d'issy et de tous les commerces, dans petite rue calme, maison familiale de 1920 , 165M2 (256 M2 surface au sol) avec jardin, terrasses et un grand garage. Au RDC : double séjour de 38M2 traversant avec parquet chêne et 2 terrasses, WC, Cuisine séparée. Au 1er étage 2 chambres, grande salle d'eau, WC. Au 2ème étage: 3 chambres, Salle d'eau avec WC + un bureau transformé en cuisine. Le sous sol propose un garage double, chaufferie, local vélo et un grand bureau de 14M2 avec baie vitrée donnant sur le jardin. En Rez de jardin 3 pièces supplémentaires pouvant servir d'atelier, bureau ou buanderie. jardin de 100M2. Chaudière fioul et eau chaude avec chauffe eau solaire.Travaux d'isolation à prévoir (Audit énergétique réalisé). Idéale pour famille nombreuse ou profession libérale
Voir plus

Référence: 86445555
Barème des honoraires
DPE
A
B
C
D
E
F
G
GES
A
B
C
D
E
F
G

Prêt immobilier

Vous souhaitez connaître votre capacité d’emprunt et trouver le meilleur crédit immobilier ?
Réaliser une simulation gratuite

Maison à ISSY-LES-MOULINEAUX
Maison à ISSY-LES-MOULINEAUX
Maison à ISSY-LES-MOULINEAUX
Maison à ISSY-LES-MOULINEAUX
Maison à ISSY-LES-MOULINEAUX
Maison à ISSY-LES-MOULINEAUX
Maison à ISSY-LES-MOULINEAUX
Maison à ISSY-LES-MOULINEAUX
Maison à ISSY-LES-MOULINEAUX
Maison à ISSY-LES-MOULINEAUX
Maison à ISSY-LES-MOULINEAUX
Maison à ISSY-LES-MOULINEAUX
Maison à ISSY-LES-MOULINEAUX
Maison à ISSY-LES-MOULINEAUX
Maison à ISSY-LES-MOULINEAUX
Maison à ISSY-LES-MOULINEAUX
Maison à ISSY-LES-MOULINEAUX
Maison à ISSY-LES-MOULINEAUX
Maison à ISSY-LES-MOULINEAUX
Maison à ISSY-LES-MOULINEAUX
Maison à ISSY-LES-MOULINEAUX
Maison à ISSY-LES-MOULINEAUX
Ce site est protégé par reCAPTCHA la Politique de confidentialité et les Conditions d’utilisation de Google s’appliquent.
Obtenir un prêt immobilier au meilleur taux ?

En poursuivant votre navigation sans modifier vos paramètres, vous acceptez l'utilisation de cookies susceptibles de réaliser des statistiques de visite. Cliquez ici pour plus d'informations