Bénéficiez des services de nos partenaires locaux soigneusement sélectionnés
pour vous accompagner dans votre parcours d'achat immobilier

Voir tous les partenaires locaux

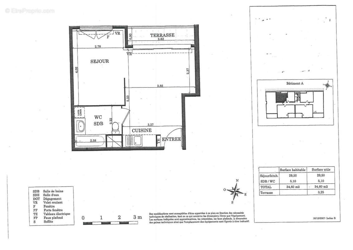
Montpellier antigone appartement t2 compact de 34.60m2

— Montpellier 34000 —
139 000 €
34 m²
2 pièces
balcon/terrasse

Nos partenaires locaux
Votre rénovation énergétique
Cozynergy réalise vos travaux de rénovation énergétique, clé en main et aides déduites. Simulez votre projet ici :
cliquez-ici
Votre storiste local
Monsieur Store c’est aussi, des portes d’entrée & fenêtre, portes de garage et portails, sur mesure. RGE garantie !
04 67 92 71 26 ou cliquez-ici
Votre déménageur
Simplifiez vous la vie en faisant appel à notre équipe de professionnels ! N'attendez plus, contactez nous au :
07 83 71 91 14 ou cliquez-ici
Votre spécialiste en travaux
Un accompagne sur mesure pour votre : maçonnerie, couverture, charpente et vos rénovations. Contact au :
06 69 90 34 34 ou cliquez-ici
Votre specialiste rénovation
Construction clé en main - Rénovation - Gros œuvre. - Isolation - Placo - Chauffage - Clim - Menuiseries
06 03 30 67 71 ou cliquez-ici
Votre expert de l'électricité
Electricité générale-Construction neuve- Rénovation et dépannage- Chauffage électrique, contact: [email protected]
04 67 45 57 12 ou cliquez-ici

Voir tous les partenaires locaux

MONTPELLIER- QUARTIER ANTIGONE , Dans une résidence sécurisée de 2009 , appartement de type T2 compact de 34.60m2 situé au 1er étage comprenant un séjour avec kichenette donnant sur une terrasse de 3.5m2 , une chambre , une salle de bains .
Bien soumis au statut juridique de la copropriété. Charges annuelles de copropriété (Montant moyen annuel quote-part du budget prévisionnel vendeur) 842€
Les informations sur les risques auxquels ce bien est exposé sont disponibles sur le site Géorisques : www. georisques. gouv. fr
Pour tous renseignements complementaires ou visite veuillez contacter : Martine ABAD [Coordonnées masquées]- Agence AMJ IMMO
Voir plus

Bien en copropriété. Nombre de lots : 52.
Honoraires d'agence de 5.3% à la charge de l'acquéreur
Barème des honoraires
DPE
A
B
C
D
E
F
G
GES
A
B
C
D
E
F
G
Appartement à MONTPELLIER
Appartement à MONTPELLIER
Appartement à MONTPELLIER
Appartement à MONTPELLIER
Appartement à MONTPELLIER
Appartement à MONTPELLIER
Appartement à MONTPELLIER
Appartement à MONTPELLIER
Géorisques

Les informations sur les risques auxquels ce bien est exposé sont disponibles sur le site Géorisques : www.georisques.gouv.fr

Ce site est protégé par hCaptcha Politique de confidentialité et Conditions d’utilisation s’appliquent.

En poursuivant votre navigation sans modifier vos paramètres, vous acceptez l'utilisation de cookies susceptibles de réaliser des statistiques de visite. Cliquez ici pour plus d'informations