Bénéficiez des services de nos partenaires locaux soigneusement sélectionnés
pour vous accompagner dans votre parcours d'achat immobilier

Appartement t3 proche gare avec balcon et garage

— Vernon 27200 —
194 250 €
74 m²
3 pièces
parkingbalcon/terrasse

Nos partenaires locaux
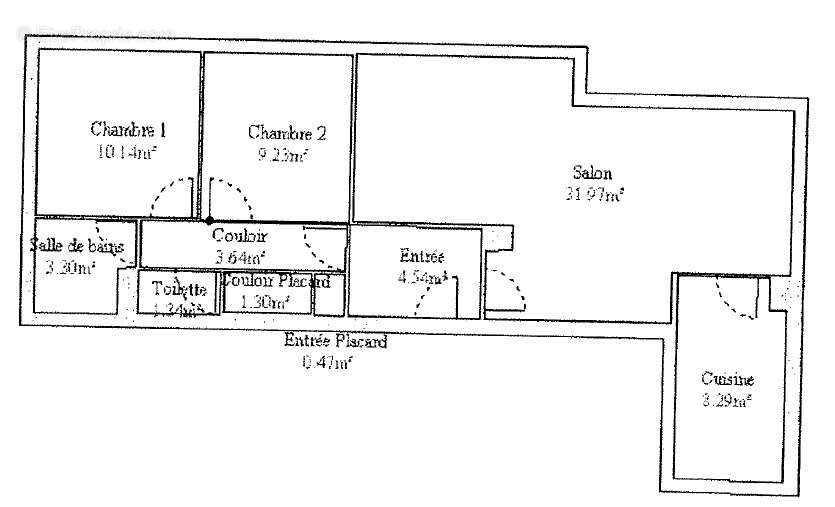
A moins de 10 minutes à pied de la gare de Vernon-Giverny, venez découvrir cet appartement 3 pièces de 74.22 m2 spacieux et lumineux.
Il se compose d’un séjour de 31 m2 donnant sur un balcon, d’une cuisine séparée et aménagée, d’une entrée donnant sur le couloir avec rangements, de deux chambres, d’une salle de bain avec baignoire et de WC séparés.
Vous bénéficierez également d’une cave au sous-sol de la résidence et d’un garage fermé.
L’appartement se trouve au 1er étage sans ascenseur d’une copropriété comprenant 44 lots principaux, avec un syndic professionnel. Les charges de copropriété annuelles pour ce lot s’élèvent à 1 500 €. Aucune procédure en cours n’affecte la copropriété. La toiture de l’immeuble est en cours de réfection complète, garantissant ainsi la tranquillité pour les années à venir. La taxe foncière sélèce quant à elle à 1990 euros en 2025.
Le bien se trouve en centre-ville avec : accès direct à la gare pour Paris ou Rouen, réseaux de bus locaux, écoles et crèches à proximité, ainsi que de nombreuses infrastructures sportives (piscine, stades, clubs associatifs), également à coté de commerces, restaurants et marchés pour un quotidien pratique, non loin du bord de Seine, proche de Giverny et de ses jardins.
Voir plus

Référence: 2509099
Bien en copropriété. Nombre de lots : 44. Charges de copropriété : 1510 €.
Honoraires à la charge du vendeur.
Barème des honoraires
DPE
A
B
C
D
E
F
G
GES
A
B
C
D
E
F
G
Appartement à VERNON
Appartement à VERNON
Appartement à VERNON
Appartement à VERNON
Appartement à VERNON
Appartement à VERNON
Appartement à VERNON
Appartement à VERNON
Appartement à VERNON
Appartement à VERNON
Appartement à VERNON
Appartement à VERNON
Appartement à VERNON
Appartement à VERNON
Appartement à VERNON
Appartement à VERNON
Appartement à VERNON
Appartement à VERNON
Appartement à VERNON
Appartement à VERNON
Appartement à VERNON
Géorisques

Les informations sur les risques auxquels ce bien est exposé sont disponibles sur le site Géorisques : www.georisques.gouv.fr

Ce site est protégé par hCaptcha Politique de confidentialité et Conditions d’utilisation s’appliquent.