Villa neuve buzet 92m²

— Buzet-Sur-Tarn 31660 —
315 000 €
92 m² / 534 m²
4 pièces
parkingbalcon/terrassejardinaccès handicapé

Villa neuve 3 chambres – VEFA – Buzet-sur-Tarn – 315 000 €
Située à Buzet-sur-Tarn, à seulement 25 minutes de Toulouse, cette villa neuve de plain-pied en Vente en l’État Futur d’Achèvement (VEFA) vous séduira par ses prestations de qualité et son environnement résidentiel paisible.
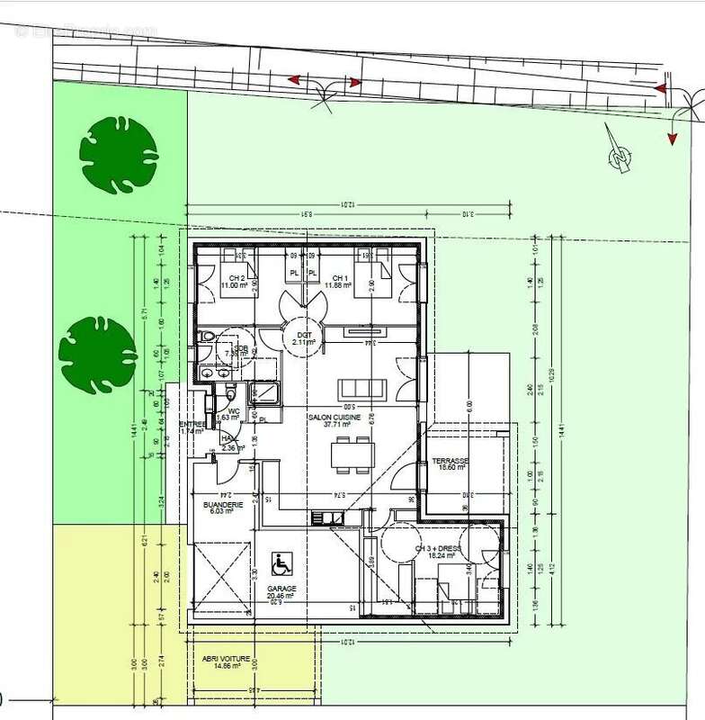
Construite sur un terrain de 534 m², elle offre une surface habitable de 92 m² et se compose de 3 chambres, d’un garage, d’un carport, d’une terrasse brute, d’une salle de bain et de WC séparés.
Prestations haut de gamme :
• Chauffage et climatisation gainable par pompe à chaleur
• Chauffe-eau thermodynamique
• Menuiseries PVC et aluminium blanches
• Volets roulants électriques
• Sol en carrelage dans les pièces de vie, parquet PVC dans les chambres
• Enduit gratté deux teintes : Gibraltar et Blanc de la Côte
• Construction conforme à la norme RE2020, garantissant performance énergétique et confort
Avantages :
• Frais de notaire réduits
• Garantie décennale incluse
• Assurance dommage ouvrage
• Possibilité de personnalisation des finitions (selon l’avancement du chantier)
Cadre de vie agréable :
Vous profiterez d’une vie au calme, proche des commerces, écoles, transports et grands axes. Idéal pour une famille ou un projet de vie serein à proximité de la nature tout en restant connecté à la métropole toulousaine.
Prix de vente : 315 000 €

Livraison Printemps 2027
Contactez-nous dès maintenant pour recevoir les plans, les visuels 3D ou organiser un rendez-vous.
Voir plus

Référence: 86135716
Barème des honoraires

Prêt immobilier

Vous souhaitez connaître votre capacité d’emprunt et trouver le meilleur crédit immobilier ?
Réaliser une simulation gratuite

Maison à BUZET-SUR-TARN
Maison à BUZET-SUR-TARN
Ce site est protégé par reCAPTCHA la Politique de confidentialité et les Conditions d’utilisation de Google s’appliquent.
Obtenir un prêt immobilier au meilleur taux ?

En poursuivant votre navigation sans modifier vos paramètres, vous acceptez l'utilisation de cookies susceptibles de réaliser des statistiques de visite. Cliquez ici pour plus d'informations