Bénéficiez des services de nos partenaires locaux soigneusement sélectionnés
pour vous accompagner dans votre parcours d'achat immobilier

Charnay les macon - local professionnel

— Charnay-Les-Macon 71850 —
167 800 €
81 m²
parking

Nos partenaires locaux
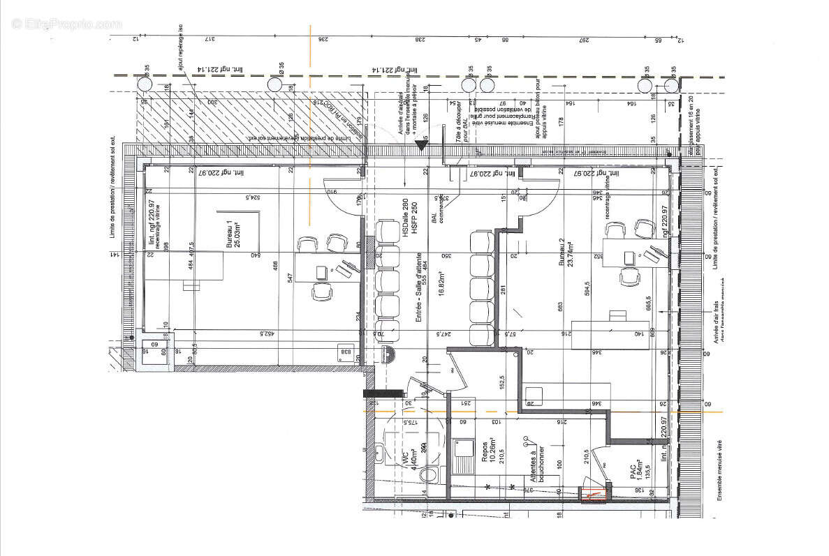
CHARNAY-LES-MACON - Local professionnel à vendre

Situé au cœur d'un nouveau quartier à CHARNAY LES MACON - La Nouvelle Coupée, à proximité de Mâcon.

CARRE PRO Immobilier vous propose l'achat d'un local en rez de chaussée.
Une surface privative de 81.83m² comprenant :
- Un bureau 1 de 25.03m²
- Un bureau 2 de 23.74m²
- Une salle d'attente de 16.56m²
- Une salle de repos de 10.26m²
- d'un sanitaire d'une surface de 4.40m².

Le tout aux normes PMR.
Système de chauffage : Climatisation réversible

-Tarif: 167 800 € HT soit 201 360 € TTC
-Taxe foncière annuelle charge preneur : 652€ (en 2024)

N'hésitez pas à nous contacter au [Coordonnées masquées] pour plus de renseignements.
Voir plus

Référence: V9198-0002-0001-0003
Bien en copropriété.
DPE
A
B
C
D
E
F
G
GES
A
B
C
D
E
F
G

Prêt immobilier

Vous souhaitez connaître votre capacité d’emprunt et trouver le meilleur crédit immobilier ?
Réaliser une simulation gratuite

Commerce à CHARNAY-LES-MACON
Commerce à CHARNAY-LES-MACON
Commerce à CHARNAY-LES-MACON
Commerce à CHARNAY-LES-MACON
Commerce à CHARNAY-LES-MACON
Commerce à CHARNAY-LES-MACON
Ce site est protégé par reCAPTCHA la Politique de confidentialité et les Conditions d’utilisation de Google s’appliquent.
Obtenir un prêt immobilier au meilleur taux ?

En poursuivant votre navigation sans modifier vos paramètres, vous acceptez l'utilisation de cookies susceptibles de réaliser des statistiques de visite. Cliquez ici pour plus d'informations