Bénéficiez des services de nos partenaires locaux soigneusement sélectionnés
pour vous accompagner dans votre parcours d'achat immobilier

Bien très rare sur st marc !

— Brest 29200 —
522 000 €
135 m² / 182 m²
5 pièces
parkingbalcon/terrasse

Nos partenaires locaux
Vous recherchez un bel et grand appartement en ville dans le quartier St Marc ?

Venez découvrir ce bien d'un niveau de finition rare.
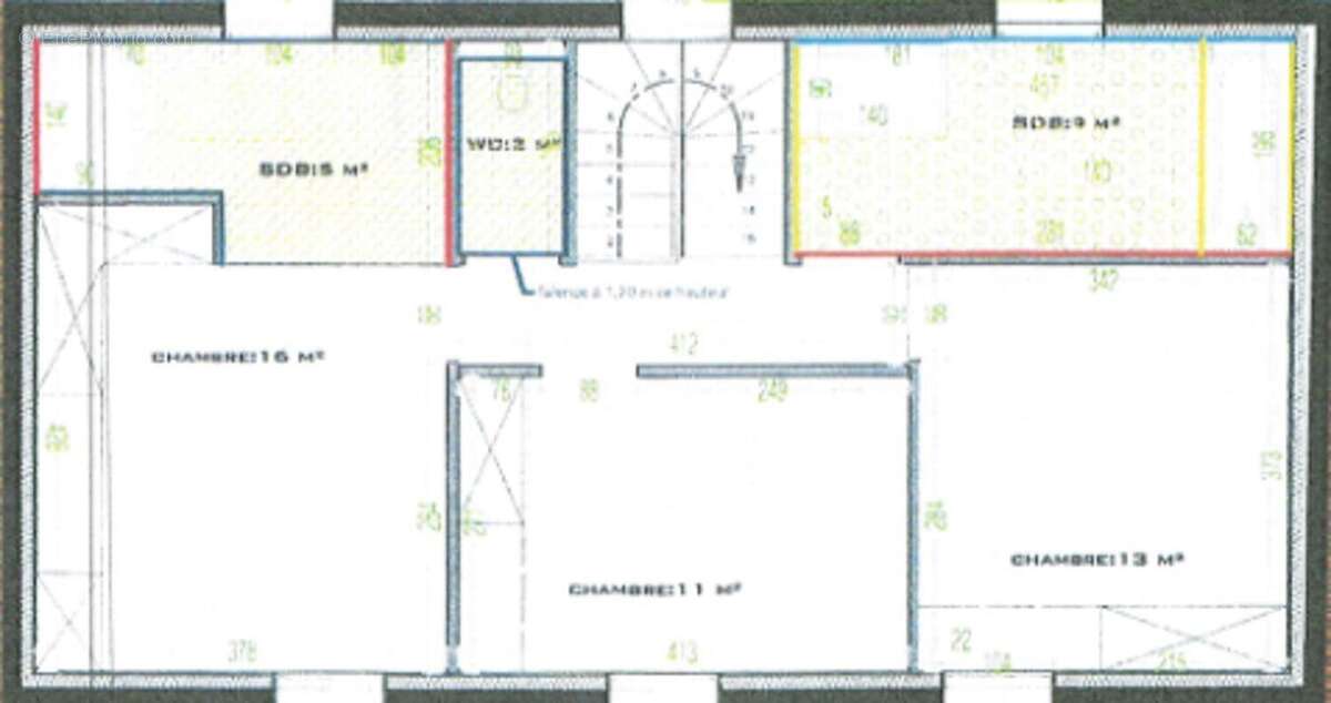
Très grande pièce de vie au premier niveau avec une superbe cuisine équipée, espace bureau et salon. Il y a aussi une buanderie sur ce niveau.
A l'étage, 3 chambres dont une suite parentale avec dressing et belle salle d'eau privative. Il y a également une grande salle de bains avec baignoire, douche et double vasque.

Je vous ai parlé d'appartement au début de cette annonce et en fait il s'agit bien d'une maison de ville, donc pas de frais de copro ! Une grande terrasse accessible depuis la cuisine et le salon et enfin un garage, bref une maison rare sur le marché.
Le stationnement dans la rue se fait facilement également et on se trouve à quelques minutes à pieds des commerces et des écoles.

Les informations sur les risques auxquels ce bien est exposé sont disponibles sur le site Géorisques : www.georisques.gouv.fr.
Voir plus

Référence: DK-2066
Honoraires à la charge du vendeur.
DPE
A
B
C
D
E
F
G
GES
A
B
C
D
E
F
G

Prêt immobilier

Vous souhaitez connaître votre capacité d’emprunt et trouver le meilleur crédit immobilier ?
Réaliser une simulation gratuite

Maison à BREST
Maison à BREST
Maison à BREST
Maison à BREST
Maison à BREST
Maison à BREST
Maison à BREST
Maison à BREST
Maison à BREST
Maison à BREST
Maison à BREST
Maison à BREST
Maison à BREST
Maison à BREST
Maison à BREST
Maison à BREST
Maison à BREST
Maison à BREST
Maison à BREST
Maison à BREST
Maison à BREST
Maison à BREST
Maison à BREST
Maison à BREST
Maison à BREST
Maison à BREST
Ce site est protégé par reCAPTCHA la Politique de confidentialité et les Conditions d’utilisation de Google s’appliquent.
Obtenir un prêt immobilier au meilleur taux ?

En poursuivant votre navigation sans modifier vos paramètres, vous acceptez l'utilisation de cookies susceptibles de réaliser des statistiques de visite. Cliquez ici pour plus d'informations