Bénéficiez des services de nos partenaires locaux soigneusement sélectionnés
pour vous accompagner dans votre parcours d'achat immobilier

Maison 7 pièces 198 m² - langon

— Langon 33210 —
369 000 €
198 m² / 1 073 m²
7 pièces
parkingjardin

Nos partenaires locaux
PROCHE LANGON - Sur la commune de LANDIRAS, à 15 min de Langon et 35 min de Bordeaux

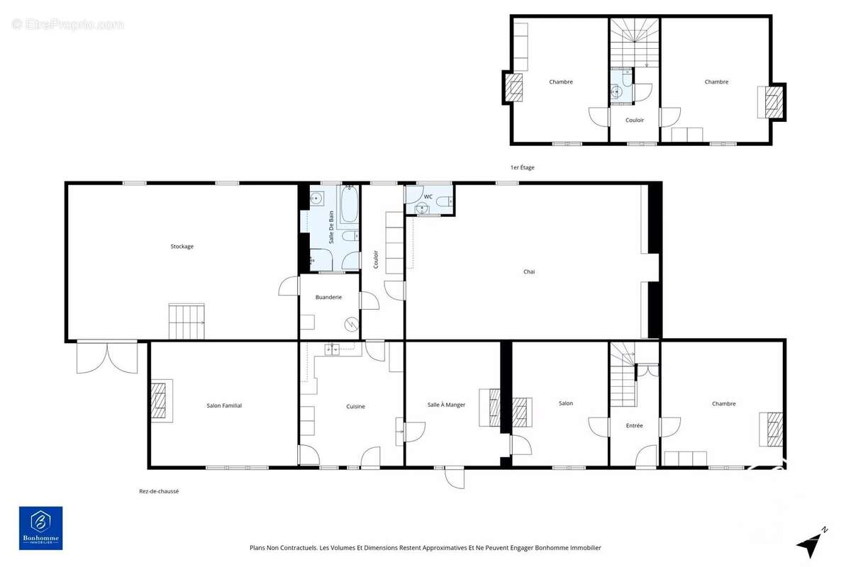
GROS POTENTIEL POUR CETTE BÂTISSE EN PIERRE - Au calme, venez découvrir cette belle maison en pierre de 198 m² à rénover. Elle offre de beaux volumes et se compose au rez-de-chaussée d'une entrée, un bureau, un salon, cuisine et séjour pouvant offrir après travaux une pièce de vie de plus de 50 m², un cellier, une salle de bains et wc, ainsi qu'une grande chambre.

A l'étage, un vaste pallier dessert deux chambres de + de 20 m² chacune.

Un garage attenant de 60 m², ainsi qu'un chai et des combles aménageables viennent compléter ce bien pouvant laisser libre cours à vos projets.
Agréable jardin arboré et possibilités de stationnement.

A découvrir sans tarder, n'hésitez pas à nous contacter !

Mentions Loi Alur :
- Agence : N°SIREN 942 709 676
- Statut du négociateur : Agent Commercial
- Prix FAI TTC de 369 000 euros
- Honoraires charge acquéreur : 14000 € soit 3.94%
- Référence annonce : 016VMB25
- Diagnostic énergétique réalisé le 04/04/2025 + audit énergétique réalisé le 15/05/2025
- Consommation énergétique : 287 kWh/m²/an
- Emission de gaz à effet de serre : 57 Kg CO2/m²/an
- Montant estimé des dépenses annuelles pour un usage standard : entre 4770 € et 6510 €/an. Prix moyen des énergies indexé sur les années de référence : 2021, 2022, 2023
- Les informations sur les risques auxquels ce bien est exposé sont disponibles sur le site Géorisques : georisques.gouv.fr
Voir plus

Référence: 86455388
Barème des honoraires
DPE
A
B
C
D
E
F
G
GES
A
B
C
D
E
F
G

Prêt immobilier

Vous souhaitez connaître votre capacité d’emprunt et trouver le meilleur crédit immobilier ?
Réaliser une simulation gratuite

Maison à LANGON
Maison à LANGON
Maison à LANGON
Maison à LANGON
Maison à LANGON
Maison à LANGON
Maison à LANGON
Maison à LANGON
Maison à LANGON
Maison à LANGON
Maison à LANGON
Maison à LANGON
Ce site est protégé par reCAPTCHA la Politique de confidentialité et les Conditions d’utilisation de Google s’appliquent.
Obtenir un prêt immobilier au meilleur taux ?

En poursuivant votre navigation sans modifier vos paramètres, vous acceptez l'utilisation de cookies susceptibles de réaliser des statistiques de visite. Cliquez ici pour plus d'informations