Bénéficiez des services de nos partenaires locaux soigneusement sélectionnés
pour vous accompagner dans votre parcours d'achat immobilier

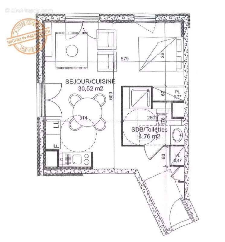
T1 bis à saint priest proche du château avec place de parking idéal investisseur ou habitation norme pmr

— Saint-Priest 69800 —
140 000 €
37 m²
1 pièce
ascenseuraccès handicapé

Nos partenaires locaux
En exclusivité au sein de notre agence,

A proximité du centre du village de SAINT PRIEST et des commerces, au pied de l'Arrêt "Cordière" du TRAM T2, dans une résidence récente et sécurisée livrée en 2016: « Les Jardins de CAMILLE »,

Situé au premier étage, venez découvrir ce spacieux T1BIS de 36,5 m² avec ascenseur et visiophone bénéficiant d’une double exposition ouest et nord-est offrant une sympathique vue sur la ville et la verdure.
Proche du château de Saint Priest, de la maison de santé des Cordières, et de différents parcs ainsi que du Carrefour City à 1 arrêt de Tram pour plus de confort de vie.

L’appartement se compose d'une entrée conviviale avec son placard, d’un salon lumineux (3 fenêtres) avec son coin cuisine, d'un coin chambres avec son dressing, d’une grande salle d’eau avec toilettes aux normes PMR donc avec de grands volumes.

Une place de parking en sous sol sécurisé vient compléter ce bien.



Menuiseries PVC double vitrage, volets roulants, eau chaude et chauffage par chaudière individuelle gaz de ville. Porte d'entrée blindée.

VALEUR LOCATIVE 552,25€ PAR MOIS.
Bien vendu libre de toute occupation.
Idéal Investisseur ou pied-à-terre professionnel.

A visiter sans tarder !


Informations techniques et loi ALUR :
Chauffage collectif au gaz, tout à l'égout, double vitrage, volets roulants.
Superficie carrez : 36,5 m²
Consommation conventionnelle DPE actuel : 108 kWh ep/m².an (Classe C)
Estimation des émissions DPE actuel : 20 kg CO2/M2 (Classe C)

A propos de la copropriété : Pas de procédure en cours

Nombre de lots :
Copropriété de 245 lots - dont 111 lots d'habitation : la différence est en place de parking,
Charges prévisionnelles annuelles : 770,48 € comprenant l'eau froide, les charges de copropriété, l'entretien de la copropriété. Soit 64,20€ / mois.

Montant estimé des dépenses annuelles d'énergie pour un usage standard : entre 420€ et 610€.
Prix moyens des énergies indexés sur l'année 2023 (abonnements compris)
Date du diagnostic : 20/11/2025

Taxe Foncière 2025 : 670€.

Prix: 140 000 euros Honoraires d'Agence Inclus charge vendeur, hors frais notariés, d'enregistrements et de publicité foncière.
Statut agent immobilier. EI


Les informations sur les risques auxquels ce bien est exposé sont disponibles sur le site Georisque : georisques.gouv. fr Contact commercial privilégié : Thibaud STEINLOFF [Coordonnées masquées]
Voir plus

Référence: 86438856
Barème des honoraires
DPE
A
B
C
D
E
F
G
GES
A
B
C
D
E
F
G

Prêt immobilier

Vous souhaitez connaître votre capacité d’emprunt et trouver le meilleur crédit immobilier ?
Réaliser une simulation gratuite

Appartement à SAINT-PRIEST
Appartement à SAINT-PRIEST
Appartement à SAINT-PRIEST
Appartement à SAINT-PRIEST
Appartement à SAINT-PRIEST
Appartement à SAINT-PRIEST
Appartement à SAINT-PRIEST
Appartement à SAINT-PRIEST
Appartement à SAINT-PRIEST
Appartement à SAINT-PRIEST
Appartement à SAINT-PRIEST
Appartement à SAINT-PRIEST
Ce site est protégé par reCAPTCHA la Politique de confidentialité et les Conditions d’utilisation de Google s’appliquent.
Obtenir un prêt immobilier au meilleur taux ?

En poursuivant votre navigation sans modifier vos paramètres, vous acceptez l'utilisation de cookies susceptibles de réaliser des statistiques de visite. Cliquez ici pour plus d'informations