Bénéficiez des services de nos partenaires locaux soigneusement sélectionnés
pour vous accompagner dans votre parcours d'achat immobilier

Appartement 2 pièce(s)

— Blaye 33390 —
81 750 €
42 m²
2 pièces
parking

Nos partenaires locaux
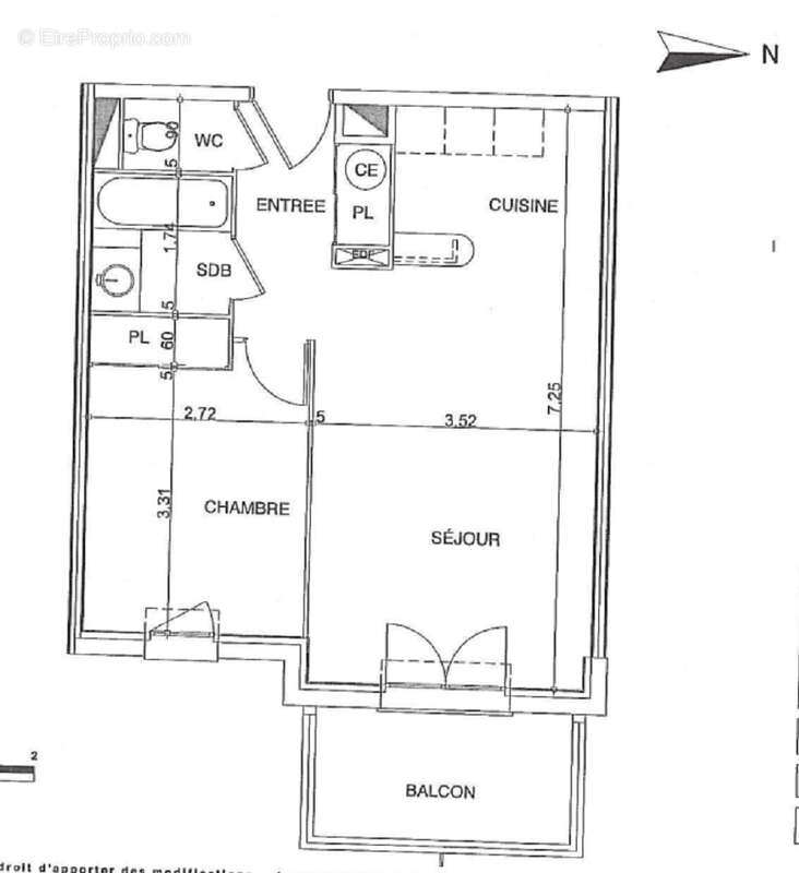
AVANTIM AQUITAINE vous propose un appartement de type T2 d'environ 42,28 m² au 1er étage, comprenant une entrée avec placard, donnant sur un séjour de 19,38 m² avec cuisine ouverte aménagée et équipée, une chambre avec placard, une salle de bains et un WC séparé. Vous profiterez également d'un balcon de 5.20 m² et une place de parking privative. Contact : [Coordonnées masquées] DPE : C - GES : A Taxe Foncière: 550 euros / an. Charges moyennes de copropriété: 740 euros/ an. PRIX : 81 750 euros FAI (honoraires agence à la charge du vendeur). Les informations sur les risques auxquels ce bien est exposé sont disponibles sur le site Géorisques : www.georisques.gouv.fr
Voir plus

Honoraires à la charge du vendeur.
DPE
A
B
C
D
E
F
G
GES
A
B
C
D
E
F
G

Prêt immobilier

Vous souhaitez connaître votre capacité d’emprunt et trouver le meilleur crédit immobilier ?
Réaliser une simulation gratuite

Appartement à BLAYE
Appartement à BLAYE
Appartement à BLAYE
Appartement à BLAYE
Appartement à BLAYE
Appartement à BLAYE
Appartement à BLAYE
Appartement à BLAYE
Ce site est protégé par reCAPTCHA la Politique de confidentialité et les Conditions d’utilisation de Google s’appliquent.
Obtenir un prêt immobilier au meilleur taux ?

En poursuivant votre navigation sans modifier vos paramètres, vous acceptez l'utilisation de cookies susceptibles de réaliser des statistiques de visite. Cliquez ici pour plus d'informations