Bénéficiez des services de nos partenaires locaux soigneusement sélectionnés
pour vous accompagner dans votre parcours d'achat immobilier

Christophe michaudelle – exlusivite - capifrance vous propose proche de meaux, à nanteuil lès meaux : secteur au calme, maison i

— Nanteuil-Les-Meaux 77100 —
369 500 €
148 m² / 850 m²
7 pièces
parkingbalcon/terrassejardin

Nos partenaires locaux
Christophe Michaudelle – EXLUSIVITE - CAPIFRANCE vous propose proche de Meaux, à Nanteuil lès Meaux :
Secteur AU CALME, maison indépendante bien entretenue - 7 pièces - 148 m² - 5 chambres (6è possible) - 1 grand bureau - 2 salles d'eau - 2 WC - grand jardin – terrasse - balcon - stationnements - un sous sol total de 99 m² (garage, atelier, buanderie, cave, rangements) - 850 m² de terrain environ (clos, plat et arboré) - abri

Je vous propose dans un secteur au calme cette charmante maison familiale, bien entretenue, très lumineuse et bien exposée. Traversante est ouest. Fonctionnelle avec ses nombreux rangements, ses stationnements, son grand sous sol total. Un très bel espace extérieur avec vue dégagée.

un VRAI COUP DE COEUR

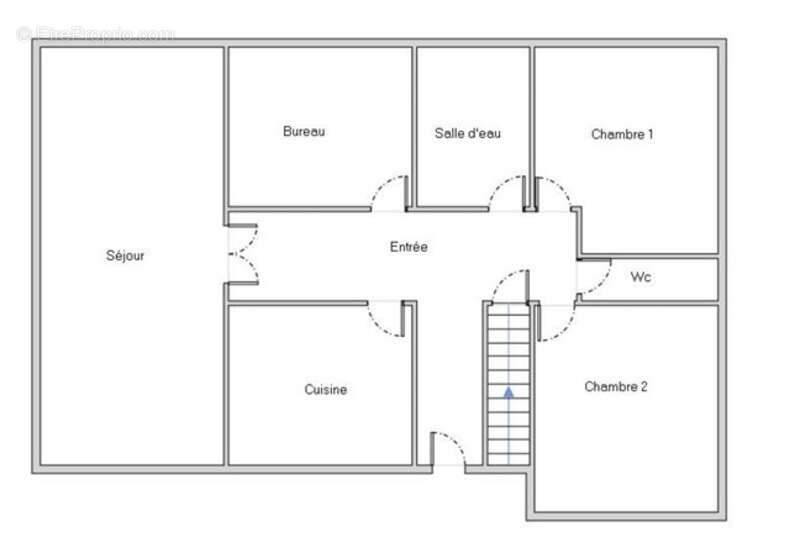
Elle se compose :

Au RDC surélevé :
Une entrée – une cuisine aménagée - un séjour avec sa cheminée (ouvert sur le balcon et la terrasse et jardin) – 2 chambres – un grand bureau (ou une 6è chambre possible avec accès terrasse et jardin) - 1 salle d'eau, WC

Au 1er étage :
3 autres grandes chambres (dont une avec 2 espaces greniers pouvant être optimisés), une salle d'eau avec WC, un espace grenier

Extérieur :
Un jardin clos, plat et arboré (850 m² environ)
Terrasse et balcon
Stationnement
Un abri

Informations complémentaires :
Maison de 1974
Au calme
Porte de garage (électrique) et portail en aluminium
Clôture en aluminium
Cheminée
Fenêtres aluminium et bois
Chaudière fioul
Ballon d'eau chaude

Vous êtes intéressés, vous avez besoin d'informations complémentaires ?
Contactez moi au [Coordonnées masquées], je serai ravi de vous faire découvrir cette belle maison.

Autres informations :
Accès commodités (transports, écoles, gare ligne P, axes routiers, commerces, espaces naturels, ...)
A 20 min en transport de la gare de Meaux 5 kms (Accès Paris Gare de l'est en 25 min)
Gare TGV et RER A à 15 kms
A 17 kms du Val d'Europe
A 31 kms de l'Aéroport de Roissy Charles de Gaulle
Les honoraires sont à la charge du vendeur.
Les informations sur les risques auxquels ce bien est exposé sont disponibles sur le site Géorisques : www. georisques. gouv. fr.

Réseau Immobilier CAPIFRANCE - Votre agent commercial (RSAC N°807 514 039 - Greffe de MEAUX) Christophe MICHAUDELLE Entrepreneur Individuel à Responsabilité Limitée [Coordonnées masquées] - Réf.931411
Voir plus

Référence: 340938992673
Honoraires à la charge du vendeur.
DPE
A
B
C
D
E
F
G
GES
A
B
C
D
E
F
G

Prêt immobilier

Vous souhaitez connaître votre capacité d’emprunt et trouver le meilleur crédit immobilier ?
Réaliser une simulation gratuite

Maison à NANTEUIL-LES-MEAUX
Maison à NANTEUIL-LES-MEAUX
Maison à NANTEUIL-LES-MEAUX
Maison à NANTEUIL-LES-MEAUX
Maison à NANTEUIL-LES-MEAUX
Maison à NANTEUIL-LES-MEAUX
Maison à NANTEUIL-LES-MEAUX
Maison à NANTEUIL-LES-MEAUX
Maison à NANTEUIL-LES-MEAUX
Maison à NANTEUIL-LES-MEAUX
Maison à NANTEUIL-LES-MEAUX
Maison à NANTEUIL-LES-MEAUX
Maison à NANTEUIL-LES-MEAUX
Maison à NANTEUIL-LES-MEAUX
Maison à NANTEUIL-LES-MEAUX
Maison à NANTEUIL-LES-MEAUX
Maison à NANTEUIL-LES-MEAUX
Maison à NANTEUIL-LES-MEAUX
Maison à NANTEUIL-LES-MEAUX
Maison à NANTEUIL-LES-MEAUX
Maison à NANTEUIL-LES-MEAUX
Maison à NANTEUIL-LES-MEAUX
Maison à NANTEUIL-LES-MEAUX
Maison à NANTEUIL-LES-MEAUX
Maison à NANTEUIL-LES-MEAUX
Maison à NANTEUIL-LES-MEAUX
Maison à NANTEUIL-LES-MEAUX
Maison à NANTEUIL-LES-MEAUX
Maison à NANTEUIL-LES-MEAUX
Maison à NANTEUIL-LES-MEAUX
Maison à NANTEUIL-LES-MEAUX
Maison à NANTEUIL-LES-MEAUX
Maison à NANTEUIL-LES-MEAUX
Maison à NANTEUIL-LES-MEAUX
Maison à NANTEUIL-LES-MEAUX
Maison à NANTEUIL-LES-MEAUX
Maison à NANTEUIL-LES-MEAUX
Maison à NANTEUIL-LES-MEAUX
Maison à NANTEUIL-LES-MEAUX
Maison à NANTEUIL-LES-MEAUX
Maison à NANTEUIL-LES-MEAUX
Maison à NANTEUIL-LES-MEAUX
Maison à NANTEUIL-LES-MEAUX
Maison à NANTEUIL-LES-MEAUX
Maison à NANTEUIL-LES-MEAUX
Maison à NANTEUIL-LES-MEAUX
Maison à NANTEUIL-LES-MEAUX
Maison à NANTEUIL-LES-MEAUX
Ce site est protégé par reCAPTCHA la Politique de confidentialité et les Conditions d’utilisation de Google s’appliquent.
Obtenir un prêt immobilier au meilleur taux ?

En poursuivant votre navigation sans modifier vos paramètres, vous acceptez l'utilisation de cookies susceptibles de réaliser des statistiques de visite. Cliquez ici pour plus d'informations