Bénéficiez des services de nos partenaires locaux soigneusement sélectionnés
pour vous accompagner dans votre parcours d'achat immobilier

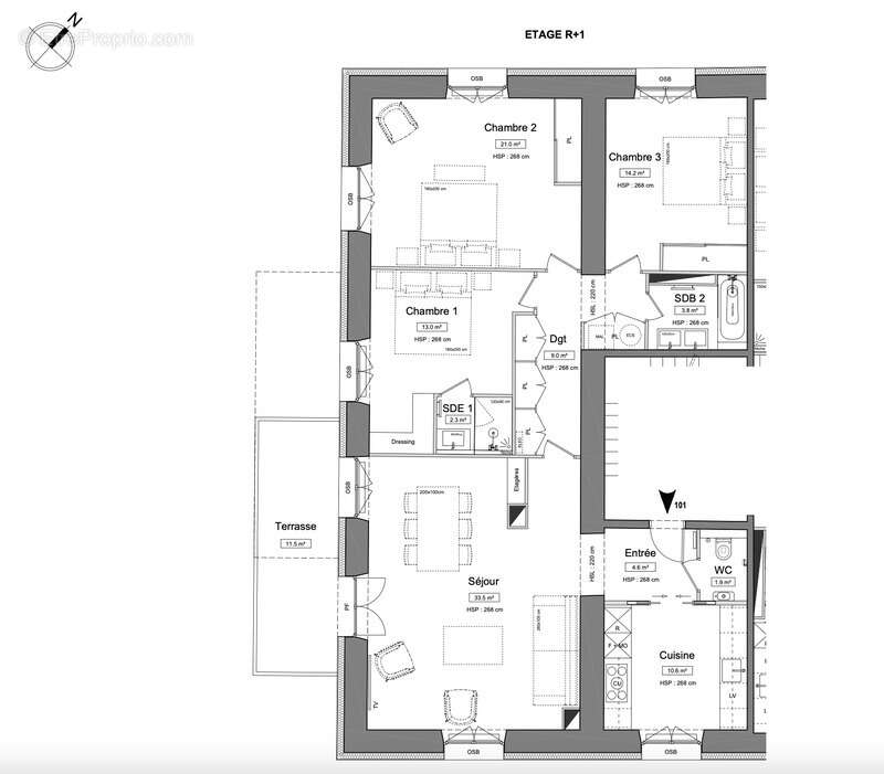
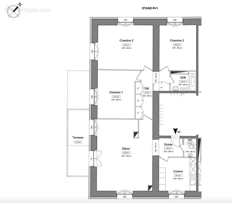
Opportunité à saisir à saint-jean de gonville. t4 de 114 m2

— Saint-Jean-De-Gonville 01630 —
308 000 €
114 m²
4 pièces
parkingbalcon/terrasse

Nos partenaires locaux
Opportunité rare:
A saisir, Appartement 1er étage T4 de 114 m2 avec de beaux volumes dans copropriété de seulement 5 logements. Bâtisse des années 60, idéalement située.

Cet appartement lumineux vendu en plateau vous apportera confort, qualité de vies. Des prestations sont déjà prévues comme l'isolation thermique par l'extérieur, le remplacement des menuiseries, l'alimentation électrique, l'alimentation individuelle en eau, la suppression de l'installation fioul etc.....

Vous aurez la possibilité de vous projeter et choisir de créer vous-même votre espace privé. Les pièces sont là. On vous laisse le choix de réaliser vos travaux privatifs en fonction de vos souhaits ou d'être accompagner par nos artisans si vous le souhaitez.

Les plus:
Petite copro de 5 logements
Exposition Sud-Ouest
Terrasse, 2 caves
Excellent emplacement à deux pas de l'arrêt de bus
A proximité de l'école et commerces
Parkings privatifs

N'hésitez pas à me contacter pour de plus amples informations, dossier complet. Nombre de lots de la copropriété : 18, Montant moyen annuel de la quote-part de charges (budget prévisionnel) : 1005€ soit 83€ par mois. Les honoraires sont à la charge du vendeur.
Les informations sur les risques auxquels ce bien est exposé sont disponibles sur le site Géorisques : www. georisques. gouv. fr.

Réseau Immobilier CAPIFRANCE - Votre agent commercial (RSAC N°418 911 632 - Greffe de BOURG EN BRESSE) Corinne RESCANIERES Entrepreneur Individuel [Coordonnées masquées] - Réf.931234
Voir plus

Référence: 340937865409
Bien en copropriété. Nombre de lots : 18. Charges de copropriété : 83 €.
Honoraires à la charge du vendeur.

Prêt immobilier

Vous souhaitez connaître votre capacité d’emprunt et trouver le meilleur crédit immobilier ?
Réaliser une simulation gratuite

Appartement à SAINT-JEAN-DE-GONVILLE
Appartement à SAINT-JEAN-DE-GONVILLE
Appartement à SAINT-JEAN-DE-GONVILLE
Appartement à SAINT-JEAN-DE-GONVILLE
Appartement à SAINT-JEAN-DE-GONVILLE
Ce site est protégé par reCAPTCHA la Politique de confidentialité et les Conditions d’utilisation de Google s’appliquent.
Obtenir un prêt immobilier au meilleur taux ?

En poursuivant votre navigation sans modifier vos paramètres, vous acceptez l'utilisation de cookies susceptibles de réaliser des statistiques de visite. Cliquez ici pour plus d'informations