Bénéficiez des services de nos partenaires locaux soigneusement sélectionnés
pour vous accompagner dans votre parcours d'achat immobilier

Vente maison 5 pièces de 97m² - 33320 eysines

— Eysines 33320 —
279 000 €
97 m² / 203 m²
5 pièces
jardin

Nos partenaires locaux
Casavo vous propose à la vente :

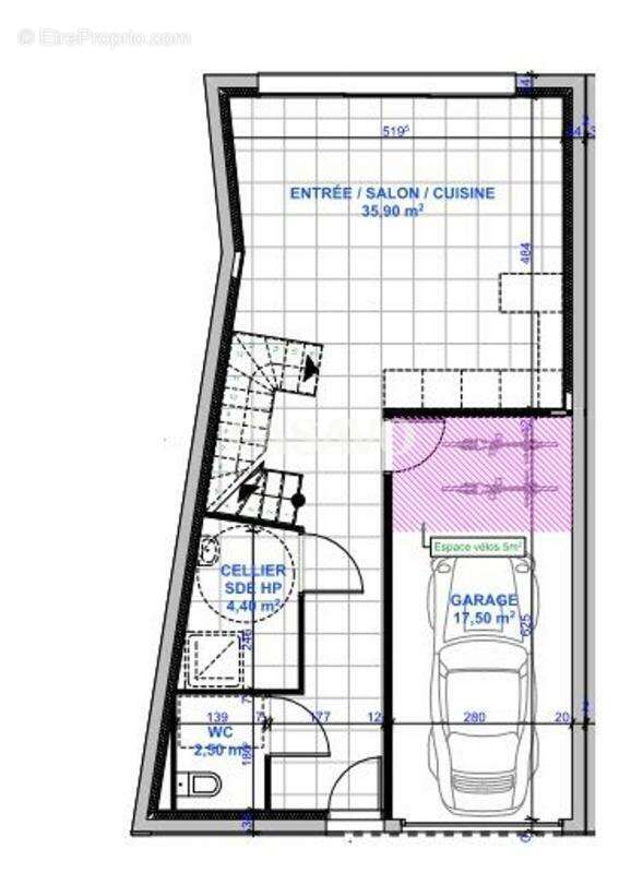
À Eysines, secteur Migron / Proche Cantinolle, rue calme et résidentielle, découvrez cette maison en cours de travaux, en l'état, avec permis purgé et validé.

Implantée sur une parcelle de 203 m², cette future maison mitoyenne de 97 m² offre un beau potentiel d'aménagement. Elle se compose au rez-de-chaussée d'une entrée, d'un séjour lumineux avec cuisine ouverte donnant sur le jardin, d'un espace salle d'eau/buanderie ainsi que de WC indépendants.

À l'étage, vous trouverez trois chambres avec placard, un bureau pouvant faire office de quatrième chambre, une salle d'eau et des WC séparés. Un garage fermé de 17 m² complète l'ensemble. Piscine déposée au PC.

Prix de vente : 279 000 € FAI

Une belle opportunité pour les professionnels du bâtiment, investisseurs, ou porteurs de projet souhaitant finaliser une maison à leur image.

Ce bien est commercialisé par Casavo.

Intéressé par ce bien ? Plus d'informations sur le site de Casavo.
Voir plus

Référence: 49223
Honoraires à la charge du vendeur.

Prêt immobilier

Vous souhaitez connaître votre capacité d’emprunt et trouver le meilleur crédit immobilier ?
Réaliser une simulation gratuite

Maison à EYSINES
Maison à EYSINES
Maison à EYSINES
Maison à EYSINES
Ce site est protégé par reCAPTCHA la Politique de confidentialité et les Conditions d’utilisation de Google s’appliquent.
Obtenir un prêt immobilier au meilleur taux ?

En poursuivant votre navigation sans modifier vos paramètres, vous acceptez l'utilisation de cookies susceptibles de réaliser des statistiques de visite. Cliquez ici pour plus d'informations