Bénéficiez des services de nos partenaires locaux soigneusement sélectionnés
pour vous accompagner dans votre parcours d'achat immobilier

Maison de ville au cachet affirmé – Pagny-sur-Moselle

— Pagny-Sur-Moselle 54530 —
159 000 €
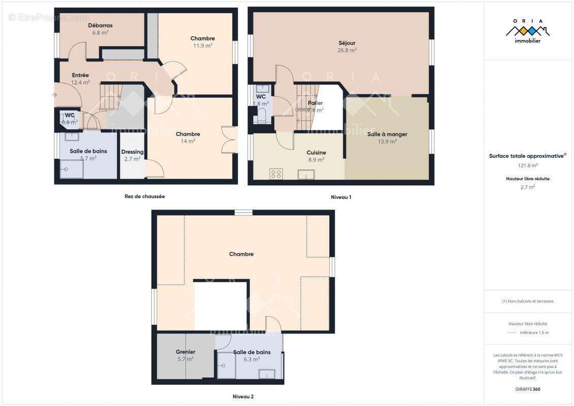
126 m² / 125 m²
5 pièces
parking

Nos partenaires locaux
Située dans le centre de Pagny-sur-Moselle, à deux minutes de la gare, cette maison de ville à l'architecture authentique développe environ 130 m² habitables.

Ce bien atypique aux volumes généreux en triplex dévoile un intérieur à la fois chaleureux et structuré, pensé pour ceux qui recherchent un lieu de vie singulier, mêlant caractère ancien et touches contemporaines.

Derrière une façade discrète se cache une maison étonnamment spacieuse et bien agencée, où chaque niveau révèle une nouvelle ambiance. Dès l'entrée, on perçoit l'âme du lieu : hauts plafonds, lumière traversante, matériaux nobles, et une atmosphère sobrement élégante.

L'espace de vie traversant au 1er étage est structuré autour d'un escalier central en bois massif qui donne à la maison toute sa verticalité et son cachet. L'alliance du parquet, des menuiseries double vitrage, et des volumes généreux confère à l'ensemble un esprit familial et accueillant. Dans le prolongement, une cuisine indépendante mêle authenticité et fonctionnalité, avec son plan de travail en granite et ses lignes intemporelles.

Sur le niveau nuit, deux grandes chambres lumineuses dialoguent avec une salle d'eau entièrement rénovée en 2017, aux lignes sobres et actuelles. Le dernier niveau, quant à lui, propose une troisième chambre sous combles, et beaux volumes sous toit, idéale pour un adolescent, un espace bureau ou une suite cosy. Une deuxième salle d'eau vient parfaire l'ensemble.

Le sous-sol intégral abrite des espaces annexes utiles : buanderie, atelier, cave, et un garage fermé pouvant accueillir moto, quad ou matériel.

Les prestations techniques sont au rendez-vous : menuiseries PVC double vitrage, toiture complète de 2000, fibre optique, deux pièces d'eau rénovées, chauffage gaz.

Sans jardin à entretenir, cette maison incarne une vraie alternative à l'appartement, pour ceux qui souhaitent vivre dans une maison pleine de charme, avec de beaux volumes, du rangement et une indépendance rare en ville.

Pagny-sur-Moselle, commune dynamique située entre Metz et Nancy, séduit par sa situation stratégique, sa gare SNCF, ses commerces de proximité, ses écoles et son cadre résidentiel à taille humaine. Une destination idéale pour les actifs en quête d'équilibre entre vie urbaine et tranquillité.

Les informations sur les risques auxquels ce bien est exposé sont disponibles sur le site Géorisques : www.georisques.gouv.fr

Annonce présentée par Jimmy MARQUET EI – RSAC NANCY 442 051 884, agent commercial de la SARL ORIA Immobilier.
Voir plus

Référence: 5715166
Honoraires à la charge du vendeur.
DPE
A
B
C
D
E
F
G
GES
A
B
C
D
E
F
G
Maison à PAGNY-SUR-MOSELLE
Maison à PAGNY-SUR-MOSELLE
Maison à PAGNY-SUR-MOSELLE
Maison à PAGNY-SUR-MOSELLE
Maison à PAGNY-SUR-MOSELLE
Maison à PAGNY-SUR-MOSELLE
Maison à PAGNY-SUR-MOSELLE
Maison à PAGNY-SUR-MOSELLE
Maison à PAGNY-SUR-MOSELLE
Maison à PAGNY-SUR-MOSELLE
Maison à PAGNY-SUR-MOSELLE
Maison à PAGNY-SUR-MOSELLE
Maison à PAGNY-SUR-MOSELLE
Maison à PAGNY-SUR-MOSELLE
Maison à PAGNY-SUR-MOSELLE
Maison à PAGNY-SUR-MOSELLE
Maison à PAGNY-SUR-MOSELLE
Géorisques

Les informations sur les risques auxquels ce bien est exposé sont disponibles sur le site Géorisques : www.georisques.gouv.fr

Ce site est protégé par hCaptcha Politique de confidentialité et Conditions d’utilisation s’appliquent.

En poursuivant votre navigation sans modifier vos paramètres, vous acceptez l'utilisation de cookies susceptibles de réaliser des statistiques de visite. Cliquez ici pour plus d'informations