Bénéficiez des services de nos partenaires locaux soigneusement sélectionnés
pour vous accompagner dans votre parcours d'achat immobilier

Maison familiale contemporaine avec jardin et annexes– courbevoie 92 – quartier pavillonnaire recherché rue hoche

— Courbevoie 92400 —
936 000 €
126 m² / 248 m²
5 pièces
parking

Nos partenaires locaux
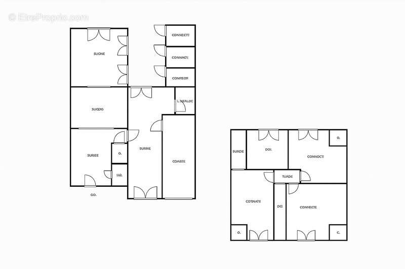
Dans un quartier pavillonnaire calme et recherché, à cinq minutes à pied de la gare de Courbevoie desservant Saint-Lazare en 10 minutes et La Défense en 3 minutes (avec accès métro et RER), à proximité immédiate des commerces et du centre-ville, cette maison familiale contemporaine est édifiée sur une parcelle d'environ 250 m².
En retrait de la rue et accessible par un portail commun desservant trois copropriétaires, elle bénéficie d'un environnement protégé, préservé de la circulation automobile.
Le rez-de-chaussée se compose d'une entrée, d'un séjour/salle à manger traversant de 37 m², ouvrant directement sur le jardin, d'une cuisine conviviale de plus de 22 m² attenante à la salle à manger, d'une buanderie et de WC invités.
Un garage attenant d'environ 15 m² complète ce niveau.
À l'étage, la maison propose trois belles chambres avec armoires intégrées, dont une chambre avec dressing (possibilité d'y installer une douche) ainsi que des rangements supplémentaires. Une salle de bains indépendante, équipée d'une baignoire et d'une douche, complète l'espace nuit.
Le jardin, intime et bien orienté, comprend un espace annexe d'environ 21 m² permettant la création d'un bureau indépendant, d'un studio ou d'une pièce supplémentaire selon vos besoins.
Écoles accessibles à pied :
• École privée et collège Sainte-Geneviève : 12 minutes
• Primaire Lamartine : 400 m
• Primaire Rouget-de-l'Isle : 420 m
• Maternelle Molière : 400 m
La mairie se situe à 570 m et les commerces à moins de 300 m.
Transports :
• Tram T2 « Les Fauvelles » à environ 11 minutes à pied
• Métro ligne 1 « Pont de Neuilly » via La Défense
• Bus 73, 175, 176, 275 et 178 à proximité (arrêts Estienne d'Orves, Rhin et Danube)
• Gare de Courbevoie à 5 minutes à pied
Cette maison réunit emplacement, calme, volumes et potentiel d'aménagement supplémentaire, au cœur d'un secteur prisé de Courbevoie.
Contact : [Coordonnées masquées]
Les honoraires sont à la charge du vendeur.
Les informations sur les risques auxquels ce bien est exposé sont disponibles sur le site Géorisques : www. georisques. gouv. fr.

Réseau Immobilier CAPIFRANCE - Votre agent commercial (RSAC N°391 328 549 - Greffe de NANTERRE) Caroline UZAN Entrepreneur Individuel à Responsabilité Limitée [Coordonnées masquées] - Réf.931256
Voir plus

Référence: 340932475003
Honoraires à la charge du vendeur.
DPE
A
B
C
D
E
F
G
GES
A
B
C
D
E
F
G

Prêt immobilier

Vous souhaitez connaître votre capacité d’emprunt et trouver le meilleur crédit immobilier ?
Réaliser une simulation gratuite

Maison à COURBEVOIE
Maison à COURBEVOIE
Maison à COURBEVOIE
Maison à COURBEVOIE
Maison à COURBEVOIE
Maison à COURBEVOIE
Maison à COURBEVOIE
Maison à COURBEVOIE
Maison à COURBEVOIE
Maison à COURBEVOIE
Maison à COURBEVOIE
Maison à COURBEVOIE
Maison à COURBEVOIE
Maison à COURBEVOIE
Maison à COURBEVOIE
Maison à COURBEVOIE
Maison à COURBEVOIE
Maison à COURBEVOIE
Maison à COURBEVOIE
Maison à COURBEVOIE
Maison à COURBEVOIE
Maison à COURBEVOIE
Maison à COURBEVOIE
Maison à COURBEVOIE
Maison à COURBEVOIE
Maison à COURBEVOIE
Maison à COURBEVOIE
Maison à COURBEVOIE
Maison à COURBEVOIE
Maison à COURBEVOIE
Ce site est protégé par reCAPTCHA la Politique de confidentialité et les Conditions d’utilisation de Google s’appliquent.
Obtenir un prêt immobilier au meilleur taux ?

En poursuivant votre navigation sans modifier vos paramètres, vous acceptez l'utilisation de cookies susceptibles de réaliser des statistiques de visite. Cliquez ici pour plus d'informations