Bénéficiez des services de nos partenaires locaux soigneusement sélectionnés
pour vous accompagner dans votre parcours d'achat immobilier

Appartement 104 m² à Croix

— Croix 59170 —
99 800 €
104 m²

Nos partenaires locaux
Idéal pour investisseur, cet immeuble à usage mixte de 104 m² offre une opportunité rare d'individualisation de lots pour optimiser la rentabilité et la valeur patrimoniale.

L'immeuble est actuellement loué pour son local commercial exploité en salon de coiffure (bail en cours) pour un loyer de 750 € HC / mois. Aux étages un appartement de 50m2 occupé en T3 par la locataire du rdc.

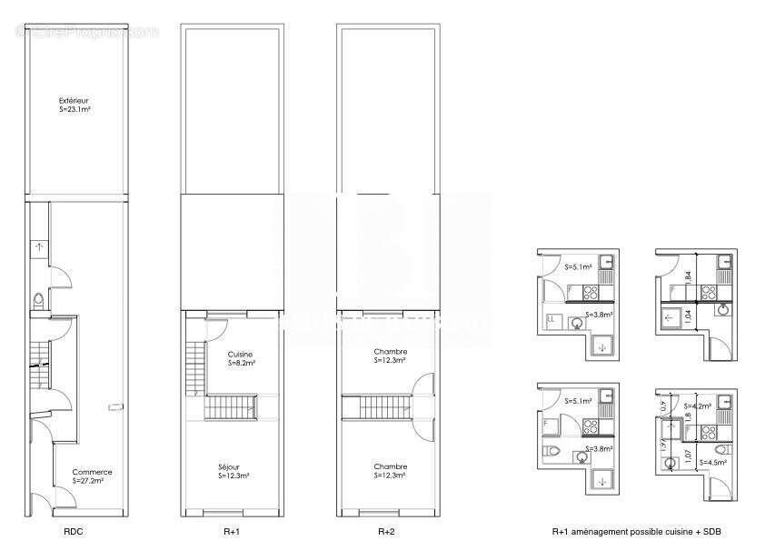
Projet de Mise en Conformité & Individualisation
Le bien est déjà répertorié en usage mixte. Le projet vise à individualiser l'accès à l'habitation pour une indépendance totale. Les plans d'aménagements possible sont en dernière photos d'annonce pour les postes suivants :
Scission des accès : Création d'un accès indépendant pour l'appartement par cloisonnement du rez-de-chaussée (Mise aux normes de sécurité et vie privée).
Optimisation de l'appartement : Aménagement T3 avec création de SDB/WC au 1er étage, isolation des combles et installation de radiateurs performants.
Valorisation de la devanture : Refonte de la façade commerciale (linéaire 3m + nouvelle porte d'entrée).
Analyse Financière (Objectifs Post-Travaux)
L'enveloppe de travaux et de frais de division (géomètre/notaire) est estimée entre 30 000 € et 35 000 €. Une fois ces aménagements réalisés, les revenus cibles sont :
Loyer Local Commercial : 800 € HC / mois
Loyer Appartement T3 : 800 € HC / mois
Revenu Annuel Global : 19 200 € HC
Rentabilité cible : env. 8,9 % (sur une base d'investissement total de 215k€).

Honoraires inclus de 10.89% TTC à la charge de l'acquéreur. Prix hors honoraires 90 000 €. Logement à consommation énergétique excessive : Classe énergie F, Classe climat B Montant moyen estimé des dépenses annuelles d'énergie pour un usage standard, établi à partir des prix de l'énergie de l'année 2021 : entre 1797.00 et 1797.00 €. Les informations sur les risques auxquels ce bien est exposé sont disponibles sur le site Géorisques : georisques.gouv.fr.

Votre conseiller IMMOBILIÈRE DES HAUTS-DE-BARBIEUX : Paul Mascarenc De Raissac
Agent commercial (Entreprise individuelle)
Voir plus

Référence: VI060-IHB
Honoraires d'agence de 10.89% à la charge de l'acquéreur
Barème des honoraires
DPE
A
B
C
D
E
F
G
GES
A
B
C
D
E
F
G
Appartement à CROIX
Appartement à CROIX
Appartement à CROIX
Appartement à CROIX
Appartement à CROIX
Appartement à CROIX
Appartement à CROIX
Appartement à CROIX
Schéma habitation - Appartement à CROIX
Schéma habitation
Géorisques

Les informations sur les risques auxquels ce bien est exposé sont disponibles sur le site Géorisques : www.georisques.gouv.fr

Ce site est protégé par hCaptcha Politique de confidentialité et Conditions d’utilisation s’appliquent.

En poursuivant votre navigation sans modifier vos paramètres, vous acceptez l'utilisation de cookies susceptibles de réaliser des statistiques de visite. Cliquez ici pour plus d'informations