Fontaine la mallet - rare: terrain libre de constructeur + permis de construire validé

— Fontaine-La-Mallet 76290 —
190 000 €
652 m²
jardin

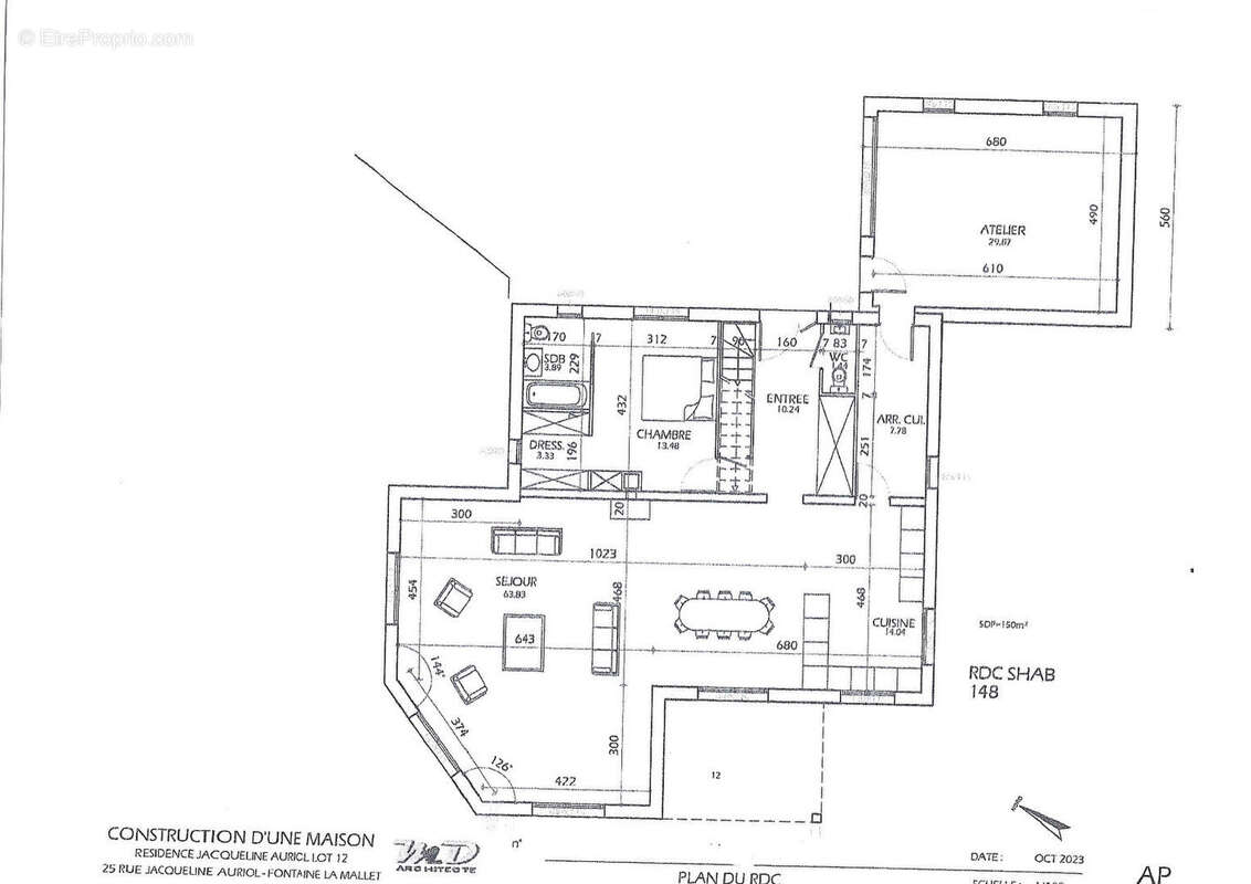
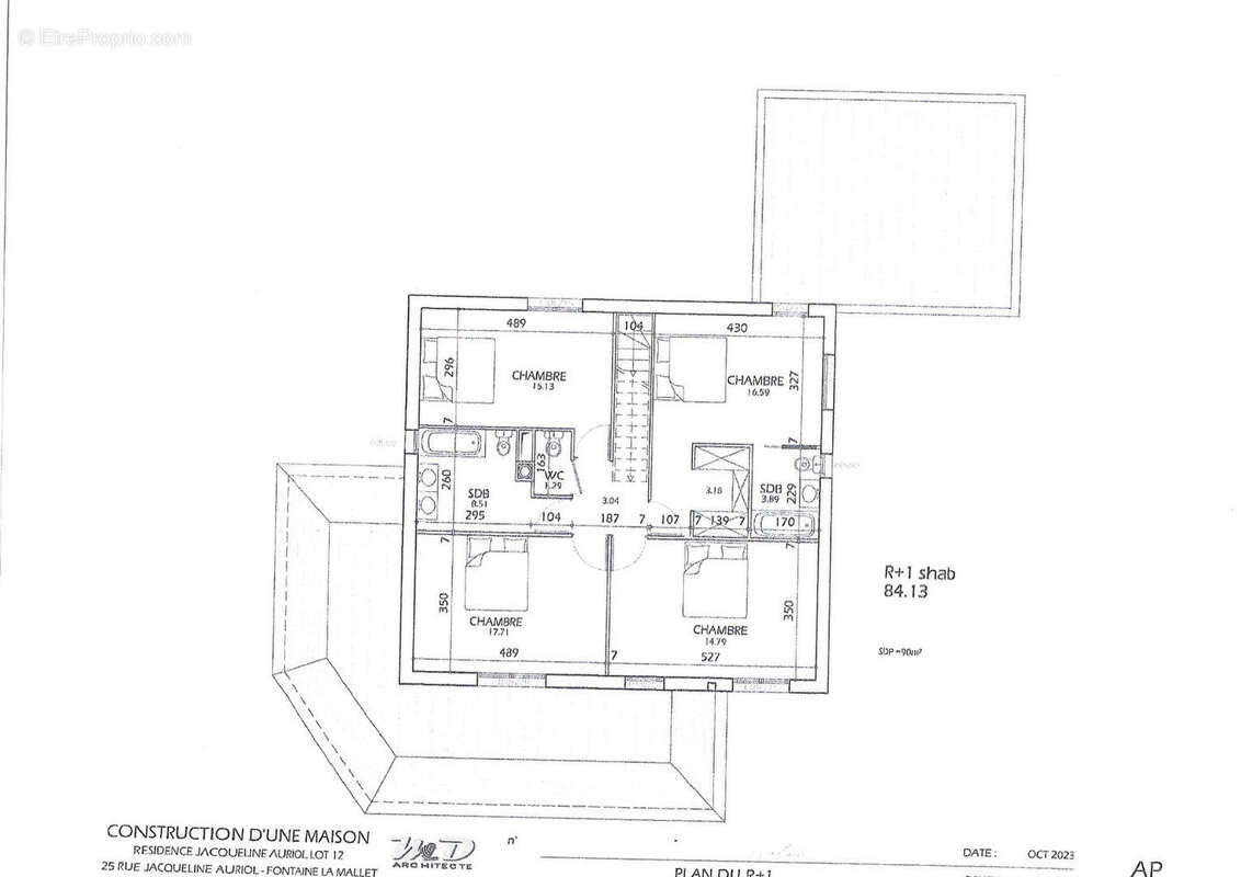
Situé au coeur d'un secteur en plein développement, ce terrain exceptionnel de 652 m² offre une opportunité rare pour concrétiser un projet de construction moderne dans l'une des communes les plus recherchées du secteur havrais. Les plans proposés par un constructeur (photos et plans) permettent d'imaginer aisément votre future habitation, tout en conservant une totale liberté de choix du constructeur. LES ATOUTS QUI RENDENT CE TERRAIN UNIQUE: - PERMIS DE CONSTRUIRE DEJA VALIDE donc plus de démarche administrative , le permis pour une construction de 240 m² est déjà validé, et les plans du projet disponibles, d'où un gain de temps considérable pour la réalisation de votre future construction. - UN ENVIRONNEMENT EN PLEINE EXPANSION: le terrain se situe dans un quartier neuf et dynamique où naissent actuellement de nombreuses constructions. Un cadre idéal pour s'installer durablement. - A PROXIMITE IMMEDIATE: Des Commerces dynamiques Des Ecoles Des Services La Mairie et coin poste La voirie est neuve et parfaitement aménagée et éclairée. UN EMPLACEMENT PENSE POUR L'AVENIR: - ce terrain constitue une opportunité idéale pour construire une maison familiale ou un projet contemporain valorisant dans une commune calme et très recherchée. PRIX DE VENTE: 190000 euros honoraires inclus: un tarif cohérent pour un terrain rare, prêt à bâtir et avec un permis de construire déjà validé. Ce terrain vous intéresse ? Contactez votre conseiller dès maintenant pour organiser une visite. Progressia Immobilier ? Pour votre bien et celui de vos projets.
Voir plus

Référence: 266
Honoraires à la charge du vendeur.
Barème des honoraires

Prêt immobilier

Vous souhaitez connaître votre capacité d’emprunt et trouver le meilleur crédit immobilier ?
Réaliser une simulation gratuite

Terrain à FONTAINE-LA-MALLET
Terrain à FONTAINE-LA-MALLET
Terrain à FONTAINE-LA-MALLET
Terrain à FONTAINE-LA-MALLET
Terrain à FONTAINE-LA-MALLET
Ce site est protégé par reCAPTCHA la Politique de confidentialité et les Conditions d’utilisation de Google s’appliquent.
Obtenir un prêt immobilier au meilleur taux ?

En poursuivant votre navigation sans modifier vos paramètres, vous acceptez l'utilisation de cookies susceptibles de réaliser des statistiques de visite. Cliquez ici pour plus d'informations