Bénéficiez des services de nos partenaires locaux soigneusement sélectionnés
pour vous accompagner dans votre parcours d'achat immobilier

Appartement – 5 pieces – corbeil-essonnes

— Corbeil-Essonnes 91100 —
169 750 €
93 m²
5 pièces

Nos partenaires locaux
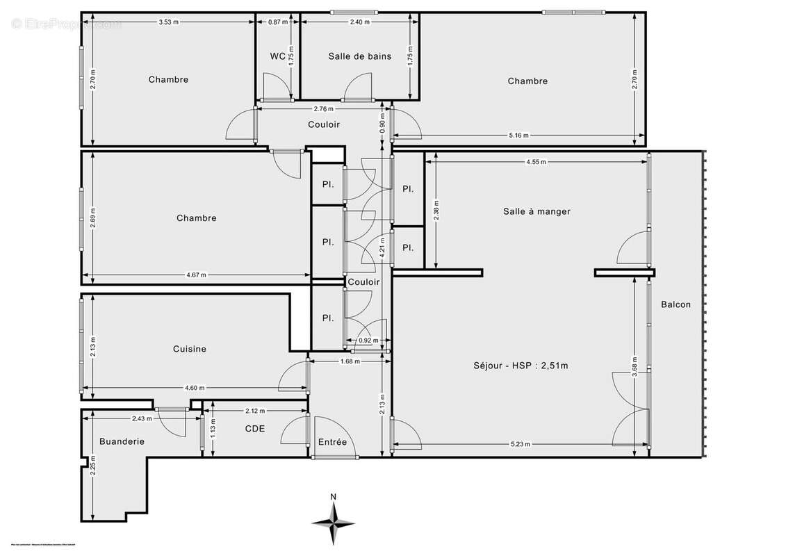
Venez découvrir ce spacieux appartement T5 de 93,65 m² Loi Carrez, situé au 3e étage sans ascenseur dans une résidence calme, sécurisée et très bien entretenue, agrémentée de jolis espaces verts .

Idéalement situé, à seulement 7 minutes du RER D (station Moulin Galant), et à proximité immédiate des écoles, commerces et lignes de bus – un cadre de vie pratique et agréable pour toute la famille !

NOUVEAUTÉ : VISITE VIRTUELLE DISPONIBLE : https://my.matterport.com/show/?m=dv3Q5HnpVpT

Le logement se compose de :

- Un double séjour lumineux sans vis à vis (possibilité d'y aménager une chambre)
- Une cuisine séparée fonctionnelle
- Trois belles chambres
- Une salle de bains
- Un WC indépendant

Un place de stationnement extérieures et une cave complètent ce bien.

BON PLAN : FRAIS DE NOTAIRE RÉDUITS à 3,5 % au lieu de 8 % !

Un bien rare dans le secteur, à visiter sans tarder !

Copropriété de 65 lots principaux
Absence de procédure en cours
Quote-part annuelle des charges courantes prévisionnelles 2022 : 2 900 € / an
Estimation de la taxe foncière 2022 : 1 650 €
DPE : E (318)
Chauffage et production d’eau chaude : Collectif Gaz

*Mentions légales :
Immobilière 3F - 159 rue Nationale - 75638 Paris Cedex - RCS : 13. 552 141 533

Honoraires à la charge du vendeur et Frais de notaire à la charge de l'acquéreur.

MODALITES DE VISITES ET DE REMISE DES OFFRES D’ACHAT Visites sur rendez-vous, renseignements et dépôt des candidatures avec dossier complet en contactant :

Pour toute information, contactez le [Coordonnées masquées].

Conformément à l'article l.561-5 du code monétaire et financier, la copie de la pièce d'identité de tous les visiteurs sera demandée avant la visite. Nous vous remercions de faciliter cette démarche à votre conseiller.

Conformément à l’article R123-237 du code de commerce :

Trans’Actif Immobilier SAS

24 rue de Paradis-75 010 PARIS

N°SIRET 514 367 978 00046 - RCS Paris

Conformément à l’article 94 du décret n°72-678 du 20 juillet 1972 « l’agence ne doit recevoir ni détenir d’autres fonds, effets ou valeurs que ceux représentatifs de sa rémunération ou de ses honoraires ».

Prix et conditions soumis à ressources selon l'article L443-11 et suivants du CCH.

Délais de remise des offres : Au plus tard 1 mois à compter de la date de parution de la dernière
publicité légale.

Modalités de remise des offres : Par mail, remise en mains propres ou par tout autre moyen.

Les informations sur les risques auxquels ce bien est exposé sont disponibles sur le site Géorisques : www.georisques.gouv.fr
Voir plus

Référence: R309L-0024 - MM
DPE
A
B
C
D
E
F
G
GES
A
B
C
D
E
F
G
Appartement à CORBEIL-ESSONNES
Appartement à CORBEIL-ESSONNES
Appartement à CORBEIL-ESSONNES
Appartement à CORBEIL-ESSONNES
Appartement à CORBEIL-ESSONNES
Appartement à CORBEIL-ESSONNES
Appartement à CORBEIL-ESSONNES
Appartement à CORBEIL-ESSONNES
Appartement à CORBEIL-ESSONNES
Appartement à CORBEIL-ESSONNES
Appartement à CORBEIL-ESSONNES
Appartement à CORBEIL-ESSONNES
Appartement à CORBEIL-ESSONNES
Appartement à CORBEIL-ESSONNES
Appartement à CORBEIL-ESSONNES
Géorisques

Les informations sur les risques auxquels ce bien est exposé sont disponibles sur le site Géorisques : www.georisques.gouv.fr

Ce site est protégé par hCaptcha Politique de confidentialité et Conditions d’utilisation s’appliquent.

En poursuivant votre navigation sans modifier vos paramètres, vous acceptez l'utilisation de cookies susceptibles de réaliser des statistiques de visite. Cliquez ici pour plus d'informations