Bénéficiez des services de nos partenaires locaux soigneusement sélectionnés
pour vous accompagner dans votre parcours d'achat immobilier

Saint andré de la marche - plateau brut à réhabiliter - terrasse + 2 parkings

— Saint-Macaire-En-Mauges 49450 —
125 000 €
93 m²
5 pièces

Nos partenaires locaux
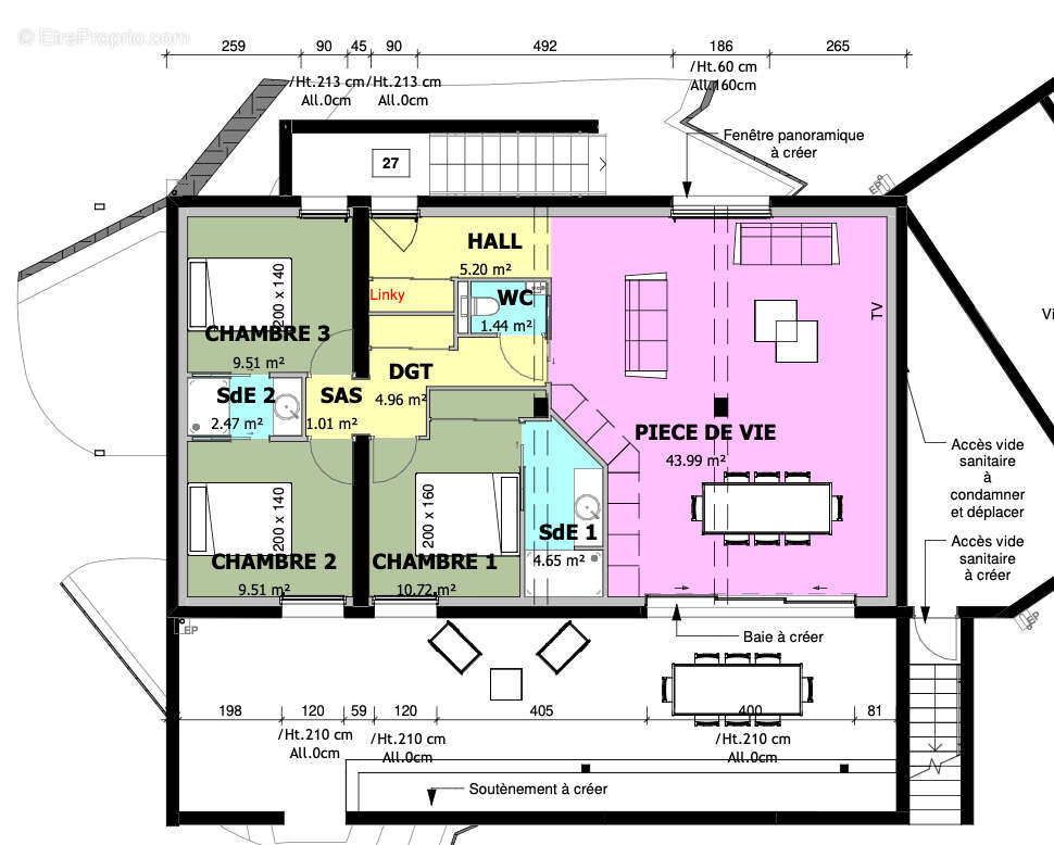
Dans une petite copropriété calme, plateau brut à aménager entièrement selon vos envies, avec en plus un jardin de 48 m² exposé plein Sud. Un bien rare, idéal pour créer un espace de vie moderne et lumineux. Dès l'entrée, on imagine facilement un grand séjour de près de 48 m² ouvert sur l'extérieur grâce à une large baie vitrée de 4 mètres, donnant directement sur le jardin, où il est tout à fait possible d'installer une belle terrasse. Le projet propose par exemple une suite parentale avec salle d'eau privative, ainsi que deux autres chambres avec une salle d'eau commune. Bien sûr, comme il s'agit d'un plateau brut, vous pouvez personnaliser entièrement votre future cuisine, vos sols, vos équipements et l'ambiance générale de votre logement. L'appartement bénéficie également de deux places de stationnement extérieur, avec la possibilité d'installer une borne de recharge électrique, un vrai plus aujourd'hui. Ce bien offre à la fois liberté, potentiel et luminosité, dans un environnement agréable. Idéal pour un projet familial, un premier achat ou un investissement. Si vous souhaitez plus d'informations. N'hésitez pas à me contacter ! (5.93 % honoraires TTC à la charge de l'acquéreur.) François ARNOU (EI) Agent Commercial - Numéro RSAC : - .
Voir plus

Référence: 11668
Honoraires d'agence de 5.93% à la charge de l'acquéreur
Barème des honoraires

Prêt immobilier

Vous souhaitez connaître votre capacité d’emprunt et trouver le meilleur crédit immobilier ?
Réaliser une simulation gratuite

Appartement à SAINT-MACAIRE-EN-MAUGES
Appartement à SAINT-MACAIRE-EN-MAUGES
Appartement à SAINT-MACAIRE-EN-MAUGES
Appartement à SAINT-MACAIRE-EN-MAUGES
Ce site est protégé par reCAPTCHA la Politique de confidentialité et les Conditions d’utilisation de Google s’appliquent.
Obtenir un prêt immobilier au meilleur taux ?

En poursuivant votre navigation sans modifier vos paramètres, vous acceptez l'utilisation de cookies susceptibles de réaliser des statistiques de visite. Cliquez ici pour plus d'informations