Bénéficiez des services de nos partenaires locaux soigneusement sélectionnés
pour vous accompagner dans votre parcours d'achat immobilier

Toulouse - croix-daurade - t1 avec balcon, parking et ascenseur

— Toulouse 31200 —
116 000 €
30 m²
1 pièce
parkingbalcon/terrasseascenseur

Nos partenaires locaux
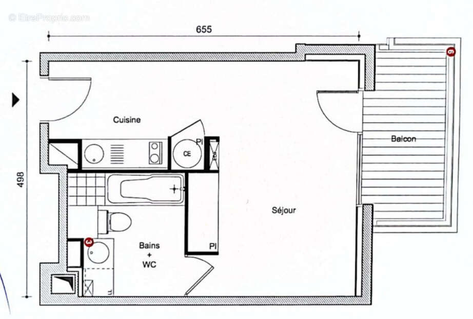
Sur le secteur de Croix-Daurade, notre agence Paladia a le plaisir de vous présenter à la vente ce studio de 29m² avec balcon, parking et ascenseur dans une résidence de 2017. Au 3ème étage sur 5 d'une copropriété bien entretenue, cet appartement calme et lumineux se compose d'un séjour/cuisine de 23,89m² exposé Sud Est avec accès à un balcon de 5,27m² ainsi que d'une salle de bains avec wc. Une place de parking en sous-sol est vendue avec l'appartement. Situé à 250 m de la ligne de bus L9, 1,6km de la future station de métro ligne C Bonnefoy, 500 mètres des commerces, et 15min à vélo du centre ville, cet appartement est idéal pour un premier achat ou un investissement de qualité. Copropriété de 262 lots - dont 131 lots habitation. (Pas de procédure en cours). Charges annuelles : 960 euros. Valentin MATHIEU (EI) Agent Commercial - Numéro RSAC : 932524135 - TOULOUSE.
Voir plus

Référence: 603
Bien en copropriété. Nombre de lots : 262. Charges de copropriété : 960 €.
Honoraires à la charge du vendeur.
Barème des honoraires
DPE
A
B
C
D
E
F
G
GES
A
B
C
D
E
F
G

Prêt immobilier

Vous souhaitez connaître votre capacité d’emprunt et trouver le meilleur crédit immobilier ?
Réaliser une simulation gratuite

Appartement à TOULOUSE
Appartement à TOULOUSE
Appartement à TOULOUSE
Appartement à TOULOUSE
Appartement à TOULOUSE
Appartement à TOULOUSE
Appartement à TOULOUSE
Appartement à TOULOUSE
Appartement à TOULOUSE
Appartement à TOULOUSE
Appartement à TOULOUSE
Ce site est protégé par reCAPTCHA la Politique de confidentialité et les Conditions d’utilisation de Google s’appliquent.
Obtenir un prêt immobilier au meilleur taux ?

En poursuivant votre navigation sans modifier vos paramètres, vous acceptez l'utilisation de cookies susceptibles de réaliser des statistiques de visite. Cliquez ici pour plus d'informations