Bénéficiez des services de nos partenaires locaux soigneusement sélectionnés
pour vous accompagner dans votre parcours d'achat immobilier

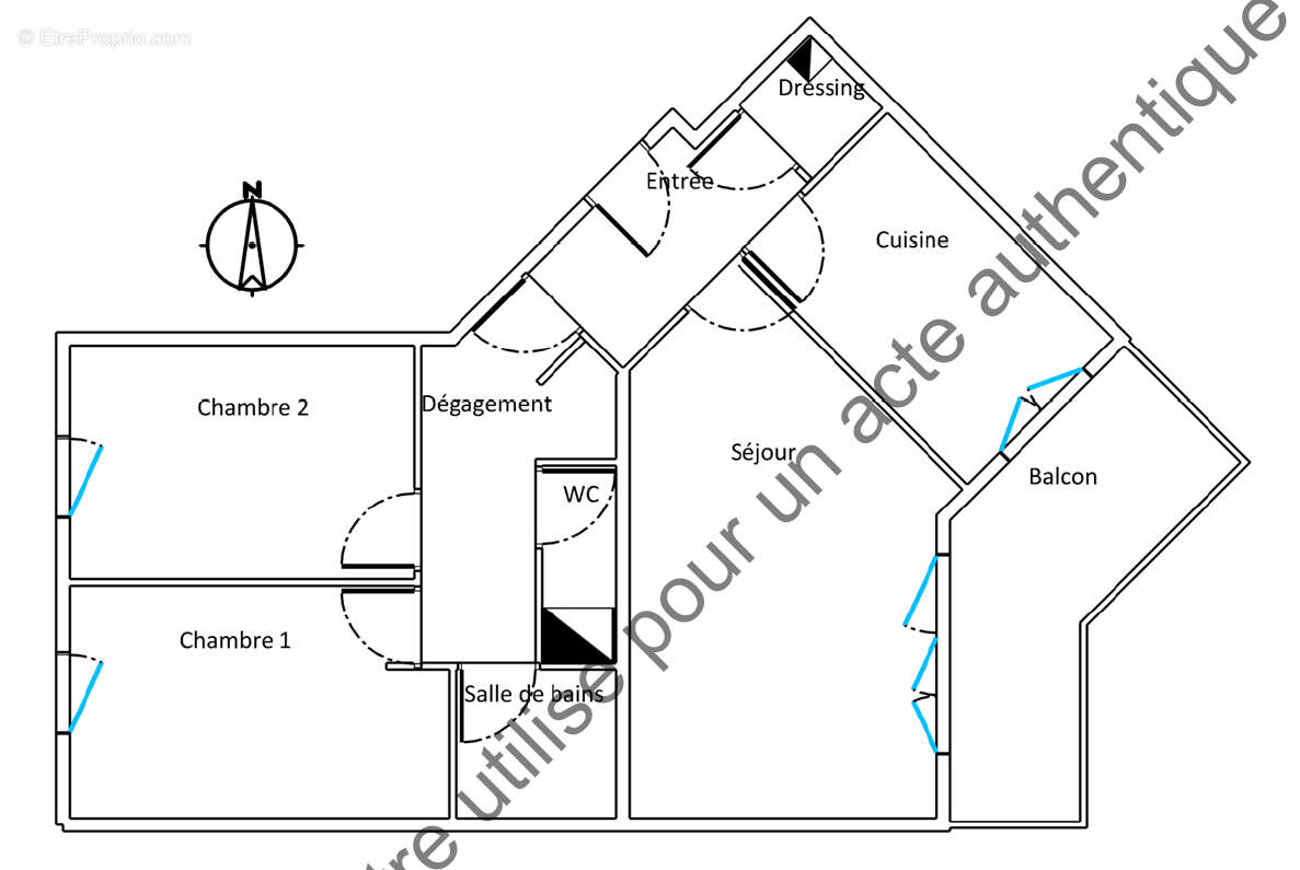
T3 de 68.01 m2 - lyon 3ème - secteur villette

— Lyon-3e 69003 —
320 000 €
68 m²
3 pièces
parkingbalcon/terrassejardinascenseur

Nos partenaires locaux
Votre agence GINET Immobilier vous propose à la vente ce bel appartement T3 de 68,01 m², situé au 5ème étage avec ascenseur d'une résidence récente et sécurisée, dans le secteur villette.

L'appartement se compose d'un séjour lumineux de 17.27 m2, ouvrant sur le balcon et sa vue dégagée sur la cour de l'immeuble. D'une cuisine indépendante disposant elle aussi d'un accès au balcon, de deux chambres, d'une salle de bains et d'un WC indépendant.

Très calme et baigné de lumière, ce bien offre de belles possibilités d'aménagement.
Son emplacement idéal, à proximité de la gare Part-Dieu, des commerces, écoles et transports, en fait une opportunité rare sur le secteur.

Un garage est proposé en sus à 15 000 euros.

Pour le visiter, contactez Antoine Madelrieux O698301684

Copropriété de 51 lots - dont 25 lots habitation. (Pas de procédure en cours).

Charges annuelles : 2672.72 euros.
Léna MURAT (EI) Agent Commercial - Numéro RSAC : - .
Les informations sur les risques auxquels ce bien est exposé sont disponibles sur le site Géorisques : www. georisques. gouv. fr
Voir plus

Référence: 122554RG
Bien en copropriété. Nombre de lots : 51. Charges de copropriété : 222 €.
Honoraires à la charge du vendeur.
DPE
A
B
C
D
E
F
G
GES
A
B
C
D
E
F
G

Prêt immobilier

Vous souhaitez connaître votre capacité d’emprunt et trouver le meilleur crédit immobilier ?
Réaliser une simulation gratuite

Appartement à LYON-3E
Appartement à LYON-3E
Appartement à LYON-3E
Appartement à LYON-3E
Appartement à LYON-3E
Appartement à LYON-3E
Appartement à LYON-3E
Appartement à LYON-3E
Appartement à LYON-3E
Appartement à LYON-3E
Appartement à LYON-3E
Appartement à LYON-3E
Appartement à LYON-3E
Ce site est protégé par reCAPTCHA la Politique de confidentialité et les Conditions d’utilisation de Google s’appliquent.
Obtenir un prêt immobilier au meilleur taux ?

En poursuivant votre navigation sans modifier vos paramètres, vous acceptez l'utilisation de cookies susceptibles de réaliser des statistiques de visite. Cliquez ici pour plus d'informations