Pas de parking à Berat pour le moment. Découvrez dès maintenant les parkings dans le département Haute-Garonne.
Bénéficiez des services de nos partenaires locaux soigneusement sélectionnés
pour vous accompagner dans votre parcours d'achat immobilier

Paris 18ème - porte de la chapelle

— Paris-18e 75018 —
295 000 €
65 m²
3 pièces
ascenseur

Nos partenaires locaux
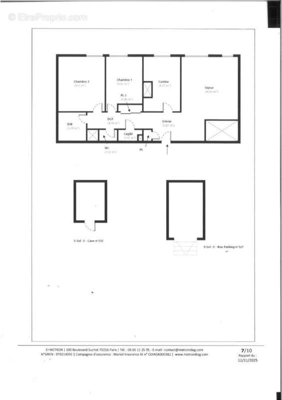
Paris 18ème - Porte de la Chapelle - 3 pièces de 64,50 m2 + cave et emplacement de parking Belle Opportunité (4573 euros du m2) L'IMMOBILIER PAR CHARLY vous propose dans un immeuble récent, un appartement de 3 pièces de 64,50m2 loi carrez . Il se compose d'une entrée avec placard, d'un séjour, d'une cuisine indépendante (possibilité d'ouvrir la cuisine en sur le séjour), de deux chambres, d'une salle de bain et d'un wc séparé. Travaux a prévoir, beau potentiel, vue dégagée sans vis a vis. Une cave et un emplacement de parking complètent ce bien (5.36 % honoraires TTC à la charge de l'acquéreur.) Copropriété de 955 lots - dont 298 lots habitation. Charges annuelles : 6000 euros. Teddy MASCRET (EI) Agent Commercial - Numéro RSAC : - .
Voir plus

Référence: IPC390
Bien en copropriété. Nombre de lots : 955. Charges de copropriété : 6000 €. Procédure en cours : Procédure en cours.
Honoraires d'agence de 5.36% à la charge de l'acquéreur
Barème des honoraires
DPE
A
B
C
D
E
F
G
GES
A
B
C
D
E
F
G

Prêt immobilier

Vous souhaitez connaître votre capacité d’emprunt et trouver le meilleur crédit immobilier ?
Réaliser une simulation gratuite

Appartement à PARIS-18E
Appartement à PARIS-18E
Appartement à PARIS-18E
Appartement à PARIS-18E
Appartement à PARIS-18E
Appartement à PARIS-18E
Appartement à PARIS-18E
Appartement à PARIS-18E
Appartement à PARIS-18E
Appartement à PARIS-18E
Ce site est protégé par reCAPTCHA la Politique de confidentialité et les Conditions d’utilisation de Google s’appliquent.
Obtenir un prêt immobilier au meilleur taux ?

En poursuivant votre navigation sans modifier vos paramètres, vous acceptez l'utilisation de cookies susceptibles de réaliser des statistiques de visite. Cliquez ici pour plus d'informations