Bénéficiez des services de nos partenaires locaux soigneusement sélectionnés
pour vous accompagner dans votre parcours d'achat immobilier

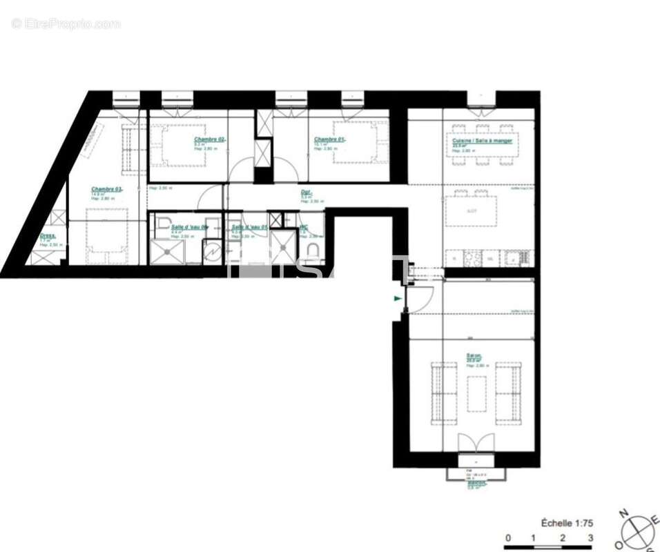
Appartement 100m² à arcachon

— Arcachon 33120 —
958 000 €
100 m²
4 pièces

Nos partenaires locaux
Situé au coeur de la prestigieuse ville d'Arcachon, cet appartement de standing offre un cadre de vie exceptionnel alliant élégance et sérénité. Il bénéficie d'une proximité immédiate avec les plages et les commodités du centre-ville. Arcachon, réputée pour son atmosphère balnéaire et son art de vivre unique, séduit par son patrimoine préservé et ses paysages naturels enchanteurs.

Ce superbe appartement de grand standing baigné de lumière à la faveur de multiples ouvertures vitrées avec un salon de 25 m², une cuisine / salle à manger de 23.5 m², et doté de 2 chambres une suite parentale avec son dressing et sa salle d'eau privative, chaque pièce est pensée pour offrir confort et fonctionnalité.
Construit en 2025, il allie le cachet de l'ancien à des aménagements modernes tels que de belles hauteurs sous plafonds, et de larges ouvertures.
Ce bien rare saura séduire les amateurs de biens alliant élégance, prestige, et confort contemporain.

Le bien comprend 1 lot, et il est situé dans une copropriété de 31 lots (les charges courantes annuelles moyennes de copropriété sont de 1 ¤ et le syndicat des copropriétaires ne fait pas l'objet d'une procédure citée à l'article L. 721-1 du code de la construction et de l'habitation).

Les informations sur les risques auxquels ce bien est exposé sont disponibles sur le site Géorisques : www.georisques.gouv.fr
Prix de vente : 958 000 ¤
Honoraires charge vendeur

Contactez votre conseiller SAFTI : Gaëlle SIAD, Tél. : [Coordonnées masquées], E-mail : [Coordonnées masquées] - EI - Agent commercial immatriculé au RSAC de BORDEAUX sous le numéro 803378173.
Informations LOI ALUR :
Soumis au régime de copropriété.
Nombre de lots : 31.
Quote part annuelle(moyenne) : 1 euros.
Honoraires charge vendeur. (gedeon_26118_32234582)
Voir plus

Référence: 656053
Bien en copropriété. Nombre de lots : 31. Charges de copropriété : 1 €.
Honoraires à la charge du vendeur.
Barème des honoraires

Prêt immobilier

Vous souhaitez connaître votre capacité d’emprunt et trouver le meilleur crédit immobilier ?
Réaliser une simulation gratuite

Photo 1 - Appartement à ARCACHON
Photo 1
Photo 2 - Appartement à ARCACHON
Photo 2
Ce site est protégé par reCAPTCHA la Politique de confidentialité et les Conditions d’utilisation de Google s’appliquent.
Obtenir un prêt immobilier au meilleur taux ?

En poursuivant votre navigation sans modifier vos paramètres, vous acceptez l'utilisation de cookies susceptibles de réaliser des statistiques de visite. Cliquez ici pour plus d'informations