Bénéficiez des services de nos partenaires locaux soigneusement sélectionnés
pour vous accompagner dans votre parcours d'achat immobilier

Nice riquier - 4p 90,07 m² avec terrasse

— Nice 06300 —
335 000 €
90 m²
4 pièces
parkingbalcon/terrasseascenseur

Nos partenaires locaux
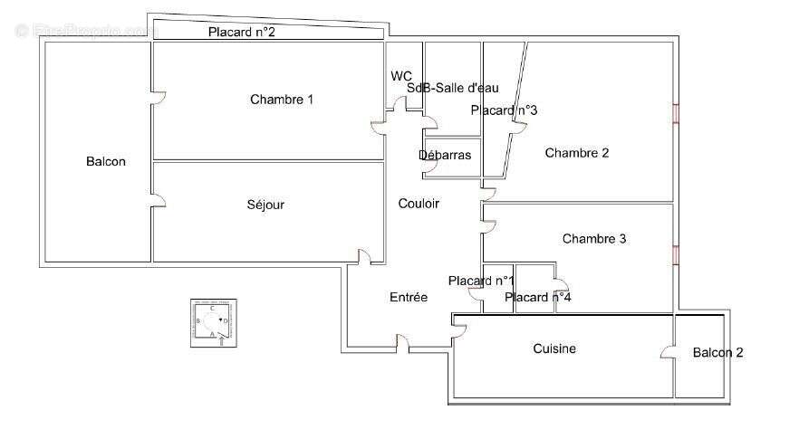
Dans une copropriété sécurisée, 4P traversant de 90,07 m² au 3ème étage avec ascenseur comprenant une entrée avec placard, un séjour donnant sur une terrasse de 10 m², une cuisine indépendante donnant sur un balcon côté cour au calme, 3 chambres avec grands placards dont une donnant sur la terrasse, un dressing, une salle de bains et un WC indépendant. Climatisation réversible, volets électriques, double vitrage, nombreux rangements. Exposition Est/Ouest. Possibilité d'un garage avec cave attenante en supplément. Proche de toutes les commodités (tramway, gare de Riquier, fac St Jean d'Angely, cinéma Megarama, etc...). EXCLUSIVITE ORPI !
Référence agence : 1505
Voir plus

Référence: EVND-HCL-YP4
Bien en copropriété. Nombre de lots : 111. Charges de copropriété : 330 €.
Honoraires à la charge du vendeur.
DPE
A
B
C
D
E
F
G
GES
A
B
C
D
E
F
G
Appartement à NICE
Appartement à NICE
Appartement à NICE
Appartement à NICE
Appartement à NICE
Appartement à NICE
Appartement à NICE
Appartement à NICE
Appartement à NICE
Appartement à NICE
Appartement à NICE
Appartement à NICE
Appartement à NICE
Appartement à NICE
Appartement à NICE
Appartement à NICE
Géorisques

Les informations sur les risques auxquels ce bien est exposé sont disponibles sur le site Géorisques : www.georisques.gouv.fr

Ce site est protégé par hCaptcha Politique de confidentialité et Conditions d’utilisation s’appliquent.

En poursuivant votre navigation sans modifier vos paramètres, vous acceptez l'utilisation de cookies susceptibles de réaliser des statistiques de visite. Cliquez ici pour plus d'informations