Confortable villa t5 de plain-pied en trois faces

— Port-La-Nouvelle 11210 —
310 000 €
109 m² / 427 m²
5 pièces
parkingbalcon/terrassejardin

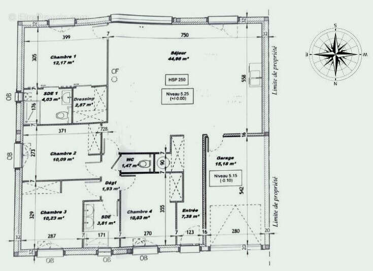
Stpo affaire !! Sous garantie décennale jusqu'en juin 2027, confortable villa T5 de plain-pied de 109m2 en trois faces sur 427m2 de terrain avec garage. Elle comprend : Un hall d'entrée desservant une spacieuse et lumineuse pièce de vie (séjour cuisine salon de 45m2 plein Sud) ouvrant sur un jardin de 113m2 avec sa terrasse de 41m2, 4 chambres avec rangements dont une suite parentale de 19m2, 2 salle d'eau, deux wc et un garage de 15m2. Prestations : 3 faces, vide sanitaire (1.40m), murs en briques creuses donnant sur l'extérieur et combles isolés, menuiseries métalliques et pvc double vitrage, volets roulants électriques alu, climatisation réversible gainable, chauffe-eau thermodynamique à accumulation 300 L, Vmc Hygro B, pergola bioclimatique (fermeture des lames orientables en cas de pluie), cabanon de jardin, gazon synthétique, terrasse en béton imprimé, périphérie de la maison en béton désactivé, 2 points d'eau extérieurs, clôtures en dur à 1.80m de haut à crépir, fibre installée. DPE : A / GES : A. 310 000 € HAI !!!!! Affaire à saisir vite !! Plus d'infos sur: lelogisnouvellois.fr
Voir plus

Référence: 719
Bien en copropriété.
Honoraires d'agence de 3.33% à la charge de l'acquéreur
Barème des honoraires
DPE
A
B
C
D
E
F
G
GES
A
B
C
D
E
F
G

Prêt immobilier

Vous souhaitez connaître votre capacité d’emprunt et trouver le meilleur crédit immobilier ?
Réaliser une simulation gratuite

Maison à PORT-LA-NOUVELLE
Maison à PORT-LA-NOUVELLE
Maison à PORT-LA-NOUVELLE
Maison à PORT-LA-NOUVELLE
Maison à PORT-LA-NOUVELLE
Maison à PORT-LA-NOUVELLE
Maison à PORT-LA-NOUVELLE
Maison à PORT-LA-NOUVELLE
Maison à PORT-LA-NOUVELLE
Maison à PORT-LA-NOUVELLE
Maison à PORT-LA-NOUVELLE
Maison à PORT-LA-NOUVELLE
Maison à PORT-LA-NOUVELLE
Maison à PORT-LA-NOUVELLE
Maison à PORT-LA-NOUVELLE
Maison à PORT-LA-NOUVELLE
Maison à PORT-LA-NOUVELLE
Maison à PORT-LA-NOUVELLE
Maison à PORT-LA-NOUVELLE
Maison à PORT-LA-NOUVELLE
Maison à PORT-LA-NOUVELLE
Maison à PORT-LA-NOUVELLE
Maison à PORT-LA-NOUVELLE
Maison à PORT-LA-NOUVELLE
Maison à PORT-LA-NOUVELLE
Ce site est protégé par reCAPTCHA la Politique de confidentialité et les Conditions d’utilisation de Google s’appliquent.
Obtenir un prêt immobilier au meilleur taux ?

En poursuivant votre navigation sans modifier vos paramètres, vous acceptez l'utilisation de cookies susceptibles de réaliser des statistiques de visite. Cliquez ici pour plus d'informations