Bénéficiez des services de nos partenaires locaux soigneusement sélectionnés
pour vous accompagner dans votre parcours d'achat immobilier

Cannes ouest - dernier étage - 3 pièces pleine vue mer!

— Cannes 06400 —
499 900 €
64 m²
3 pièces
parkingbalcon/terrasseascenseur

Nos partenaires locaux
Co-Exclusivité - Résidence La Licorne -

Située en plein coeur de Cannes-La-Bocca, sur un secteur plat et à deux pas de toutes les commodités, transports et plages de sable fin!

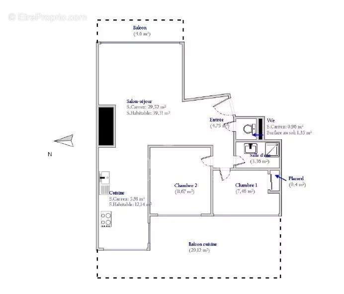
Venez découvrir ce bel appartement 3 pièces de 80m² habitable (64,03m² Carrez) , au dernier étage et sa vue imprenable sur la mer et les Iles de Lérins!

L'appartement se compose d'une entrée, un spacieux salon/séjour ouvert sur le balcon vue mer, une cuisine équipée ouverte sur une seconde terrasse, deux chambres climatisées, une salle d'eau, un WC séparé.

Au sous-sol un stationnement privatif avec cave complète cette offre!

Charges: 265€/mois comprenant l'eau chaude, l'eau froide, le chauffage, l'entretien des espaces verts, le gardien, la vidéo-surveillance!

À visiter sans tarder!
Voir plus

Référence: 86377958
Barème des honoraires
DPE
A
B
C
D
E
F
G
GES
A
B
C
D
E
F
G

Prêt immobilier

Vous souhaitez connaître votre capacité d’emprunt et trouver le meilleur crédit immobilier ?
Réaliser une simulation gratuite

Appartement à CANNES
Appartement à CANNES
Appartement à CANNES
Appartement à CANNES
Appartement à CANNES
Appartement à CANNES
Appartement à CANNES
Appartement à CANNES
Appartement à CANNES
Appartement à CANNES
Appartement à CANNES
Appartement à CANNES
Appartement à CANNES
Ce site est protégé par reCAPTCHA la Politique de confidentialité et les Conditions d’utilisation de Google s’appliquent.
Obtenir un prêt immobilier au meilleur taux ?

En poursuivant votre navigation sans modifier vos paramètres, vous acceptez l'utilisation de cookies susceptibles de réaliser des statistiques de visite. Cliquez ici pour plus d'informations