Bénéficiez des services de nos partenaires locaux soigneusement sélectionnés
pour vous accompagner dans votre parcours d'achat immobilier

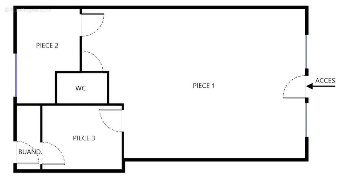
Local commercial Paris 3 pièce(s) 39,72 m2

— Paris-13e 75013 —
267 000 €
39 m²
3 pièces

Nos partenaires locaux
PARIS 13e - UNIQUEMENT CHEZ TOIT IMMOBILIER MURS COMMERCIAUX OCCUPÉS Idéal investisseur ! Nous vous proposons à la vente les murs d'un local commercial loué avec un locataire en place et à jour de ses loyers, assurant ainsi une rentabilité immédiate et sécurisée. Situé dans un quartier commerçant dynamique du 13e arrondissement de Paris,( proche 5ème) ce local bénéficie d'une excellente visibilité grâce à sa vitrine en rez-de-chaussée sur rue. Il développe une surface d'environ 40 m² complétée par une cave de 10 m² directement accessible depuis le local, Activité en place pérenne, environnement commerçant, proximité des transports, du quartier Arago/Gobelins : autant d'atouts qui font de ce bien une opportunité rare pour un investissement patrimonial de qualité. Informations complémentaires sur demande. (6.80 % honoraires TTC à la charge de l'acquéreur.)
Voir plus

Référence: 109
Honoraires d'agence de 6.8% à la charge de l'acquéreur
Barème des honoraires
Commerce à PARIS-13E
Commerce à PARIS-13E
Commerce à PARIS-13E
Commerce à PARIS-13E
Commerce à PARIS-13E
Commerce à PARIS-13E
Commerce à PARIS-13E
Commerce à PARIS-13E
Géorisques

Les informations sur les risques auxquels ce bien est exposé sont disponibles sur le site Géorisques : www.georisques.gouv.fr

Ce site est protégé par hCaptcha Politique de confidentialité et Conditions d’utilisation s’appliquent.

En poursuivant votre navigation sans modifier vos paramètres, vous acceptez l'utilisation de cookies susceptibles de réaliser des statistiques de visite. Cliquez ici pour plus d'informations