Bénéficiez des services de nos partenaires locaux soigneusement sélectionnés
pour vous accompagner dans votre parcours d'achat immobilier

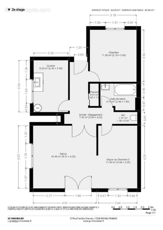
200m du marché central - appartement de 63 m² avec balcon

— Royan 17200 —
174 000 €
63 m²
3 pièces

Nos partenaires locaux
A deux pas du marché central de Royan et de toutes les commodités, au sein d'un immeuble au charme typique des années 50, l'agence GC IMMOBILIER vous propose cet appartement de 63 m². Situé au deuxième et dernier étage, il se compose d'une entrée, d'un séjour lumineux d'environ 30 m² ouvrant sur un balcon, d'une cuisine indépendante, d'une chambre, d'une salle de bains ainsi que d'un WC séparé. Des travaux de rafraîchissement sont à prévoir, offrant la possibilité d'aménager ce logement selon vos envies et vos besoins. Cet appartement royannais, constitue une opportunité idéale pour profiter d'une vie citadine en bord de mer ou pour réaliser un investissement locatif. (5.45 % honoraires TTC à la charge de l'acquéreur.) Copropriété de 3 lots - dont 3 lots habitation.(Pas de procédure en cours).
Voir plus

Référence: 206
Bien en copropriété. Nombre de lots : 3.
Honoraires d'agence de 5.45% à la charge de l'acquéreur
Barème des honoraires

Prêt immobilier

Vous souhaitez connaître votre capacité d’emprunt et trouver le meilleur crédit immobilier ?
Réaliser une simulation gratuite

Appartement à ROYAN
Appartement à ROYAN
Appartement à ROYAN
Appartement à ROYAN
Appartement à ROYAN
Appartement à ROYAN
Appartement à ROYAN
Appartement à ROYAN
Ce site est protégé par reCAPTCHA la Politique de confidentialité et les Conditions d’utilisation de Google s’appliquent.
Obtenir un prêt immobilier au meilleur taux ?

En poursuivant votre navigation sans modifier vos paramètres, vous acceptez l'utilisation de cookies susceptibles de réaliser des statistiques de visite. Cliquez ici pour plus d'informations