Bénéficiez des services de nos partenaires locaux soigneusement sélectionnés
pour vous accompagner dans votre parcours d'achat immobilier

Vertou beautour maison nantaise

— Vertou 44120 —
282 150 €
99 m² / 307 m²
5 pièces
parking

Nos partenaires locaux
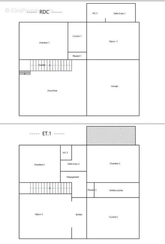
Située dans un environnement paisible, à proximité des commerces et des services, cette maison de type nantaise offre un cadre de vie agréable et fonctionnel. À l'étage : une entrée, un salon avec cheminée, une cuisine à aménager avec arrière-cuisine, deux chambres et une salle d'eau avec WC. Au rez-de-chaussée : un appartement T2 d'environ 30 m² comprenant séjour, cuisine, chambre et salle d'eau. Reliable à l'étage, il permet de disposer au total de quatre chambres, idéal pour une famille, un projet locatif ou une redistribution des espaces. Le niveau bas comprend également un garage et un atelier. La parcelle de 307 m², exposée Sud/Est, offre un bel ensoleillement. Ouvertures en PVC double vitrage avec volets roulants. Chauffage fioul.Prévoir travaux.Audit énergétique à disposition
Voir plus

Référence: 130
Honoraires d'agence de 4.5% à la charge de l'acquéreur
Barème des honoraires
DPE
A
B
C
D
E
F
G
GES
A
B
C
D
E
F
G

Prêt immobilier

Vous souhaitez connaître votre capacité d’emprunt et trouver le meilleur crédit immobilier ?
Réaliser une simulation gratuite

Maison à VERTOU
Maison à VERTOU
Maison à VERTOU
Maison à VERTOU
Maison à VERTOU
Maison à VERTOU
Maison à VERTOU
Maison à VERTOU
Maison à VERTOU
Maison à VERTOU
Ce site est protégé par reCAPTCHA la Politique de confidentialité et les Conditions d’utilisation de Google s’appliquent.
Obtenir un prêt immobilier au meilleur taux ?

En poursuivant votre navigation sans modifier vos paramètres, vous acceptez l'utilisation de cookies susceptibles de réaliser des statistiques de visite. Cliquez ici pour plus d'informations