Pas de terrain à Flins-Sur-Seine pour le moment. Découvrez dès maintenant les terrains dans le département Yvelines.
Bénéficiez des services de nos partenaires locaux soigneusement sélectionnés
pour vous accompagner dans votre parcours d'achat immobilier

Maison 151m2, terrain 715 m2, 10 min coulommiers

— Coulommiers 77120 —
210 000 €
151 m² / 715 m²
5 pièces
jardin

Nos partenaires locaux
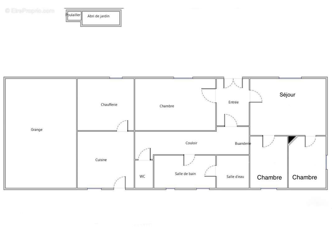
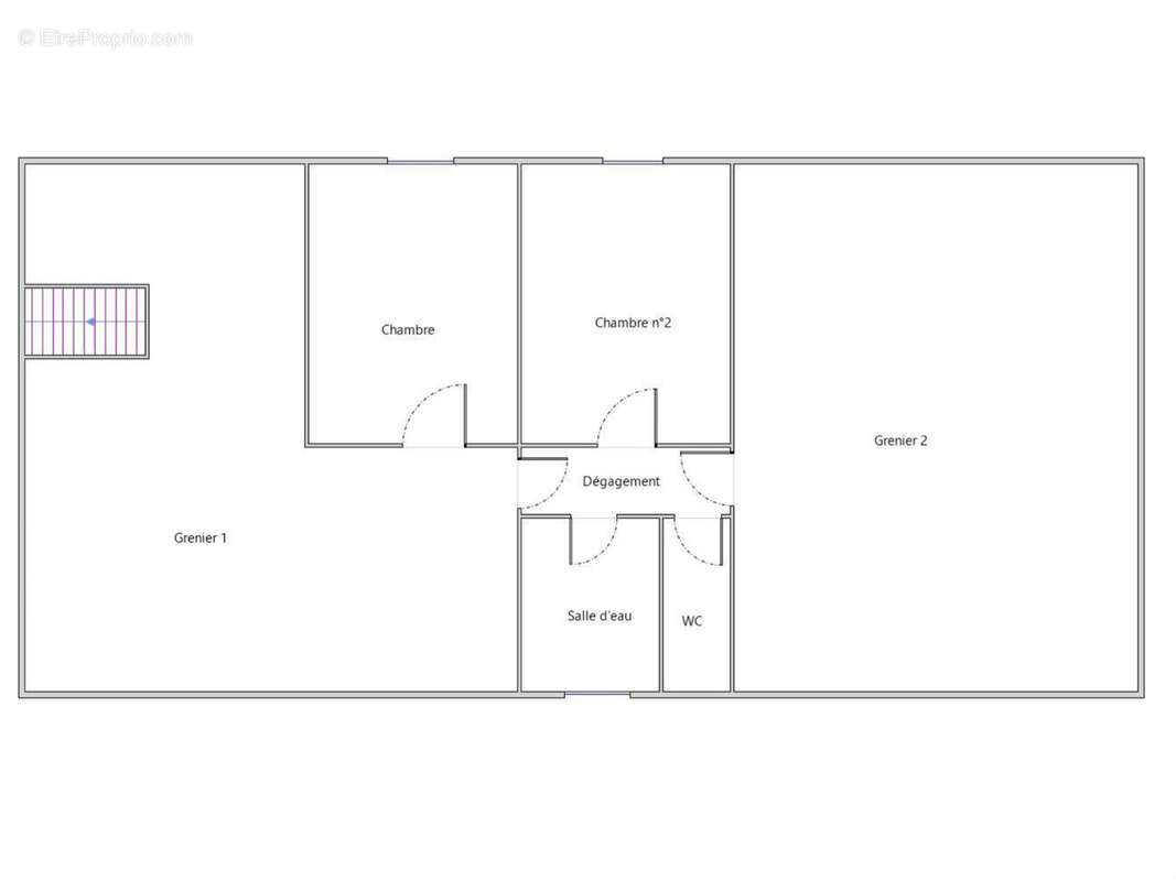
NOUVEAUTÉ en EXCLUSIVITÉ de l'agence ! Éric VAUGEOIS vous présente cette authentique maison briarde de type 6 pièces, d’une surface d’environ 151 m2, idéalement située à moins de 10 minutes de Coulommiers sur la Commune de Jouy-sur-Morin. Rez-de-chaussée : Entrée accueillante, Grand séjour lumineux avec poêle à bois, 3 chambres spacieuses, Salle de bains et salle d’eau, WC séparé, Cuisine indépendante, Cellier À l’étage : Dégagement, 2 belles chambres, WC et salle d’eau, Deux greniers aménageables (possibilité de chambres supplémentaires) Équipements : poele à bois . Assainissement individuel. Internet très haut débit par FIBRE. Extérieurs : Superbe terrain plat et clos de plus de 700 m2, sans vis-à-vis et au calme, Deux portails d’accès, Puits. . Taxe foncière de ???E/an. A vister sans tarder ! (Nombreuses autres photos complémentaires directement sur le site de l'agence) ------------------------------ Envie de changer de vie professionelle, nous recrutons des agents débutants ou confirmés sur tout le secteur. Contactez nous directement pour saisir cette belle opportunité
Voir plus

Référence: 1545
Honoraires à la charge du vendeur.
Barème des honoraires
DPE
A
B
C
D
E
F
G
GES
A
B
C
D
E
F
G

Prêt immobilier

Vous souhaitez connaître votre capacité d’emprunt et trouver le meilleur crédit immobilier ?
Réaliser une simulation gratuite

Maison à COULOMMIERS
Maison à COULOMMIERS
Maison à COULOMMIERS
Maison à COULOMMIERS
Maison à COULOMMIERS
Maison à COULOMMIERS
Maison à COULOMMIERS
Maison à COULOMMIERS
Maison à COULOMMIERS
Maison à COULOMMIERS
Maison à COULOMMIERS
Maison à COULOMMIERS
Maison à COULOMMIERS
Maison à COULOMMIERS
Maison à COULOMMIERS
Maison à COULOMMIERS
Maison à COULOMMIERS
Maison à COULOMMIERS
Maison à COULOMMIERS
Maison à COULOMMIERS
Maison à COULOMMIERS
Maison à COULOMMIERS
Maison à COULOMMIERS
Maison à COULOMMIERS
Maison à COULOMMIERS
Maison à COULOMMIERS
Maison à COULOMMIERS
Maison à COULOMMIERS
Maison à COULOMMIERS
Maison à COULOMMIERS
Maison à COULOMMIERS
Maison à COULOMMIERS
Maison à COULOMMIERS
Maison à COULOMMIERS
Maison à COULOMMIERS
Maison à COULOMMIERS
Maison à COULOMMIERS
Maison à COULOMMIERS
Maison à COULOMMIERS
Maison à COULOMMIERS
Maison à COULOMMIERS
Maison à COULOMMIERS
Maison à COULOMMIERS
Maison à COULOMMIERS
Maison à COULOMMIERS
Maison à COULOMMIERS
Maison à COULOMMIERS
Maison à COULOMMIERS
Maison à COULOMMIERS
Maison à COULOMMIERS
Maison à COULOMMIERS
Maison à COULOMMIERS
Maison à COULOMMIERS
Maison à COULOMMIERS
Maison à COULOMMIERS
Maison à COULOMMIERS
Maison à COULOMMIERS
Maison à COULOMMIERS
Maison à COULOMMIERS
Maison à COULOMMIERS
Maison à COULOMMIERS
Maison à COULOMMIERS
Maison à COULOMMIERS
Ce site est protégé par reCAPTCHA la Politique de confidentialité et les Conditions d’utilisation de Google s’appliquent.
Obtenir un prêt immobilier au meilleur taux ?

En poursuivant votre navigation sans modifier vos paramètres, vous acceptez l'utilisation de cookies susceptibles de réaliser des statistiques de visite. Cliquez ici pour plus d'informations